15% off ALL House Plans Sitewide
15% off ALL House Plans Sitewide

House Plan: DFD-11939

See All 13 Photos > (photographs may reflect modified homes)
© copyright by designer
SQ FT
804
BEDS
1
BATHS
1
STORIES
2
CARS
0
HOUSE PLANS SALE 
START AT  $760.75
For questions and help, live chat, email or call us at 877-895-5299
Floor Plans
Click to Zoom In on Floor Plan
 
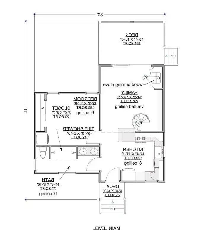
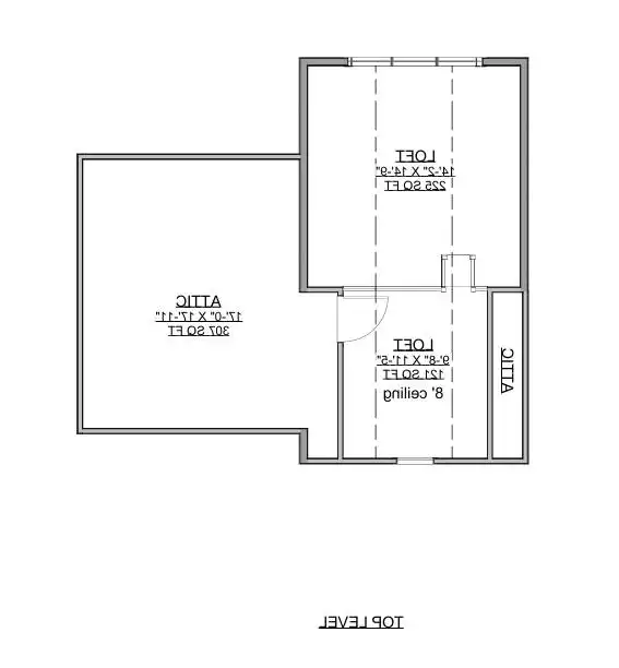
About House Plan 11939:
Designed for easy living within 804 square feet, this home combines cozy comfort with a smart, functional layout. The family room creates a warm central gathering area, complete with a fireplace that adds an extra touch of comfort. The U-shaped kitchen maximizes efficiency while offering plenty of counter space for cooking and daily routines. The main-floor primary suite includes a walk-in bath layout with a separate tub and shower and a double vanity for added convenience. Upstairs, a loft adds versatility for quiet work, reading, or extra lounging space. A rear deck extends the living area outdoors for peaceful mornings or relaxed evenings. With its compact design and thoughtful features, this home offers a truly comfortable retreat for everyday life.
House Plan Pricing
STEP 1 Select Your Package

PDF Single Build


Digital plans emailed to you in PDF format that allows for printing copies and sharing electronically with contractors, subs, decorators, and more. This package includes a license to build the home one time.

PDF Single Build $895
Most recommended package

PDF Unlimited Build


Digital plans with an unlimited build license emailed in PDF format, that allows for printing copies on a home printer or local print shop and sharing with contractors, subs, decorators and more 

PDF Unlimited Build $1,395
Digital plans including unlimited build license

CAD + PDF Unlimited Build


This plan package is created in AutoCAD and delivered in .DWG format. CAD files are intended for use by design professionals, structural engineers, and builders to update plans for local building codes or to make revisions based on specific needs, lot requirements, and budget considerations. A complimentary PDF copy is included with this package for reference. CAD packages are delivered within 1 to 2 business days.
 
This package also comes with a multi-use building license, granting permission to construct the home an unlimited number of times, along with a copyright release for making revisions and printing unlimited copies.
 
For details on the specific CAD program used, please refer to the PLAN DETAILS section located above the floor plan on each plan page.

CAD + PDF Unlimited Build $1,895
2D electronic editable computer files
STEP 2 Need To Reverse This Plan?
STEP 3 CHOOSE YOUR FOUNDATION
STEP 4 OPTIONAL ADD-ONS
Subtotal:
$895
FREE SHIPPING
 
Plan Details
See All Details
Finished Square Footage
683 Sq. Ft.
Main Level:
121 Sq. Ft.
Upper Level:
804 Sq. Ft.
Total:
Room Details
1
Bedrooms:
1
Full Baths:
General House Information
2
Number of Stories:
30' 0"
Width:
41' 0"
Depth:
Single
Dwelling Number:
Unfinished Square Footage
25 Sq. Ft.
Porch:
154 Sq. Ft.
Deck:
GARAGE
0
Garage Size:
Exterior Style
Cottage
Country
Collections
Affordable
Cabin
First Home
Foundation
Basement
Crawl Space
Daylight Basement
Monolithic Slab
Slab
Stem Wall Slab
Walkout Basement
Framing Information
Stick
Roof Framing:
2x4
Exterior Wall Framing:
Roof Pitch
18/12
Primary:
12/12
Secondary:
Insulation (R)
House And Ceiling Heights
9
First Floor Ceiling:
8
Second Floor Ceiling:
23' 4"
Maximum House Height:
Key Features
Deck
Double Vanity Sink
Family Room
Fireplace
Laundry 1st Fl
Loft / Balcony
Primary Bdrm Main Floor
Separate Tub and Shower
Suited for corner lot
U-Shaped
Vaulted Great Room/Living

Our Guarantees

  • Only the highest quality plans
  • Int’l Residential Code Compliant
  • Full structural details on all plans
  • Best plan price guarantee
  • Free modification Estimates
  • Builder-ready construction drawings
  • Expert advice from leading designers
  •  PDFs NOW!™ plans in minutes
  • 100% satisfaction guarantee
  • Free Home Building Organizer