17% off ALL House Plans Sitewide
17% off ALL House Plans Sitewide

House Plan: DFD-11941

See All 14 Photos > (photographs may reflect modified homes)
© copyright by designer
SQ FT
1,862
BEDS
3
BATHS
2.5
STORIES
1
CARS
2
HOUSE PLANS SALE 
START AT  $950.35
For questions and help, live chat, email or call us at 877-895-5299
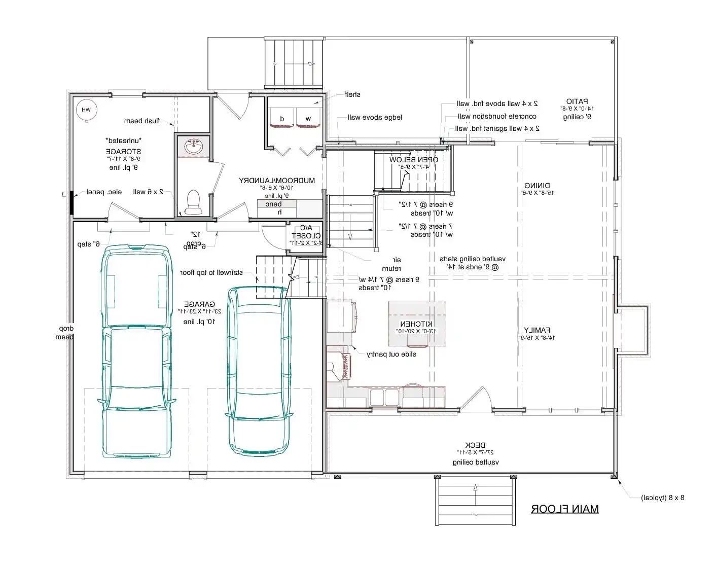
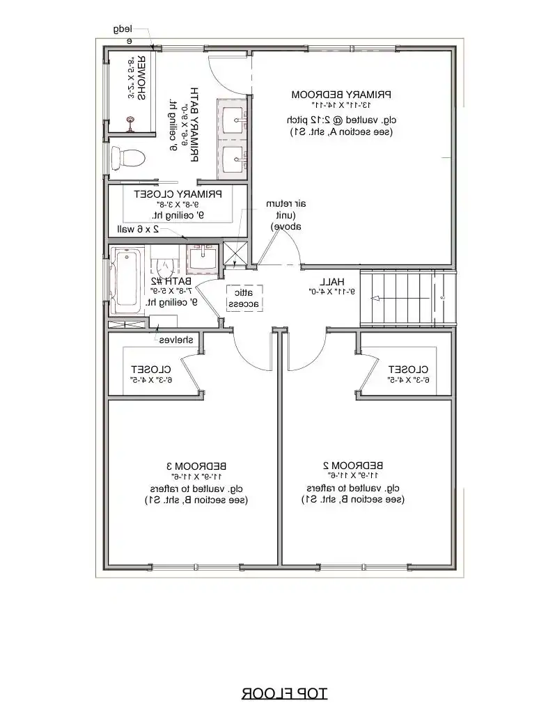
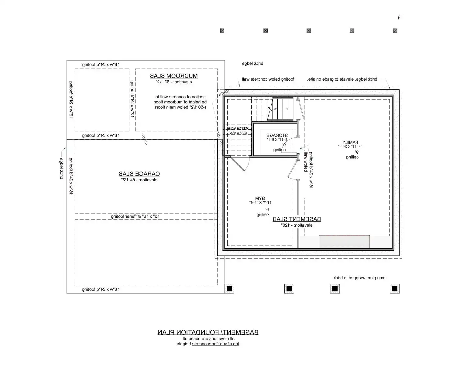
Floor Plans
Click to Zoom In on Floor Plan
 
About House Plan 11941:
This welcoming 2,152 square feet design brings comfort and ease to everyday life with its open floor plan and beautifully vaulted living areas. The kitchen offers excellent workspace with an island, peninsula eating bar, and nearby butler’s pantry, creating an ideal setup for cooking and gathering. The primary bedroom is privately located on the main floor and includes a spacious walk-in closet along with a separate tub and shower for added luxury. Split bedrooms ensure personal space for everyone, while the home office, mud room, and first-floor laundry offer thoughtful conveniences. A large bonus room above adds even more usable space for recreation or storage. With covered porches and a family-friendly layout throughout, this home brings warmth and comfort together in a way that feels instantly inviting. Its well-designed flow makes it a wonderful fit for comfortable everyday living.
House Plan Pricing
STEP 1 Select Your Package

PDF Single Build


Digital plans emailed to you in PDF format that allows for printing copies and sharing electronically with contractors, subs, decorators, and more. This package includes a license to build the home one time.

PDF Single Build $1,145
Most recommended package

PDF Unlimited Build


Digital plans with an unlimited build license emailed in PDF format, that allows for printing copies on a home printer or local print shop and sharing with contractors, subs, decorators and more 

PDF Unlimited Build $1,645
Digital plans including unlimited build license

CAD + PDF Unlimited Build


CAD files are a complete set of construction drawings delivered electronically. They can be used for any type of modification—including major design changes and engineering—and include a release granting permission to modify the plan. Most CAD plan orders are emailed the same or next business day.
 
This package also comes with a PDF set of plans and a multi-use building license, granting permission to construct the home an unlimited number of times, along with a copyright release for making modifications and printing unlimited copies.
 
CAD files are provided in .dwg format. For details on the specific CAD program used, please refer to the PLAN DETAILS section located above the floor plan on each plan’s page.

CAD + PDF Unlimited Build $2,145
2D electronic editable computer files
STEP 2 Need To Reverse This Plan?
STEP 3 CHOOSE YOUR FOUNDATION
STEP 4 OPTIONAL ADD-ONS
Subtotal:
$1145
FREE SHIPPING
 
Plan Details
See All Details
Finished Square Footage
963 Sq. Ft.
Main Level:
899 Sq. Ft.
Upper Level:
682 Sq. Ft.
Lower Level:
1,862 Sq. Ft.
Total:
Room Details
3
Bedrooms:
2
Full Baths:
1
Half Baths:
General House Information
1
Number of Stories:
52' 7"
Width:
42' 5"
Depth:
Single
Dwelling Number:
Unfinished Square Footage
573 Sq. Ft.
Garage:
163 Sq. Ft.
Porch:
279 Sq. Ft.
Deck:
GARAGE
Front
Garage Location:
2
Garage Size:
Exterior Style
Country
Craftsman
Modern Farmhouse
Ranch
Collections
Kitchens
Open Floor Plan
Foundation
Basement
Crawl Space
Daylight Basement
Monolithic Slab
Slab
Stem Wall Slab
Walkout Basement
Framing Information
Stick
Roof Framing:
2x4
Exterior Wall Framing:
Roof Pitch
4/12
Primary:
2/12
Secondary:
Insulation (R)
House And Ceiling Heights
9
First Floor Ceiling:
9
Second Floor Ceiling:
24' 11"
Maximum House Height:
Key Features
Attached
Deck
Dining Room
Double Vanity Sink
Exercise Room
Family Room
Family Style
Fireplace
Front-entry
Kitchen Island
Laundry 1st Fl
L-Shaped
Primary Bdrm Upstairs
Mud Room
Open Floor Plan
Pantry
Peninsula / Eating Bar
Storage Space
Suited for corner lot
Vaulted Great Room/Living
Vaulted Kitchen
Vaulted Primary
Walk-in Closet

Our Guarantees

  • Only the highest quality plans
  • Int’l Residential Code Compliant
  • Full structural details on all plans
  • Best plan price guarantee
  • Free modification Estimates
  • Builder-ready construction drawings
  • Expert advice from leading designers
  •  PDFs NOW!™ plans in minutes
  • 100% satisfaction guarantee
  • Free Home Building Organizer