15% off ALL House Plans Sitewide
15% off ALL House Plans Sitewide

House Plan: DFD-11944

See All 25 Photos > (photographs may reflect modified homes)
© copyright by designer
SQ FT
4,800
BEDS
2
BATHS
2.5
STORIES
2
CARS
0
HOUSE PLANS SALE 
START AT  $1,232.50
For questions and help, live chat, email or call us at 877-895-5299
Floor Plans
Click to Zoom In on Floor Plan
 
About House Plan 11944:

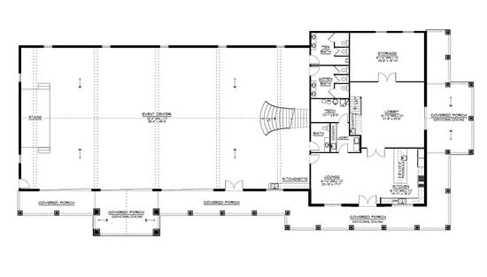
House Plan 11944 delivers a one-of-a-kind barndominium layout designed for both living and large-scale entertaining. At the heart of the design is an expansive event center featuring cathedral-height space, a built-in stage, and multiple access points to covered porches—ideal for hosting weddings, retreats, or gatherings of any size. The adjoining residential portion includes a comfortable lounge, kitchenette, storage area, and a welcoming lobby that creates a smooth transition between public and private spaces.

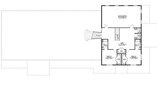
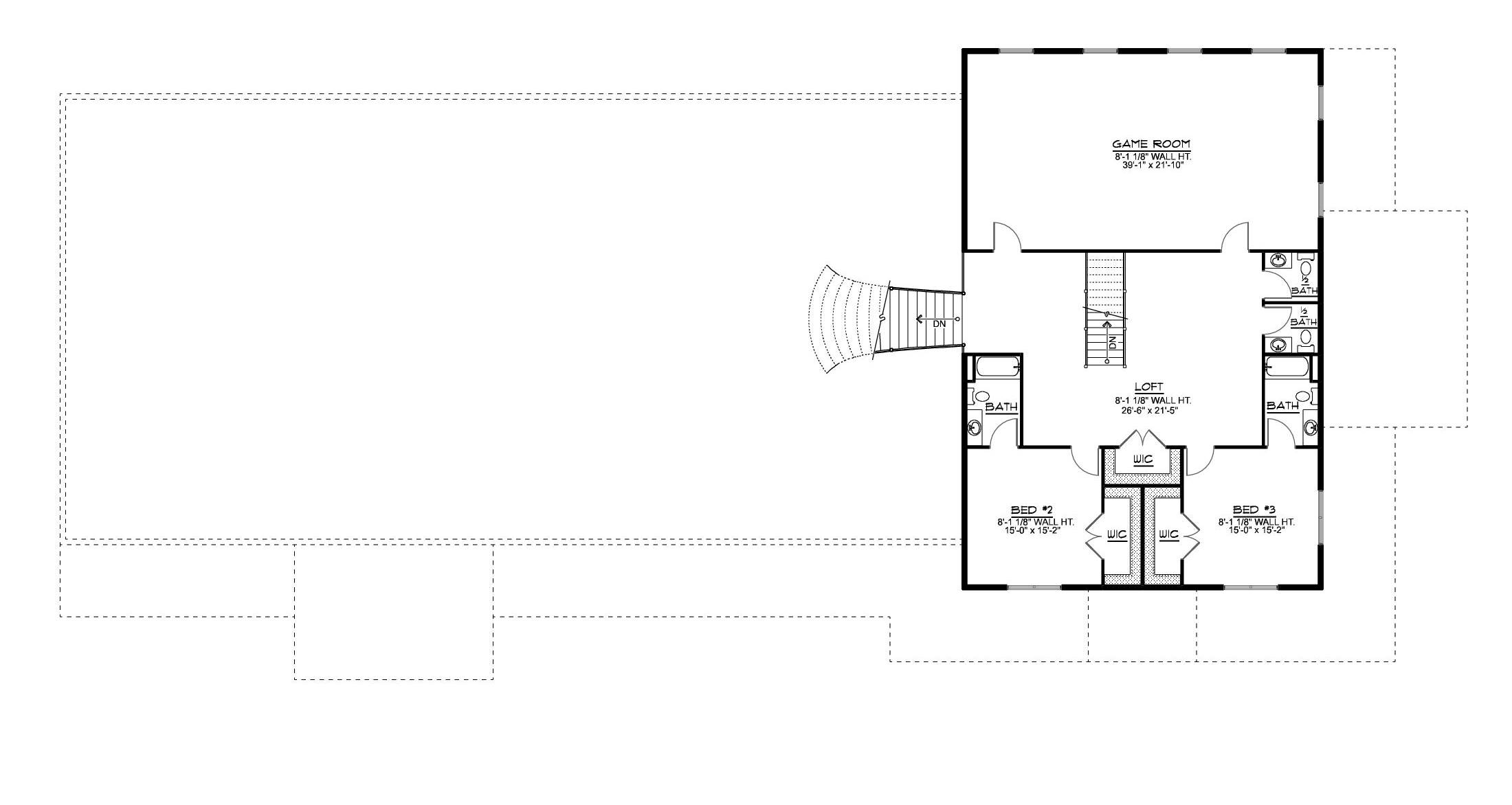
Upstairs, a generous loft overlooks the main level and leads to a dedicated game room, providing additional recreational space. Two well-appointed bedrooms with walk-in closets and nearby bathrooms support overnight guests or extended family living, while dual primary suites enhance flexibility for multi-generational use. With its wraparound porch, outdoor living areas, and bold barndominium styling, House Plan 11944 is perfectly suited for scenic properties where form and function matter equally.

House Plan Pricing
STEP 1 Select Your Package

5 Printed Sets + PDF


Includes 5 physical printed blueprint sets, shipped free via UPS within the Continental U.S. Printed sets ship within 1 business day and are delivered within 3 – 5 business days. A complimentary PDF plan set is also emailed within 1 business day for easy sharing and local printing. These plans may be used to construct one home.

5 Printed Sets + PDF $1,800
5 Printed Sets + PDF

PDF Single Build


Digital plans emailed to you in PDF format that allows for printing copies and sharing electronically with contractors, subs, decorators, and more. This package includes a license to build the home one time.

PDF Single Build $1,450
Most recommended package

PDF Unlimited Build


Digital plans with an unlimited build license emailed in PDF format, that allows for printing copies on a home printer or local print shop and sharing with contractors, subs, decorators and more 

PDF Unlimited Build $2,050
Digital plans including unlimited build license

CAD + PDF Single Build


This plan package is created in AutoCAD and delivered in .DWG format. CAD files are intended for use by design professionals, structural engineers, and builders to update plans for local building codes or to make revisions based on specific needs, lot requirements, and budget considerations. A complimentary PDF copy is included with this package for reference. CAD packages are delivered within 1 to 2 business days.
 
This package also comes with a copyright release for making revisions and printing unlimited copies.

For details on the specific CAD program used, please refer to the PLAN DETAILS section located above the floor plan on each plan page.

CAD + PDF Single Build $2,700
2D electronic editable computer files

CAD + PDF Unlimited Build


This plan package is created in AutoCAD and delivered in .DWG format. CAD files are intended for use by design professionals, structural engineers, and builders to update plans for local building codes or to make revisions based on specific needs, lot requirements, and budget considerations. A complimentary PDF copy is included with this package for reference. CAD packages are delivered within 1 to 2 business days.
 
This package also comes with a multi-use building license, granting permission to construct the home an unlimited number of times, along with a copyright release for making revisions and printing unlimited copies.
 
For details on the specific CAD program used, please refer to the PLAN DETAILS section located above the floor plan on each plan page.

CAD + PDF Unlimited Build $3,250
2D electronic editable computer files
STEP 2 Need To Reverse This Plan?
STEP 3 CHOOSE YOUR FOUNDATION
STEP 4 OPTIONAL ADD-ONS
Subtotal:
$1800
FREE SHIPPING
 
Plan Details
See All Details
Finished Square Footage
2,400 Sq. Ft.
Main Level:
2,400 Sq. Ft.
Upper Level:
4,800 Sq. Ft.
Total:
Room Details
2
Bedrooms:
2
Full Baths:
5
Half Baths:
General House Information
2
Number of Stories:
156' 0"
Width:
70' 0"
Depth:
Single
Dwelling Number:
Unfinished Square Footage
2050 Sq. Ft.
Porch:
GARAGE
0
Garage Size:
Exterior Style
Barndominium
Country
Farmhouse
Modern Farmhouse
Collections
In-Law Suite
Luxury
Mountain
Outdoor Living
Foundation
Basement
Crawl Space
Slab
Walkout
Framing Information
Truss
Roof Framing:
2x6
Exterior Wall Framing:
Roof Pitch
5/12
Primary:
7/12
Secondary:
Insulation (R)
19
Exterior Wall:
40
Ceiling:
House And Ceiling Heights
9
First Floor Ceiling:
8
Second Floor Ceiling:
31' 3"
Maximum House Height:
Key Features
2 Primary Suites
Covered Front Porch
Family Style
Formal LR
Great Room
In-law Suite
Laundry 1st Fl
Loft / Balcony
L-Shaped
Primary Bdrm Upstairs
None
Outdoor Living Space
Peninsula / Eating Bar
Rec Room
Storage Space
Suited for corner lot
Suited for view lot
Walk-in Closet
Wraparound Porch

Our Guarantees

  • Only the highest quality plans
  • Int’l Residential Code Compliant
  • Full structural details on all plans
  • Best plan price guarantee
  • Free modification Estimates
  • Builder-ready construction drawings
  • Expert advice from leading designers
  •  PDFs NOW!™ plans in minutes
  • 100% satisfaction guarantee
  • Free Home Building Organizer