20% off ALL House Plans Sitewide
20% off ALL House Plans Sitewide

House Plan: DFD-11949

See All 11 Photos > (photographs may reflect modified homes)
© copyright by designer
SQ FT
4,412
BEDS
5
BATHS
3.5
STORIES
2
CARS
3
HOUSE PLANS SALE 
START AT  $1,236.00
For questions and help, live chat, email or call us at 877-895-5299
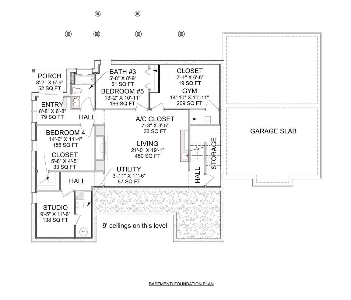
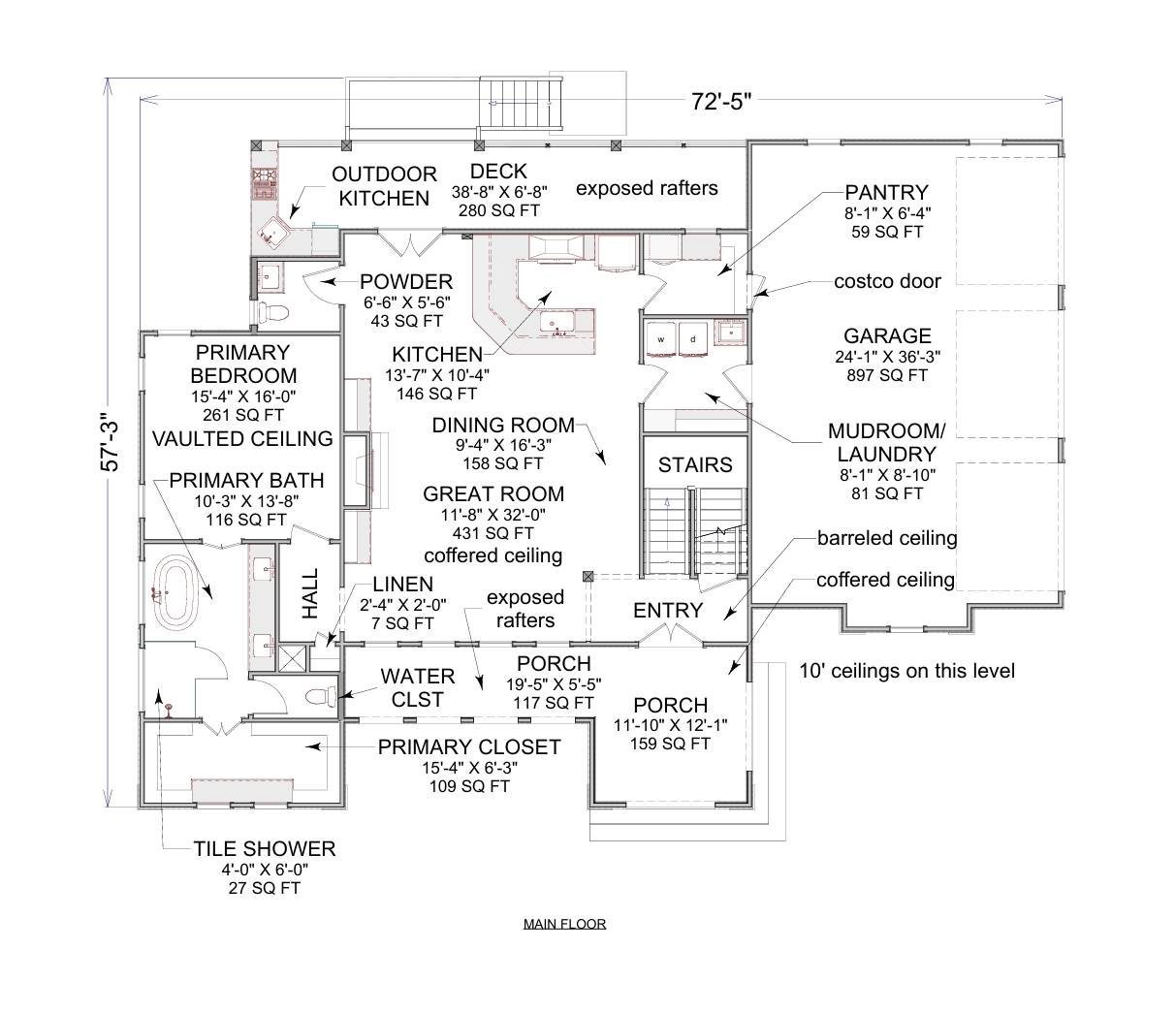
Floor Plans
Click to Zoom In on Floor Plan
 
About House Plan 11949:
This warm and spacious 4,412 square feet design brings together comfort, convenience, and inviting family living across three well-planned levels. The kitchen features a practical U-shaped layout with a peninsula eating bar and a butler’s pantry, offering plenty of workspace and storage. The great room sits close by for seamless gathering, while the dining room and outdoor kitchen create flexible meal and entertainment options. The main-floor primary bedroom includes a vaulted ceiling, a walk-in closet, and a private bath with a separate tub and shower. With split bedrooms for added privacy, plus dedicated spaces like a home office, exercise room, and generous storage areas, the home offers versatility for changing family needs. A covered front porch welcomes guests, and the deck extends living space outdoors. Blending openness with comfort, this layout creates a cozy environment perfect for relaxed daily living and memorable family moments.
House Plan Pricing
STEP 1 Select Your Package

PDF Single Build


Digital plans emailed to you in PDF format that allows for printing copies and sharing electronically with contractors, subs, decorators, and more. This package includes a license to build the home one time.

PDF Single Build $1,545
Most recommended package

PDF Unlimited Build


Digital plans with an unlimited build license emailed in PDF format, that allows for printing copies on a home printer or local print shop and sharing with contractors, subs, decorators and more 

PDF Unlimited Build $2,045
Digital plans including unlimited build license

CAD + PDF Unlimited Build


CAD files are a complete set of construction drawings delivered electronically. They can be used for any type of modification—including major design changes and engineering—and include a release granting permission to modify the plan. Most CAD plan orders are emailed the same or next business day.
 
This package also comes with a PDF set of plans and a multi-use building license, granting permission to construct the home an unlimited number of times, along with a copyright release for making modifications and printing unlimited copies.
 
CAD files are provided in .dwg format. For details on the specific CAD program used, please refer to the PLAN DETAILS section located above the floor plan on each plan’s page.

CAD + PDF Unlimited Build $2,545
2D electronic editable computer files
STEP 2 Need To Reverse This Plan?
STEP 3 CHOOSE YOUR FOUNDATION
STEP 4 OPTIONAL ADD-ONS
Subtotal:
$1545
FREE SHIPPING
 
Plan Details
See All Details
Finished Square Footage
1,598 Sq. Ft.
Main Level:
1,125 Sq. Ft.
Upper Level:
1,689 Sq. Ft.
Lower Level:
4,412 Sq. Ft.
Total:
Room Details
5
Bedrooms:
3
Full Baths:
1
Half Baths:
General House Information
2
Number of Stories:
72' 5"
Width:
57' 3"
Depth:
Single
Dwelling Number:
Unfinished Square Footage
922 Sq. Ft.
Garage:
271 Sq. Ft.
Porch:
288 Sq. Ft.
Deck:
GARAGE
Side
Garage Location:
3
Garage Size:
Exterior Style
European
Southwest
Spanish
Tuscan
Collections
Kitchens
Luxury
Outdoor Living
Split Bedroom
Foundation
Basement
Crawl Space
Daylight Basement
Monolithic Slab
Slab
Stem Wall Slab
Walkout Basement
Framing Information
Stick
Roof Framing:
2x4
Exterior Wall Framing:
Roof Pitch
5/12
Primary:
3/12
Secondary:
Insulation (R)
House And Ceiling Heights
10
First Floor Ceiling:
8
Second Floor Ceiling:
26' 9"
Maximum House Height:
Key Features
Attached
Butler's Pantry
Covered Front Porch
Deck
Dining Room
Double Vanity Sink
Exercise Room
Fireplace
Great Room
Home Office
Primary Bdrm Main Floor
Mud Room
Open Floor Plan
Outdoor Kitchen
Peninsula / Eating Bar
Separate Tub and Shower
Side-entry
Split Bedrooms
Storage Space
Suited for corner lot
U-Shaped
Vaulted Primary
Walk-in Closet

Our Guarantees

  • Only the highest quality plans
  • Int’l Residential Code Compliant
  • Full structural details on all plans
  • Best plan price guarantee
  • Free modification Estimates
  • Builder-ready construction drawings
  • Expert advice from leading designers
  •  PDFs NOW!™ plans in minutes
  • 100% satisfaction guarantee
  • Free Home Building Organizer