15% off ALL House Plans Sitewide
15% off ALL House Plans Sitewide

House Plan: DFD-11952

See All 5 Photos > (photographs may reflect modified homes)
© copyright by designer
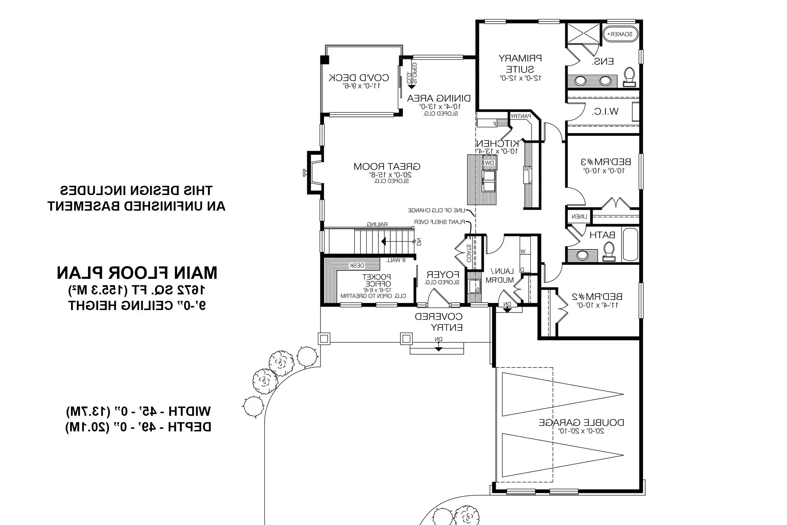
SQ FT
1,672
BEDS
3
BATHS
2
STORIES
1
CARS
2
HOUSE PLANS SALE 
START AT  $1,465.40
For questions and help, live chat, email or call us at 877-895-5299
Floor Plans
Click to Zoom In on Floor Plan
 
About House Plan 11952:
With 1,672 heated square foot, this home offers a bright and airy living experience centered around vaulted ceilings and open gathering spaces. The kitchen’s generous island, country layout, and walk-in pantry make it easy to cook, organize, and enjoy meals together. The vaulted great room provides a spacious setting for daily living, with a cozy fireplace adding warmth and charm. The main-floor primary suite includes a walk-in closet and a well-appointed bathroom with both a separate tub and shower for added comfort. Additional bedrooms and an in-law suite option give you flexibility for guests, family, or long-term living arrangements. A covered front porch, covered rear porch, and deck offer welcoming outdoor spaces for quiet mornings or relaxed evenings. Altogether, this home combines comfort, openness, and everyday ease in a way that feels naturally inviting.
House Plan Pricing
STEP 1 Select Your Package

5 Printed Sets + PDF


Includes 5 physical printed blueprint sets, shipped free via UPS within the Continental U.S. Printed sets ship within 1 business day and are delivered within 3 – 5 business days. A complimentary PDF plan set is also emailed within 1 business day for easy sharing and local printing. These plans may be used to construct one home.

5 Printed Sets + PDF $1,881
5 Printed Sets + PDF

PDF Single Build


Digital plans emailed to you in PDF format that allows for printing copies and sharing electronically with contractors, subs, decorators, and more. This package includes a license to build the home one time.

PDF Single Build $1,724
Most recommended package

CAD + PDF Single Build


This plan package is created in AutoCAD and delivered in .DWG format. CAD files are intended for use by design professionals, structural engineers, and builders to update plans for local building codes or to make revisions based on specific needs, lot requirements, and budget considerations. A complimentary PDF copy is included with this package for reference. CAD packages are delivered within 1 to 2 business days.
 
This package also comes with a copyright release for making revisions and printing unlimited copies.

For details on the specific CAD program used, please refer to the PLAN DETAILS section located above the floor plan on each plan page.

CAD + PDF Single Build $3,201
2D electronic editable computer files

CAD + PDF Unlimited Build


This plan package is created in AutoCAD and delivered in .DWG format. CAD files are intended for use by design professionals, structural engineers, and builders to update plans for local building codes or to make revisions based on specific needs, lot requirements, and budget considerations. A complimentary PDF copy is included with this package for reference. CAD packages are delivered within 1 to 2 business days.
 
This package also comes with a multi-use building license, granting permission to construct the home an unlimited number of times, along with a copyright release for making revisions and printing unlimited copies.
 
For details on the specific CAD program used, please refer to the PLAN DETAILS section located above the floor plan on each plan page.

CAD + PDF Unlimited Build $6,312
2D electronic editable computer files
STEP 2 Need To Reverse This Plan?
STEP 3 CHOOSE YOUR FOUNDATION
STEP 4 OPTIONAL ADD-ONS
Subtotal:
$1881
FREE SHIPPING
 
Plan Details
See All Details
Finished Square Footage
1,672 Sq. Ft.
Main Level:
1,672 Sq. Ft.
Total:
Room Details
3
Bedrooms:
2
Full Baths:
General House Information
1
Number of Stories:
45' 0"
Width:
66' 0"
Depth:
Single
Dwelling Number:
Unfinished Square Footage
478 Sq. Ft.
Garage:
120 Sq. Ft.
Front Porch:
105 Sq. Ft.
Deck:
GARAGE
Front
Garage Location:
2
Garage Size:
Exterior Style
Contemporary
Modern
Ranch
Traditional
Transitional
Collections
Architects Choice
Canada
Open Floor Plan
Foundation
Basement
Crawl Space
Slab
Walkout Basement
Framing Information
Truss
Roof Framing:
2x6
Exterior Wall Framing:
Roof Pitch
2/12
Primary:
Insulation (R)
Per IRC Climate Zones
House And Ceiling Heights
9
First Floor Ceiling:
18' 0"
Maximum House Height:
Key Features
Attached
Country Kitchen
Covered Front Porch
Covered Rear Porch
Deck
Double Vanity Sink
Family Style
Fireplace
Foyer
Great Room
Home Office
In-law Suite
Kitchen Island
Laundry 1st Fl
L-Shaped
Primary Bdrm Main Floor
Mud Room
Open Floor Plan
Separate Tub and Shower
Side-entry
Suited for sloping lot
Suited for view lot
Unfinished Space
Vaulted Ceilings
Vaulted Foyer
Vaulted Great Room/Living
Walk-in Closet
Walk-in Pantry

Our Guarantees

  • Only the highest quality plans
  • Int’l Residential Code Compliant
  • Full structural details on all plans
  • Best plan price guarantee
  • Free modification Estimates
  • Builder-ready construction drawings
  • Expert advice from leading designers
  •  PDFs NOW!™ plans in minutes
  • 100% satisfaction guarantee
  • Free Home Building Organizer