House Plan: DFD-11957

See All 16 Photos > (photographs may reflect modified homes)
© copyright by designer
SQ FT
500
BEDS
2
BATHS
1
STORIES
1.5
CARS
0
PLANS FROM $895
For questions and help, live chat, email or call us at 877-895-5299
Floor Plans
Click to Zoom In on Floor Plan
 
About House Plan 11957:
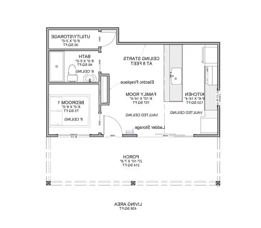
This 500 heated square foot layout is designed for warmth and functionality, highlighted by a vaulted living area that expands the home’s sense of space. The kitchen’s L-shaped design pairs well with the peninsula eating bar and pantry, making daily cooking both efficient and comfortable. The primary bedroom on the main floor supports easy living, while the second bedroom offers privacy through a thoughtful split layout. A first-floor laundry area adds everyday convenience, and the loft above provides bonus versatility for storage or a quiet hideaway. With its covered front porch and gentle flow from room to room, this home delivers a cheerful and welcoming environment perfect for relaxed living.
House Plan Pricing
STEP 1 Select Your Package

PDF Single Build


Digital plans emailed to you in PDF format that allows for printing copies and sharing electronically with contractors, subs, decorators, and more. This package includes a license to build the home one time.

PDF Single Build $895
Most recommended package

PDF Unlimited Build


Digital plans with an unlimited build license emailed in PDF format, that allows for printing copies on a home printer or local print shop and sharing with contractors, subs, decorators and more 

PDF Unlimited Build $1,395
Digital plans including unlimited build license

CAD + PDF Unlimited Build


This plan package is created in AutoCAD and delivered in .DWG format. CAD files are intended for use by design professionals, structural engineers, and builders to update plans for local building codes or to make revisions based on specific needs, lot requirements, and budget considerations. A complimentary PDF copy is included with this package for reference. CAD packages are delivered within 1 to 2 business days.
 
This package also comes with a multi-use building license, granting permission to construct the home an unlimited number of times, along with a copyright release for making revisions and printing unlimited copies.
 
For details on the specific CAD program used, please refer to the PLAN DETAILS section located above the floor plan on each plan page.

CAD + PDF Unlimited Build $1,895
2D electronic editable computer files
STEP 2 Need To Reverse This Plan?
STEP 3 CHOOSE YOUR FOUNDATION
STEP 4 OPTIONAL ADD-ONS
Subtotal:
$895
FREE SHIPPING
 
Plan Details
See All Details
Finished Square Footage
438 Sq. Ft.
Main Level:
62 Sq. Ft.
Upper Level:
500 Sq. Ft.
Total:
Room Details
2
Bedrooms:
1
Full Baths:
General House Information
1.5
Number of Stories:
27' 10"
Width:
22' 9"
Depth:
Single
Dwelling Number:
Unfinished Square Footage
214 Sq. Ft.
Porch:
GARAGE
0
Garage Size:
Exterior Style
Contemporary
Mid-Century Modern
Modern
Collections
ADU
Affordable
Budget
First Home
Mountain
Split Bedroom
Foundation
Basement
Crawl Space
Daylight Basement
Monolithic Slab
Slab
Stem Wall Slab
Walkout Basement
Framing Information
Stick
Roof Framing:
2x4
Exterior Wall Framing:
Roof Pitch
4/12
Primary:
Insulation (R)
House And Ceiling Heights
9
First Floor Ceiling:
5
Second Floor Ceiling:
18' 9"
Maximum House Height:
Key Features
Covered Front Porch
Family Room
Fireplace
Laundry 1st Fl
Loft / Balcony
L-Shaped
Primary Bdrm Main Floor
Pantry
Peninsula / Eating Bar
Split Bedrooms
Storage Space
Suited for corner lot
Vaulted Great Room/Living
Vaulted Kitchen

Our Guarantees

  • Only the highest quality plans
  • Int’l Residential Code Compliant
  • Full structural details on all plans
  • Best plan price guarantee
  • Free modification Estimates
  • Builder-ready construction drawings
  • Expert advice from leading designers
  •  PDFs NOW!™ plans in minutes
  • 100% satisfaction guarantee
  • Free Home Building Organizer