15% off ALL House Plans Sitewide
15% off ALL House Plans Sitewide

House Plan: DFD-11959

See All 11 Photos > (photographs may reflect modified homes)
© copyright by designer
SQ FT
2,230
BEDS
4
BATHS
2.5
STORIES
1
CARS
2
HOUSE PLANS SALE 
START AT  $1,015.75
For questions and help, live chat, email or call us at 877-895-5299
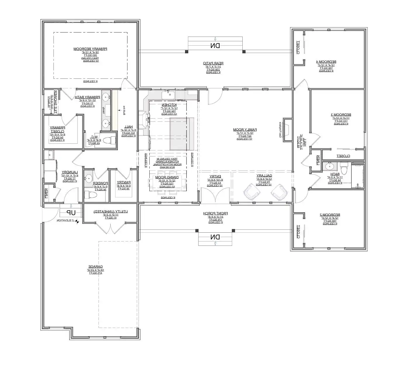
Floor Plans
Click to Zoom In on Floor Plan
 
About House Plan 11959:
This 2,230-square-foot home blends open living spaces with a family-focused flow, creating a comfortable layout for everyday routines. An L-shaped kitchen with a large island, peninsula seating, and a well-appointed butler’s pantry anchors the heart of the home. The family room sits just beyond, offering an open gathering zone made cozy by the nearby fireplace. The primary bedroom rests quietly on the main floor, separated from the secondary bedrooms for added comfort. A dedicated mud room and first-floor laundry provide practical convenience, keeping the household running smoothly. Outdoor living spaces invite gatherings, meals, and peaceful afternoons in the fresh air. Thoughtfully designed with both comfort and function in mind, this home delivers a warm and inviting setting for families of all kinds.
House Plan Pricing
STEP 1 Select Your Package

PDF Single Build


Digital plans emailed to you in PDF format that allows for printing copies and sharing electronically with contractors, subs, decorators, and more. This package includes a license to build the home one time.

PDF Single Build $1,195
Most recommended package

PDF Unlimited Build


Digital plans with an unlimited build license emailed in PDF format, that allows for printing copies on a home printer or local print shop and sharing with contractors, subs, decorators and more 

PDF Unlimited Build $1,695
Digital plans including unlimited build license

CAD + PDF Unlimited Build


This plan package is created in AutoCAD and delivered in .DWG format. CAD files are intended for use by design professionals, structural engineers, and builders to update plans for local building codes or to make revisions based on specific needs, lot requirements, and budget considerations. A complimentary PDF copy is included with this package for reference. CAD packages are delivered within 1 to 2 business days.
 
This package also comes with a multi-use building license, granting permission to construct the home an unlimited number of times, along with a copyright release for making revisions and printing unlimited copies.
 
For details on the specific CAD program used, please refer to the PLAN DETAILS section located above the floor plan on each plan page.

CAD + PDF Unlimited Build $2,195
2D electronic editable computer files
STEP 2 Need To Reverse This Plan?
STEP 3 CHOOSE YOUR FOUNDATION
STEP 4 OPTIONAL ADD-ONS
Subtotal:
$1195
FREE SHIPPING
 
Plan Details
See All Details
Finished Square Footage
2,230 Sq. Ft.
Main Level:
2,230 Sq. Ft.
Total:
Room Details
4
Bedrooms:
2
Full Baths:
1
Half Baths:
General House Information
1
Number of Stories:
67' 4"
Width:
66' 0"
Depth:
Single
Dwelling Number:
Unfinished Square Footage
475 Sq. Ft.
Garage:
176 Sq. Ft.
Porch:
238 Sq. Ft.
Rear Porch:
GARAGE
Front
Garage Location:
2
Garage Size:
Exterior Style
Farmhouse
Modern Farmhouse
Ranch
Collections
Kitchens
Split Bedroom
Foundation
Basement
Crawl Space
Daylight Basement
Monolithic Slab
Slab
Stem Wall Slab
Walkout Basement
Framing Information
Stick
Roof Framing:
2x4
Exterior Wall Framing:
Roof Pitch
10/12
Primary:
7/12
Secondary:
Insulation (R)
House And Ceiling Heights
10
First Floor Ceiling:
9
Second Floor Ceiling:
21' 3"
Maximum House Height:
Key Features
Attached
Butler's Pantry
Covered Front Porch
Dining Room
Double Vanity Sink
Family Room
Fireplace
Kitchen Island
Laundry 1st Fl
L-Shaped
Primary Bdrm Main Floor
Mud Room
Outdoor Living Space
Peninsula / Eating Bar
Side-entry
Split Bedrooms
Suited for corner lot
Walk-in Closet

Our Guarantees

  • Only the highest quality plans
  • Int’l Residential Code Compliant
  • Full structural details on all plans
  • Best plan price guarantee
  • Free modification Estimates
  • Builder-ready construction drawings
  • Expert advice from leading designers
  •  PDFs NOW!™ plans in minutes
  • 100% satisfaction guarantee
  • Free Home Building Organizer