15% off ALL House Plans Sitewide
15% off ALL House Plans Sitewide

House Plan: DFD-11973

See All 11 Photos > (photographs may reflect modified homes)
© copyright by designer
SQ FT
3,961
BEDS
4
BATHS
3
STORIES
2
CARS
3
HOUSE PLANS SALE 
START AT  $1,100.75
For questions and help, live chat, email or call us at 877-895-5299
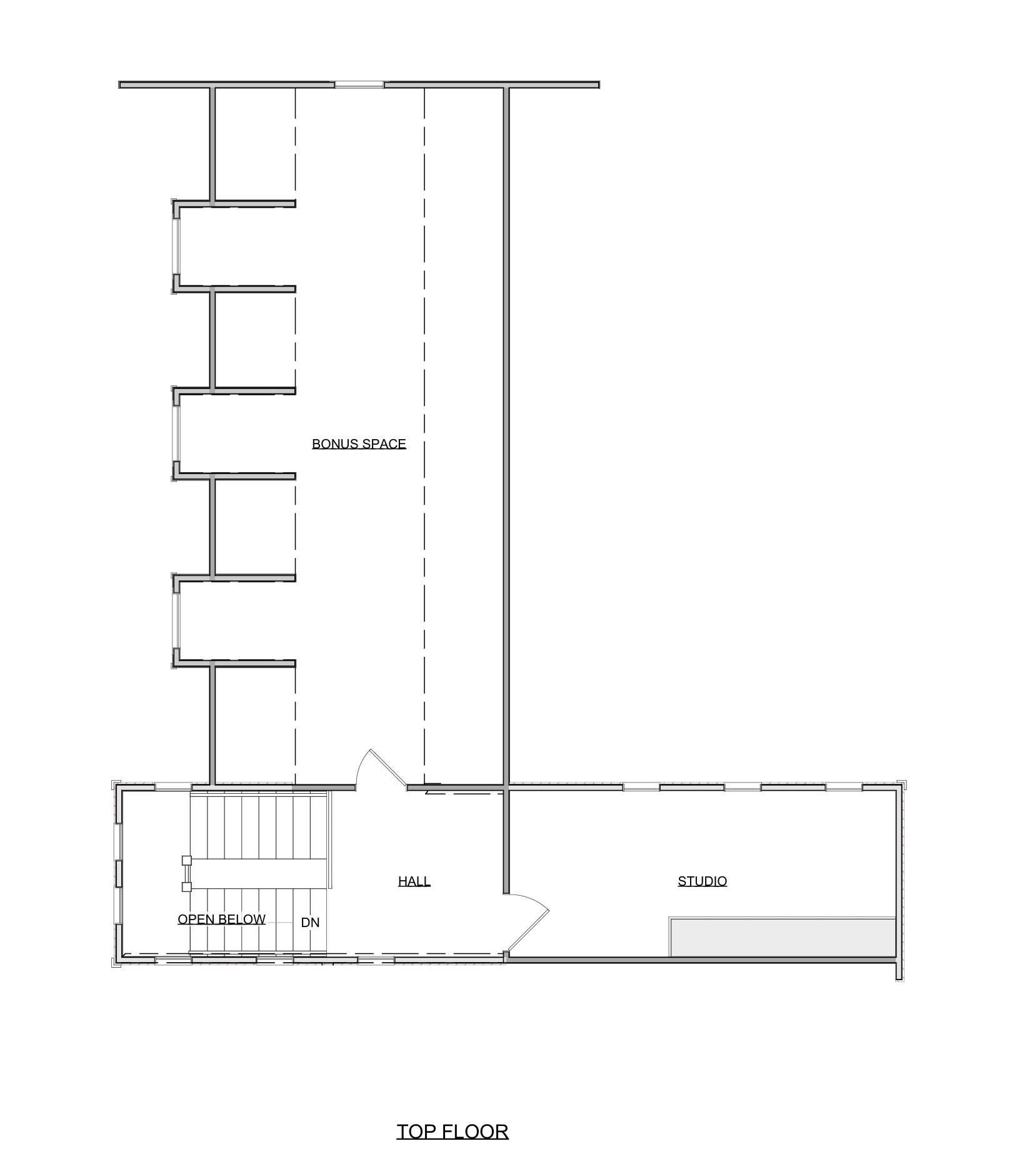
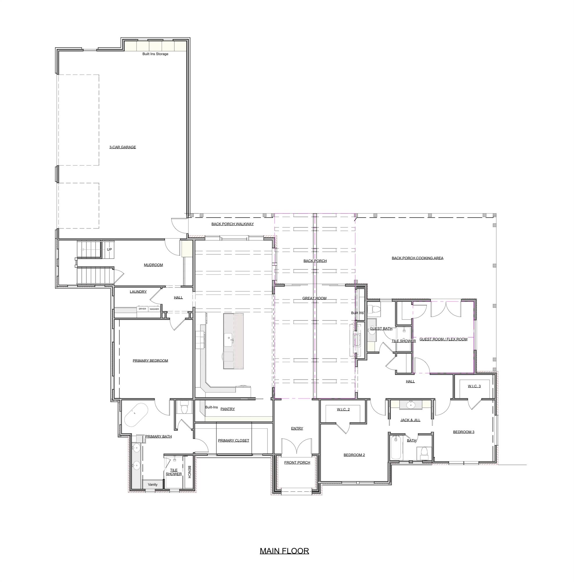
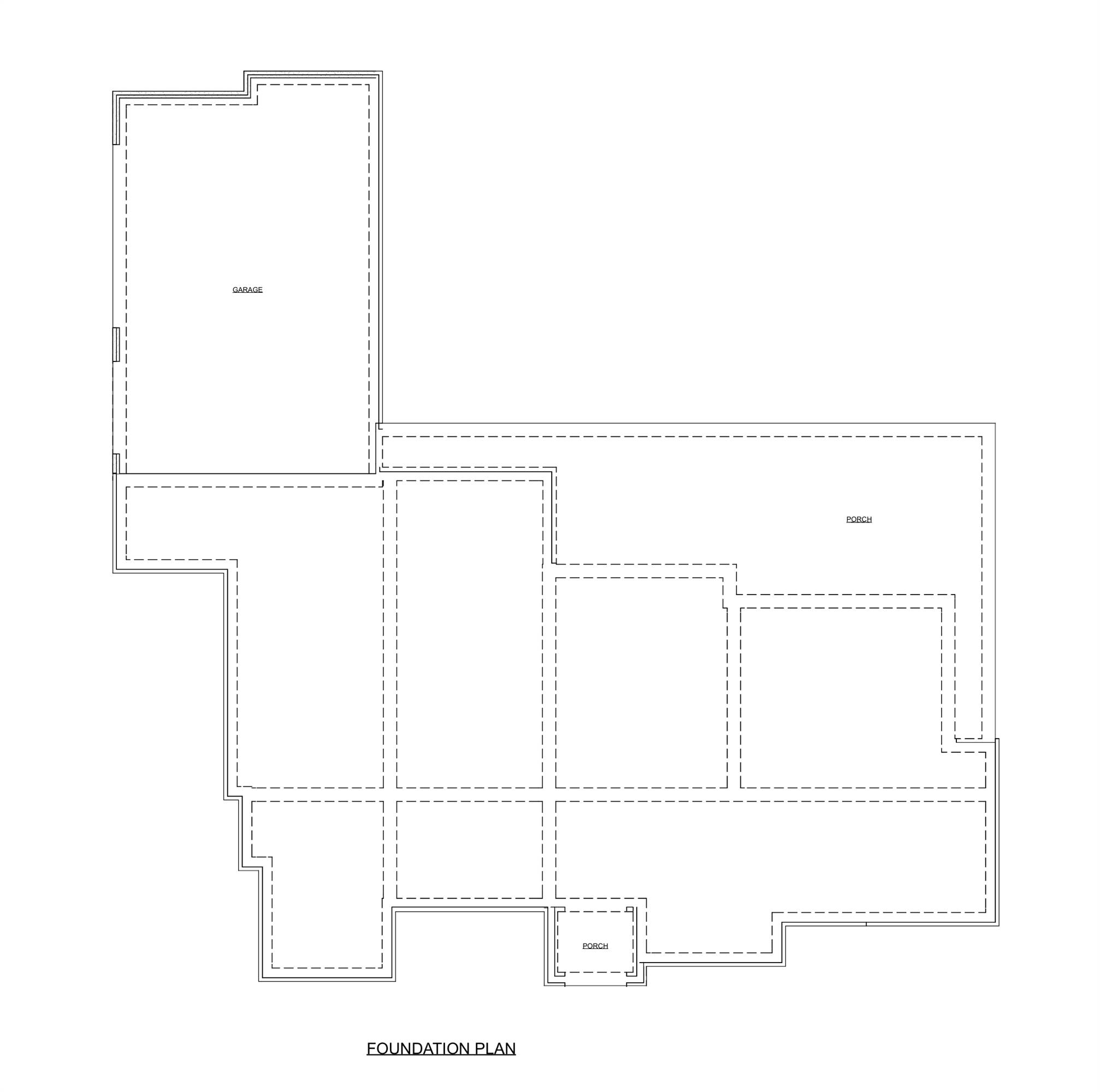
Floor Plans
Click to Zoom In on Floor Plan
 
About House Plan 11973:
Offering 3,961 square feet of welcoming living space, this 4-bedroom home is thoughtfully arranged to make family life both easy and enjoyable. The kitchen provides exceptional function with its island, peninsula, walk-in pantry, and breakfast nook, all flowing naturally into the dining room and great room. A main floor primary suite offers peaceful privacy, complete with a walk-in closet and a spacious bath. Split bedrooms give everyone room to unwind, while the home office and mud room support smooth daily transitions. Upstairs, a bonus room and rec room deliver flexible areas for entertainment, hobbies, or extra storage. Outdoor living is a highlight, featuring a covered front porch, expansive covered rear porch, and a fully outfitted outdoor kitchen perfect for gatherings. Blending comfort with purposeful design, this home offers a warm and inviting environment ideal for everyday family living.
House Plan Pricing
STEP 1 Select Your Package

PDF Single Build


Digital plans emailed to you in PDF format that allows for printing copies and sharing electronically with contractors, subs, decorators, and more. This package includes a license to build the home one time.

PDF Single Build $1,295
Most recommended package

PDF Unlimited Build


Digital plans with an unlimited build license emailed in PDF format, that allows for printing copies on a home printer or local print shop and sharing with contractors, subs, decorators and more 

PDF Unlimited Build $1,795
Digital plans including unlimited build license

CAD + PDF Unlimited Build


This plan package is created in AutoCAD and delivered in .DWG format. CAD files are intended for use by design professionals, structural engineers, and builders to update plans for local building codes or to make revisions based on specific needs, lot requirements, and budget considerations. A complimentary PDF copy is included with this package for reference. CAD packages are delivered within 1 to 2 business days.
 
This package also comes with a multi-use building license, granting permission to construct the home an unlimited number of times, along with a copyright release for making revisions and printing unlimited copies.
 
For details on the specific CAD program used, please refer to the PLAN DETAILS section located above the floor plan on each plan page.

CAD + PDF Unlimited Build $2,295
2D electronic editable computer files
STEP 2 Need To Reverse This Plan?
STEP 3 CHOOSE YOUR FOUNDATION
STEP 4 OPTIONAL ADD-ONS
Subtotal:
$1295
FREE SHIPPING
 
Plan Details
See All Details
Finished Square Footage
3,038 Sq. Ft.
Main Level:
932 Sq. Ft.
Upper Level:
3,961 Sq. Ft.
Total:
Room Details
4
Bedrooms:
3
Full Baths:
General House Information
2
Number of Stories:
87' 3"
Width:
90' 1"
Depth:
Single
Dwelling Number:
2nd Floor
Bonus Access:
Unfinished Square Footage
1001 Sq. Ft.
Garage:
56 Sq. Ft.
Porch:
835 Sq. Ft.
Deck:
GARAGE
Rear
Garage Location:
3
Garage Size:
Exterior Style
Country
European
Collections
Kitchens
Luxury
Open Floor Plan
Split Bedroom
Foundation
Basement
Crawl Space
Daylight Basement
Monolithic Slab
Slab
Stem Wall Slab
Walkout Basement
Framing Information
Stick
Roof Framing:
2x4
Exterior Wall Framing:
Roof Pitch
10/12
Primary:
12/12
Secondary:
Insulation (R)
House And Ceiling Heights
10
First Floor Ceiling:
8
Second Floor Ceiling:
29' 0"
Maximum House Height:
Key Features
Attached
Bonus Room
Butler's Pantry
Covered Front Porch
Covered Rear Porch
Dining Room
Double Vanity Sink
Fireplace
Great Room
Home Office
Kitchen Island
Laundry 1st Fl
L-Shaped
Primary Bdrm Main Floor
Mud Room
Nook / Breakfast Area
Open Floor Plan
Outdoor Kitchen
Outdoor Living Space
Peninsula / Eating Bar
Rec Room
Separate Tub and Shower
Side-entry
Split Bedrooms
Suited for corner lot
Vaulted Great Room/Living
Walk-in Closet

Our Guarantees

  • Only the highest quality plans
  • Int’l Residential Code Compliant
  • Full structural details on all plans
  • Best plan price guarantee
  • Free modification Estimates
  • Builder-ready construction drawings
  • Expert advice from leading designers
  •  PDFs NOW!™ plans in minutes
  • 100% satisfaction guarantee
  • Free Home Building Organizer