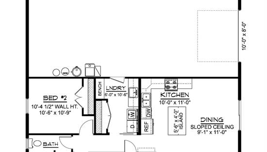
With 1,669 heated square feet, this home delivers a balanced layout designed for practical living and long-term comfort. The great room anchors the main level and flows seamlessly into the kitchen, making the open floor plan ideal for entertaining and everyday life. The primary bedroom is located on the main floor and features a walk-in closet for added convenience. A second-floor loft provides a versatile area that can adapt to changing needs over time. First-floor laundry keeps household tasks simple and efficient. An oversized attached garage with rear and side entry adds flexibility and storage potential. This home offers a warm, functional layout that makes daily living feel effortless.
With 1,669 heated square feet, this home delivers a balanced layout designed for practical living and long-term comfort. The great room anchors the main level and flows seamlessly into the kitchen, making the open floor plan ideal for entertaining and everyday life. The primary bedroom is located on the main floor and features a walk-in closet for added convenience. A second-floor loft provides a versatile area that can adapt to changing needs over time. First-floor laundry keeps household tasks simple and efficient. An oversized attached garage with rear and side entry adds flexibility and storage potential. This home offers a warm, functional layout that makes daily living feel effortless.