15% off ALL House Plans Sitewide
15% off ALL House Plans Sitewide

House Plan: DFD-12003

See All 19 Photos > (photographs may reflect modified homes)
© copyright by designer
SQ FT
1,668
BEDS
3
BATHS
2.5
STORIES
2
CARS
2
HOUSE PLANS SALE 
START AT  $973.25
For questions and help, live chat, email or call us at 877-895-5299
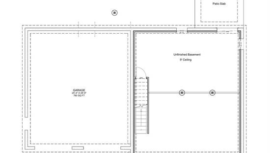
Floor Plans
Click to Zoom In on Floor Plan
 
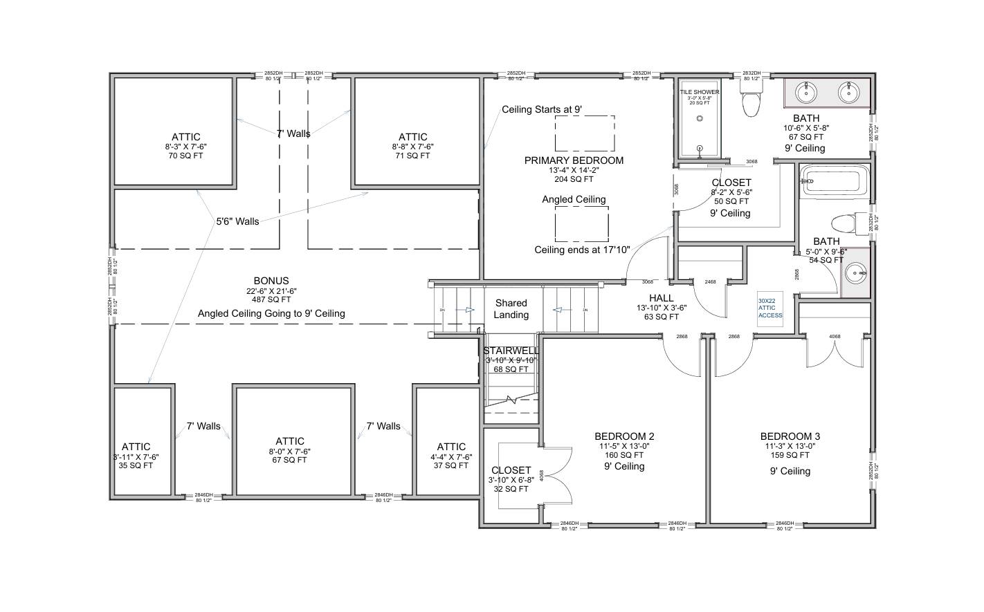
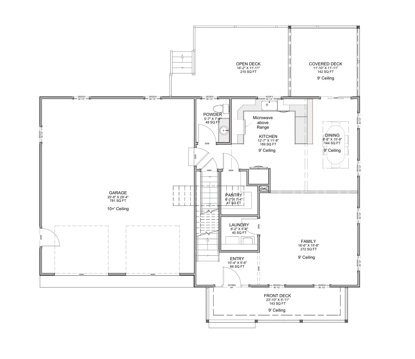
About House Plan 12003:
This 1,668-square-foot home brings together thoughtful features and a balanced layout suited for a variety of family needs. The kitchen’s U-shaped design, complete with a butler’s pantry, opens to the dining and family rooms to support easy hosting and everyday comfort. All bedrooms are located upstairs, including a bright primary suite with a walk-in closet and a double-vanity bath for added privacy. A first-floor laundry room and convenient storage spaces help keep the home organized, while the lower-level bonus room provides adaptable square footage for work, play, or hobbies. Outdoor living is highlighted by covered porches and a wide deck that extends gathering space into the open air. With its comfortable flow and inviting atmosphere, this home offers a warm setting where everyday moments feel special.
House Plan Pricing
STEP 1 Select Your Package

PDF Single Build


Digital plans emailed to you in PDF format that allows for printing copies and sharing electronically with contractors, subs, decorators, and more. This package includes a license to build the home one time.

PDF Single Build $1,145
Most recommended package

PDF Unlimited Build


Digital plans with an unlimited build license emailed in PDF format, that allows for printing copies on a home printer or local print shop and sharing with contractors, subs, decorators and more 

PDF Unlimited Build $1,645
Digital plans including unlimited build license

CAD + PDF Unlimited Build


This plan package is created in AutoCAD and delivered in .DWG format. CAD files are intended for use by design professionals, structural engineers, and builders to update plans for local building codes or to make revisions based on specific needs, lot requirements, and budget considerations. A complimentary PDF copy is included with this package for reference. CAD packages are delivered within 1 to 2 business days.
 
This package also comes with a multi-use building license, granting permission to construct the home an unlimited number of times, along with a copyright release for making revisions and printing unlimited copies.
 
For details on the specific CAD program used, please refer to the PLAN DETAILS section located above the floor plan on each plan page.

CAD + PDF Unlimited Build $2,145
2D electronic editable computer files
STEP 2 Need To Reverse This Plan?
STEP 3 CHOOSE YOUR FOUNDATION
STEP 4 OPTIONAL ADD-ONS
Subtotal:
$1145
FREE SHIPPING
 
Plan Details
See All Details
Finished Square Footage
833 Sq. Ft.
Main Level:
835 Sq. Ft.
Upper Level:
891 Sq. Ft.
Lower Level:
1,668 Sq. Ft.
Total:
Room Details
3
Bedrooms:
2
Full Baths:
1
Half Baths:
General House Information
2
Number of Stories:
53' 10"
Width:
32' 0"
Depth:
Single
Dwelling Number:
2nd Floor
Bonus Access:
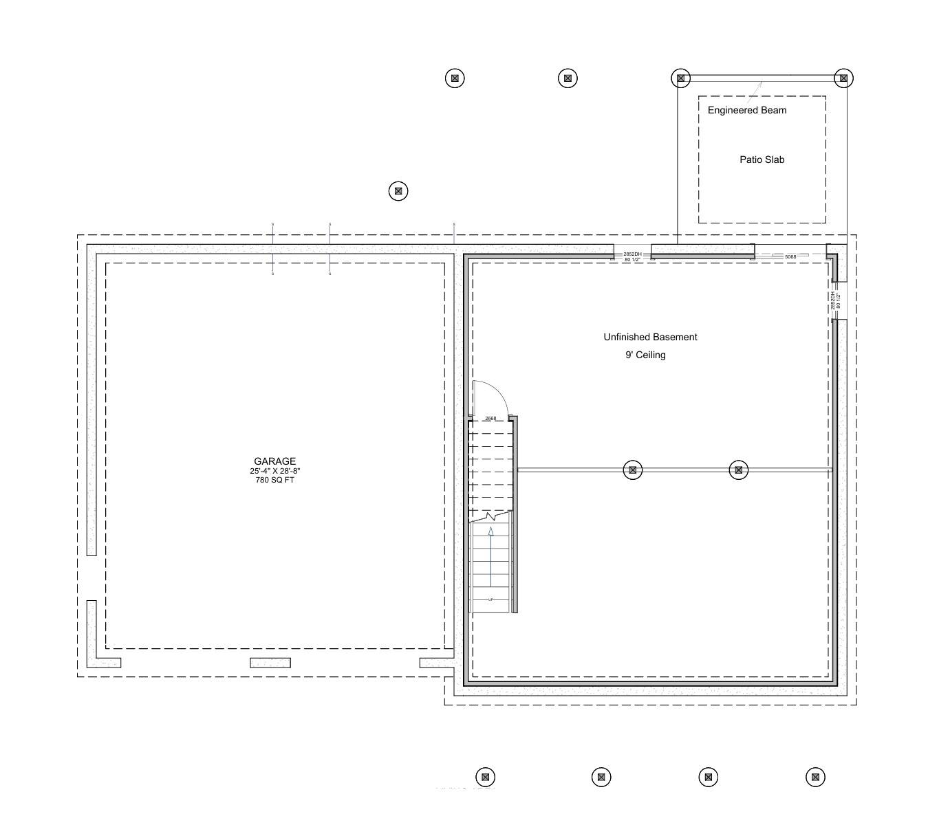
Unfinished Square Footage
781 Sq. Ft.
Garage:
143 Sq. Ft.
Porch:
352 Sq. Ft.
Deck:
487 Sq. Ft.
Bonus Room:
GARAGE
Side
Garage Location:
2
Garage Size:
Exterior Style
Country
Farmhouse
Collections
First Home
Open Floor Plan
Outdoor Living
Foundation
Basement
Crawl Space
Daylight Basement
Monolithic Slab
Slab
Stem Wall Slab
Walkout Basement
Framing Information
Stick
Roof Framing:
2x4
Exterior Wall Framing:
Roof Pitch
8/12
Primary:
4/12
Secondary:
Insulation (R)
House And Ceiling Heights
9
First Floor Ceiling:
9
Second Floor Ceiling:
29' 5"
Maximum House Height:
Key Features
Attached
Bonus Room
Butler's Pantry
Covered Front Porch
Covered Rear Porch
Deck
Dining Room
Double Vanity Sink
Family Room
Family Style
Front-entry
Laundry 1st Fl
Primary Bdrm Upstairs
Open Floor Plan
Outdoor Living Space
Suited for corner lot
U-Shaped
Walk-in Closet

Our Guarantees

  • Only the highest quality plans
  • Int’l Residential Code Compliant
  • Full structural details on all plans
  • Best plan price guarantee
  • Free modification Estimates
  • Builder-ready construction drawings
  • Expert advice from leading designers
  •  PDFs NOW!™ plans in minutes
  • 100% satisfaction guarantee
  • Free Home Building Organizer