15% off ALL House Plans Sitewide
15% off ALL House Plans Sitewide

House Plan: DFD-12006

See All 12 Photos > (photographs may reflect modified homes)
© copyright by designer
SQ FT
2,898
BEDS
4
BATHS
3.5
STORIES
2
CARS
2
HOUSE PLANS SALE 
START AT  $1,058.25
For questions and help, live chat, email or call us at 877-895-5299
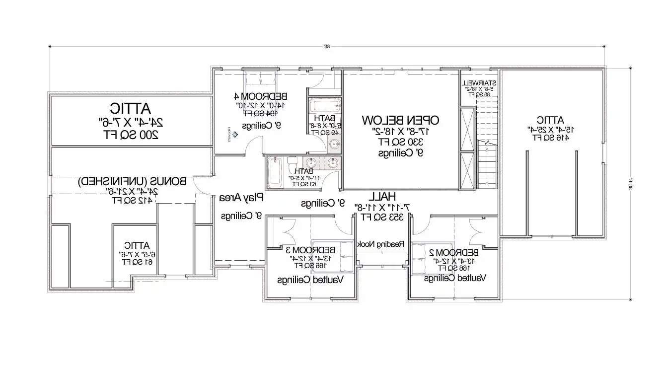
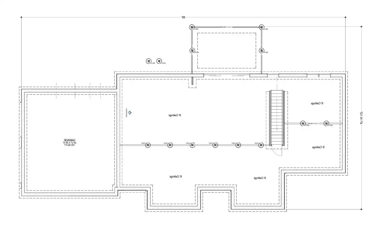
Floor Plans
Click to Zoom In on Floor Plan
 
About House Plan 12006:
With 2,898 square feet of inviting space, this home delivers a warm layout centered on connection and comfort. The spacious kitchen, complete with a peninsula eating bar, island, and butler’s pantry, flows easily into the great room for relaxed family living. The main-floor primary bedroom provides a peaceful retreat, featuring a double vanity sink and walk-in closet, while upstairs bedrooms give everyone room to settle in. The large deck and covered rear porch extend daily life outside, creating wonderful spots for fresh-air dining or quiet afternoons. A bonus room and a library/media room add flexible areas for recreation, work, or cozy evenings. Practical touches like the mud room and first-floor laundry help keep routines organized and simple. This thoughtful floor plan offers warmth, convenience, and flexibility, making every day feel beautifully at home.
House Plan Pricing
STEP 1 Select Your Package

PDF Single Build


Digital plans emailed to you in PDF format that allows for printing copies and sharing electronically with contractors, subs, decorators, and more. This package includes a license to build the home one time.

PDF Single Build $1,245
Most recommended package

PDF Unlimited Build


Digital plans with an unlimited build license emailed in PDF format, that allows for printing copies on a home printer or local print shop and sharing with contractors, subs, decorators and more 

PDF Unlimited Build $1,745
Digital plans including unlimited build license

CAD + PDF Unlimited Build


This plan package is created in AutoCAD and delivered in .DWG format. CAD files are intended for use by design professionals, structural engineers, and builders to update plans for local building codes or to make revisions based on specific needs, lot requirements, and budget considerations. A complimentary PDF copy is included with this package for reference. CAD packages are delivered within 1 to 2 business days.
 
This package also comes with a multi-use building license, granting permission to construct the home an unlimited number of times, along with a copyright release for making revisions and printing unlimited copies.
 
For details on the specific CAD program used, please refer to the PLAN DETAILS section located above the floor plan on each plan page.

CAD + PDF Unlimited Build $2,245
2D electronic editable computer files
STEP 2 Need To Reverse This Plan?
STEP 3 CHOOSE YOUR FOUNDATION
STEP 4 OPTIONAL ADD-ONS
Subtotal:
$1245
FREE SHIPPING
 
Plan Details
See All Details
Finished Square Footage
1,860 Sq. Ft.
Main Level:
1,038 Sq. Ft.
Upper Level:
1,898 Sq. Ft.
Lower Level:
2,898 Sq. Ft.
Total:
Room Details
4
Bedrooms:
3
Full Baths:
1
Half Baths:
General House Information
2
Number of Stories:
85' 0"
Width:
47' 6"
Depth:
Single
Dwelling Number:
Unfinished Square Footage
726 Sq. Ft.
Garage:
27 Sq. Ft.
Porch:
223 Sq. Ft.
Deck:
412 Sq. Ft.
Bonus Room:
GARAGE
Side
Garage Location:
2
Garage Size:
Exterior Style
French Country
Modern Farmhouse
Transitional
Collections
Primary Suites
Open Floor Plan
Outdoor Living
Split Bedroom
Foundation
Basement
Crawl Space
Daylight Basement
Monolithic Slab
Slab
Stem Wall Slab
Walkout Basement
Framing Information
Stick
Roof Framing:
2x4
Exterior Wall Framing:
Roof Pitch
10/12
Primary:
14/12
Secondary:
Insulation (R)
House And Ceiling Heights
10
First Floor Ceiling:
9
Second Floor Ceiling:
33' 3"
Maximum House Height:
Key Features
Attached
Bonus Room
Butler's Pantry
Covered Rear Porch
Deck
Dining Room
Double Vanity Sink
Fireplace
Great Room
Kitchen Island
Laundry 1st Fl
Library/Media Rm
L-Shaped
Primary Bdrm Main Floor
Mud Room
Open Floor Plan
Outdoor Living Space
Peninsula / Eating Bar
Separate Tub and Shower
Side-entry
Split Bedrooms
Suited for corner lot
Walk-in Closet

Our Guarantees

  • Only the highest quality plans
  • Int’l Residential Code Compliant
  • Full structural details on all plans
  • Best plan price guarantee
  • Free modification Estimates
  • Builder-ready construction drawings
  • Expert advice from leading designers
  •  PDFs NOW!™ plans in minutes
  • 100% satisfaction guarantee
  • Free Home Building Organizer