15% off ALL House Plans Sitewide
15% off ALL House Plans Sitewide

House Plan: DFD-12089

See All 16 Photos > (photographs may reflect modified homes)
© copyright by designer
SQ FT
3,219
BEDS
5
BATHS
5.5
STORIES
2
CARS
3
HOUSE PLANS SALE 
START AT  $1,615.00
For questions and help, live chat, email or call us at 877-895-5299
Floor Plans
Click to Zoom In on Floor Plan
 
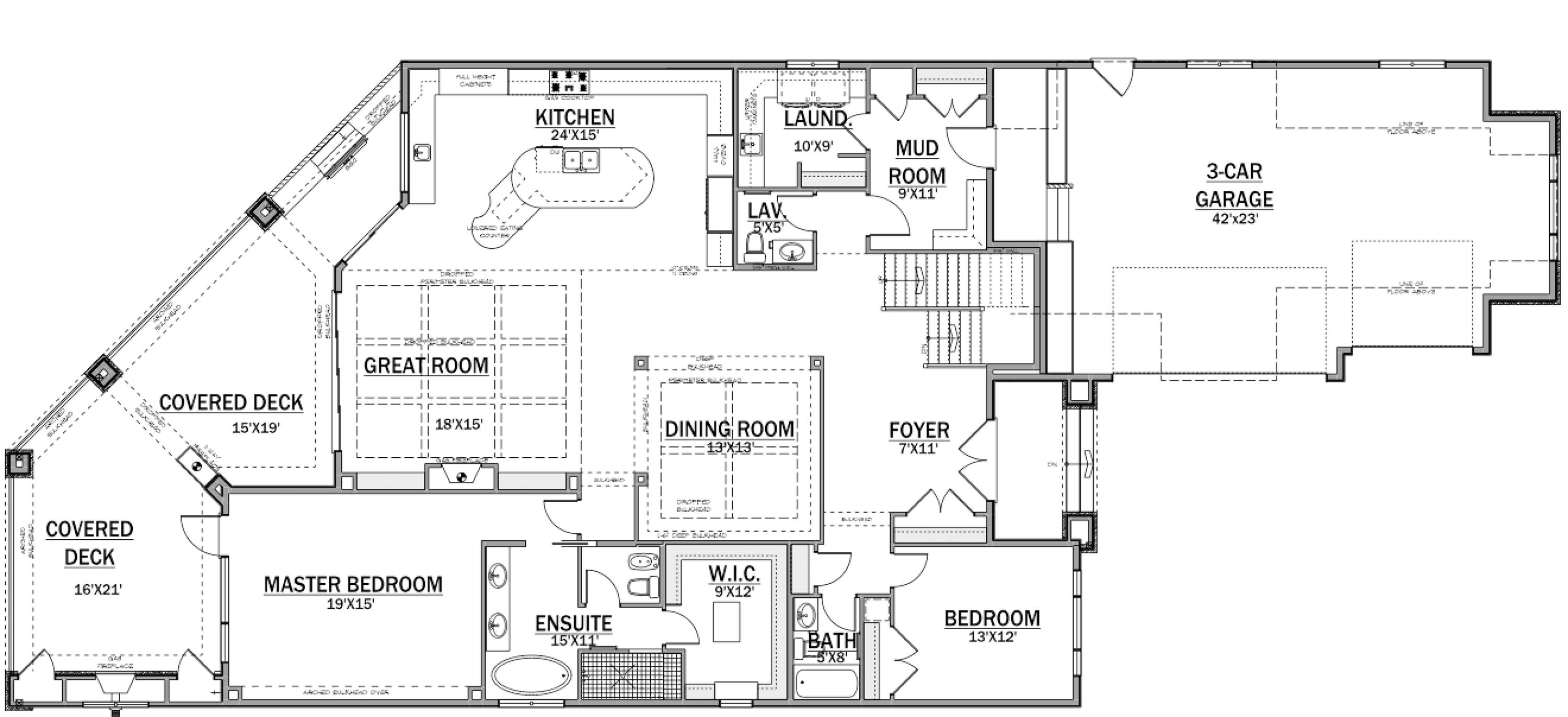
About House Plan 12089:
Offering 3,219 square feet of heated living space, this home is designed for both everyday living and entertaining with 5 bedrooms and 5.5 baths. The open floor plan brings together the great room, family room, and dining area, creating a welcoming flow anchored by a cozy fireplace. The kitchen features a U-shaped layout with a central island, peninsula seating, and clear sightlines into the main living spaces. The main-floor primary suite provides a private retreat with a walk-in closet and a bath that includes a separate tub and shower and double vanity. Additional living areas include a lower-level rec room, wine cellar, and ample storage for long-term organization. Outdoor spaces extend the home’s livability with a covered porch, deck, and outdoor kitchen designed for relaxed gatherings. With a front-attached, courtyard-style garage and thoughtful interior details throughout, this home offers flexibility and comfort at every turn.
House Plan Pricing
STEP 1 Select Your Package

PDF Single Build


Digital plans emailed to you in PDF format that allows for printing copies and sharing electronically with contractors, subs, decorators, and more. This package includes a license to build the home one time.

PDF Single Build $1,900
Most recommended package

CAD + PDF Single Build


This plan package is created in AutoCAD and delivered in .DWG format. CAD files are intended for use by design professionals, structural engineers, and builders to update plans for local building codes or to make revisions based on specific needs, lot requirements, and budget considerations. A complimentary PDF copy is included with this package for reference. CAD packages are delivered within 1 to 2 business days.
 
This package also comes with a copyright release for making revisions and printing unlimited copies.

For details on the specific CAD program used, please refer to the PLAN DETAILS section located above the floor plan on each plan page.

CAD + PDF Single Build $2,600
2D electronic editable computer files

CAD + PDF Unlimited Build


This plan package is created in AutoCAD and delivered in .DWG format. CAD files are intended for use by design professionals, structural engineers, and builders to update plans for local building codes or to make revisions based on specific needs, lot requirements, and budget considerations. A complimentary PDF copy is included with this package for reference. CAD packages are delivered within 1 to 2 business days.
 
This package also comes with a multi-use building license, granting permission to construct the home an unlimited number of times, along with a copyright release for making revisions and printing unlimited copies.
 
For details on the specific CAD program used, please refer to the PLAN DETAILS section located above the floor plan on each plan page.

CAD + PDF Unlimited Build $3,100

States N/A: CADUNLIMITEDBUILD
2D electronic editable computer files
STEP 2 Need To Reverse This Plan?
STEP 3 CHOOSE YOUR FOUNDATION
STEP 4 OPTIONAL ADD-ONS
Subtotal:
$1900
FREE SHIPPING
 
Plan Details
See All Details
Finished Square Footage
2,594 Sq. Ft.
Main Level:
625 Sq. Ft.
Upper Level:
2,060 Sq. Ft.
Lower Level:
3,219 Sq. Ft.
Total:
Room Details
5
Bedrooms:
5
Full Baths:
1
Half Baths:
General House Information
2
Number of Stories:
49' 0"
Width:
117' 0"
Depth:
Single
Dwelling Number:
None
Bonus Access:
Unfinished Square Footage
902 Sq. Ft.
Garage:
680 Sq. Ft.
Deck:
GARAGE
Front
Garage Location:
3
Garage Size:
Exterior Style
European
Farmhouse
French Country
Modern Farmhouse
Traditional
Collections
Canada
In-Law Suite
Kitchens
Luxury
Primary Suites
Open Floor Plan
Outdoor Living
Foundation
Basement
Walkout Basement
Framing Information
Truss
Roof Framing:
2x6
Exterior Wall Framing:
Roof Pitch
10/12
Primary:
Insulation (R)
House And Ceiling Heights
10
First Floor Ceiling:
8
Second Floor Ceiling:
34' 3"
Maximum House Height:
Key Features
Attached
Courtyard/Motorcourt Entry
Covered Rear Porch
Deck
Dining Room
Double Vanity Sink
Family Room
Family Style
Fireplace
Foyer
Great Room
In-law Suite
Kitchen Island
Laundry 1st Fl
Primary Bdrm Main Floor
Mud Room
Open Floor Plan
Outdoor Kitchen
Outdoor Living Space
Peninsula / Eating Bar
Rec Room
Separate Tub and Shower
Side-entry
Storage Space
Suited for corner lot
U-Shaped
Walk-in Closet
Wine Cellar

Our Guarantees

  • Only the highest quality plans
  • Int’l Residential Code Compliant
  • Full structural details on all plans
  • Best plan price guarantee
  • Free modification Estimates
  • Builder-ready construction drawings
  • Expert advice from leading designers
  •  PDFs NOW!™ plans in minutes
  • 100% satisfaction guarantee
  • Free Home Building Organizer