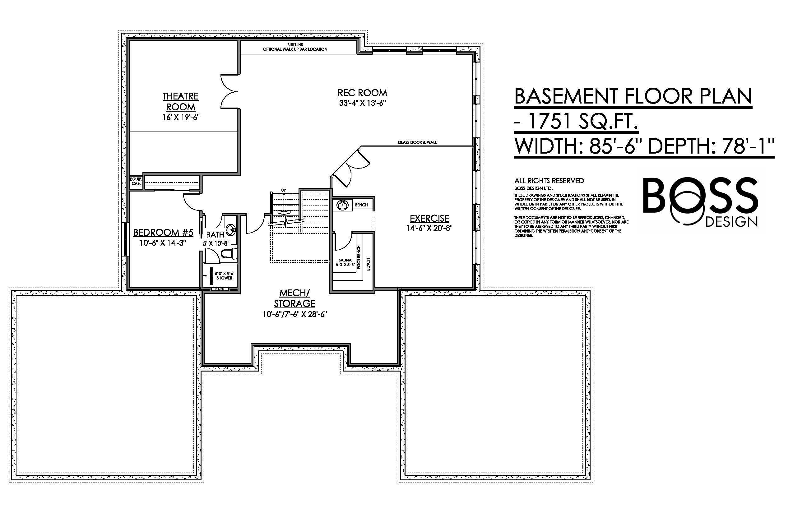
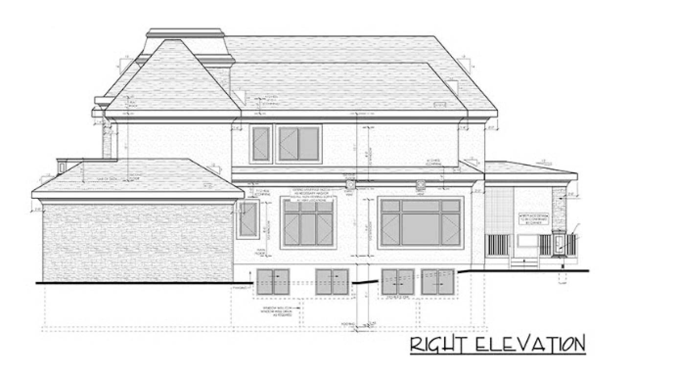
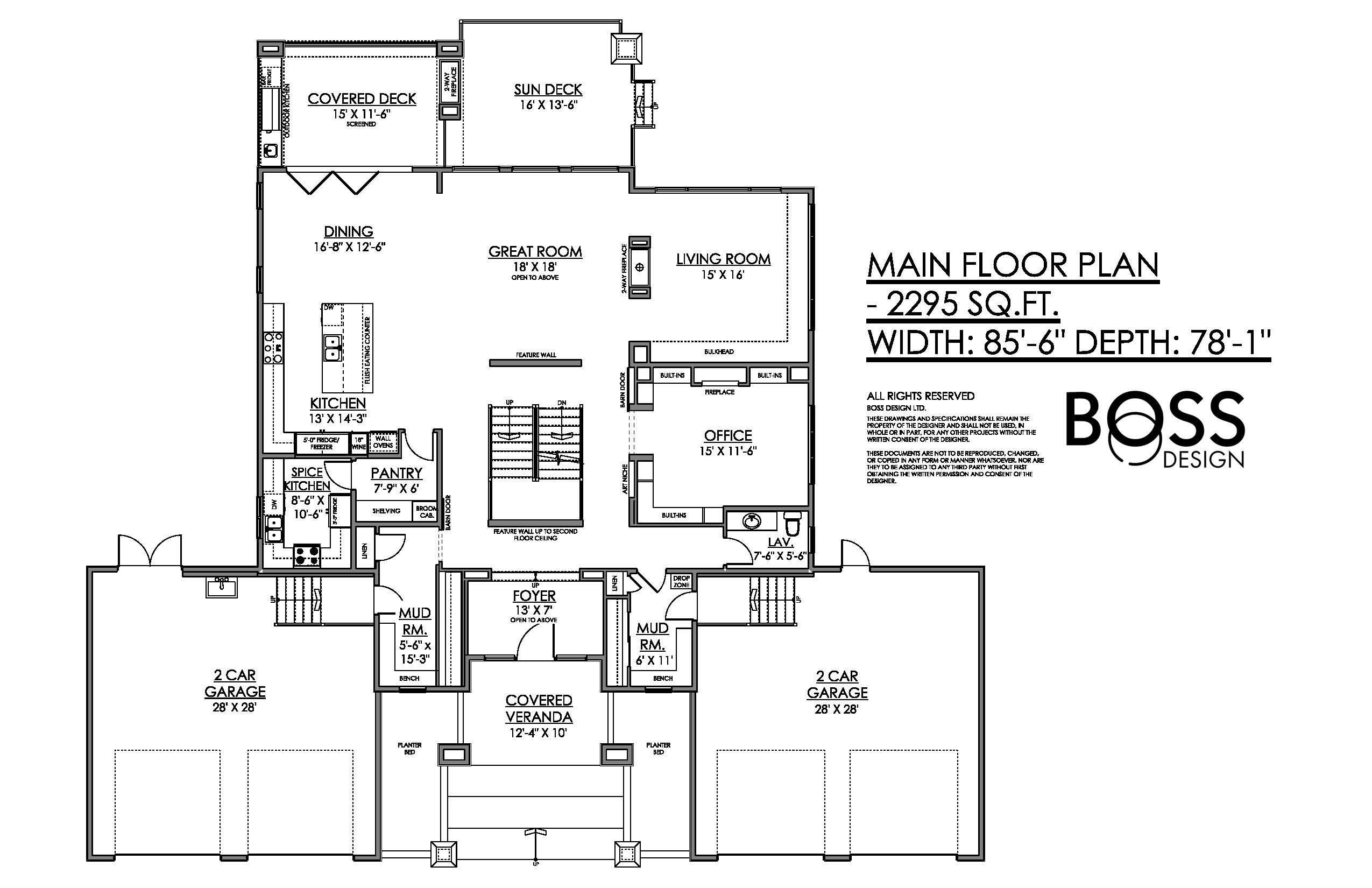
Designed for elevated family living, this home includes 4,595 square feet of heated space with 5 bedrooms and 6.5 baths spread across three functional floors. The heart of the main level is the open great room and kitchen combination, where an island, peninsula eating bar, and walk-in pantry make both everyday meals and entertaining effortless. Additional main-floor spaces include a formal living room, dining room, library or media room, and a dedicated home office. Two primary suites are located upstairs, offering private retreats with spacious walk-in closets and luxurious baths featuring double vanities and separate tubs and showers. The finished lower level adds even more living space with a rec room, exercise room, and ample storage for long-term organization. Outdoor areas extend the living experience with a deck, screened porch, and welcoming front porch. Thoughtfully designed and generously scaled, this home delivers comfort, flexibility, and room to grow for years to come.