15% off ALL House Plans Sitewide
15% off ALL House Plans Sitewide

House Plan: DFD-12171

See All 22 Photos > (photographs may reflect modified homes)
© copyright by designer
SQ FT
1,820
BEDS
3
BATHS
2.5
STORIES
2
CARS
4
HOUSE PLANS SALE 
START AT  $1,062.50
For questions and help, live chat, email or call us at 877-895-5299
Floor Plans
Click to Zoom In on Floor Plan
 
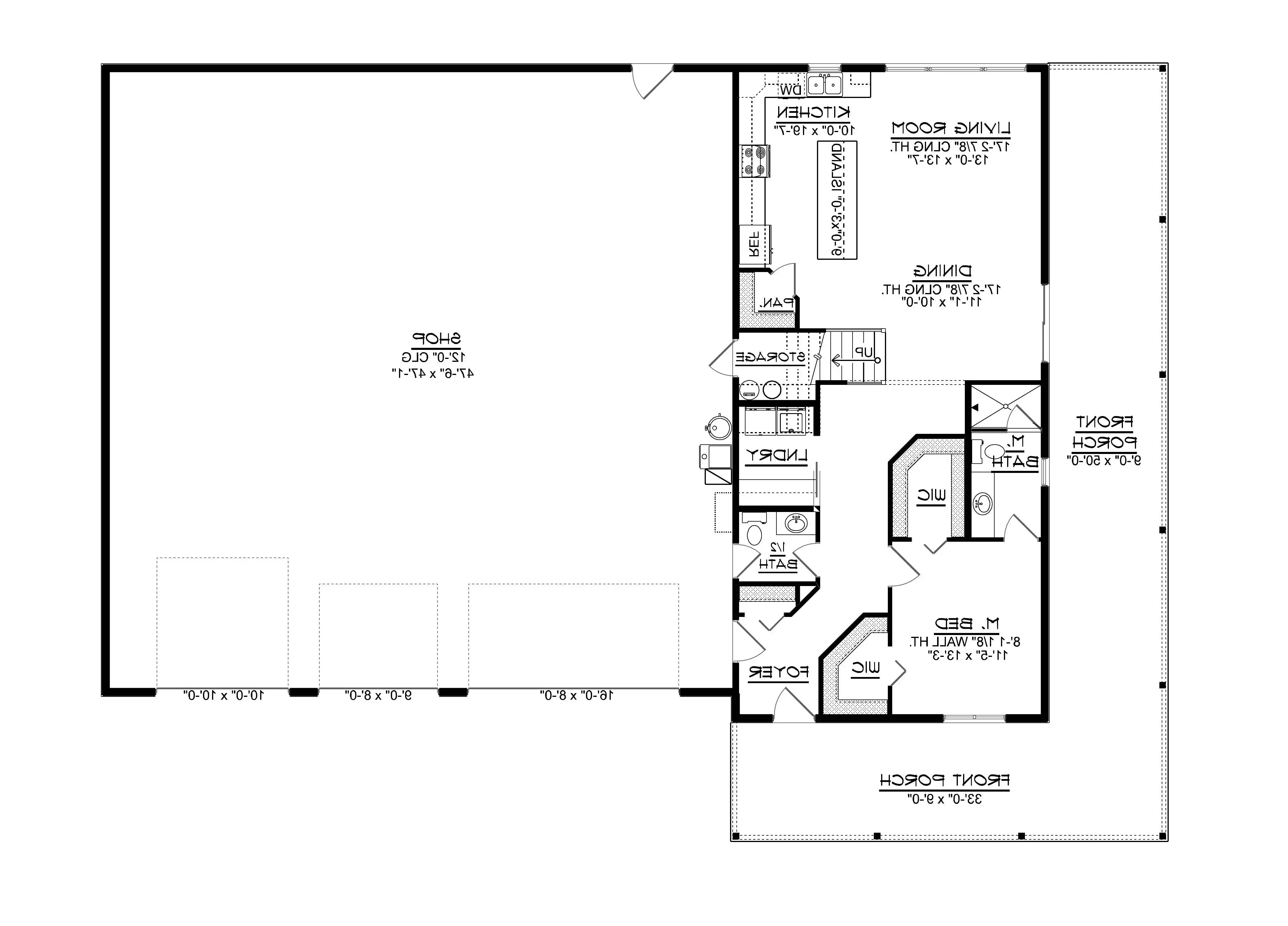
About House Plan 12171:
House Plan 12171 is a versatile barndominium-style design that pairs efficient living space with an expansive garage and workshop. The main floor offers an open-concept layout anchored by a kitchen with island seating, walk-in pantry, and easy flow to the living and dining areas. The primary bedroom is located on the main level and includes dual closets and a private bath for everyday comfort. Two additional bedrooms are positioned in a split layout to maintain privacy. A loft level adds flexible square footage that works well as an office, studio, or hobby space. With its oversized attached garage, wraparound porch, and farmhouse-inspired exterior, this plan is well suited for rural properties, workshops, or multi-use living.
House Plan Pricing
STEP 1 Select Your Package

PDF Single Build


Digital plans emailed to you in PDF format that allows for printing copies and sharing electronically with contractors, subs, decorators, and more. This package includes a license to build the home one time.

PDF Single Build $1,250
Most recommended package

5 Printed Sets + PDF


Includes 5 physical printed blueprint sets, shipped free via UPS within the U.S. Printed sets ship within 1 business day and are delivered within 3 – 5 business days. A complimentary PDF plan set is also emailed within 1 business day for easy sharing and local printing. These plans may be used to construct one home.

5 Printed Sets + PDF $1,600
5 Printed Sets + PDF

PDF Unlimited Build


Digital plans with an unlimited build license emailed in PDF format, that allows for printing copies on a home printer or local print shop and sharing with contractors, subs, decorators and more 

PDF Unlimited Build $1,850
Digital plans including unlimited build license

CAD + PDF Single Build


This plan package is created in AutoCAD and delivered in .DWG format. CAD files are intended for use by design professionals, structural engineers, and builders to update plans for local building codes or to make revisions based on specific needs, lot requirements, and budget considerations. A complimentary PDF copy is included with this package for reference. CAD packages are delivered within 1 to 2 business days.
 
This package also comes with a copyright release for making revisions and printing unlimited copies.

For details on the specific CAD program used, please refer to the PLAN DETAILS section located above the floor plan on each plan page.

CAD + PDF Single Build $2,300
2D electronic editable computer files

CAD + PDF Unlimited Build


This plan package is created in AutoCAD and delivered in .DWG format. CAD files are intended for use by design professionals, structural engineers, and builders to update plans for local building codes or to make revisions based on specific needs, lot requirements, and budget considerations. A complimentary PDF copy is included with this package for reference. CAD packages are delivered within 1 to 2 business days.
 
This package also comes with a multi-use building license, granting permission to construct the home an unlimited number of times, along with a copyright release for making revisions and printing unlimited copies.
 
For details on the specific CAD program used, please refer to the PLAN DETAILS section located above the floor plan on each plan page.

CAD + PDF Unlimited Build $2,850
2D electronic editable computer files
STEP 2 CHOOSE YOUR FOUNDATION
STEP 3 OPTIONAL ADD-ONS
Subtotal:
$1250
FREE SHIPPING
 
Plan Details
See All Details
Finished Square Footage
1,223 Sq. Ft.
Main Level:
597 Sq. Ft.
Upper Level:
1,820 Sq. Ft.
Total:
Room Details
3
Bedrooms:
2
Full Baths:
1
Half Baths:
General House Information
2
Number of Stories:
81' 0"
Width:
59' 0"
Depth:
Single
Dwelling Number:
Unfinished Square Footage
2334 Sq. Ft.
Garage:
732 Sq. Ft.
Porch:
GARAGE
Side
Garage Location:
4
Garage Size:
Exterior Style
Barndominium
Country
Farmhouse
Collections
Open Floor Plan
Outdoor Living
Split Bedroom
Foundation
Basement
Crawl Space
Slab
Walkout
Framing Information
Truss
Roof Framing:
2x6
Exterior Wall Framing:
Roof Pitch
5/12
Primary:
6/12
Secondary:
Insulation (R)
19
Exterior Wall:
36
Ceiling:
House And Ceiling Heights
8
First Floor Ceiling:
8
Second Floor Ceiling:
23' 8"
Maximum House Height:
Key Features
Attached
Covered Front Porch
Dining Room
Foyer
Front-entry
His and Hers Primary Closets
Kitchen Island
Laundry 1st Fl
Loft / Balcony
L-Shaped
Primary Bdrm Main Floor
Outdoor Living Space
Oversized
RV Garage
Split Bedrooms
Storage Space
Suited for view lot
Walk-in Closet
Walk-in Pantry
Workshop
Wraparound Porch

Our Guarantees

  • Only the highest quality plans
  • Int’l Residential Code Compliant
  • Full structural details on all plans
  • Best plan price guarantee
  • Free modification Estimates
  • Builder-ready construction drawings
  • Expert advice from leading designers
  •  PDFs NOW!™ plans in minutes
  • 100% satisfaction guarantee
  • Free Home Building Organizer