15% off ALL House Plans Sitewide
15% off ALL House Plans Sitewide

House Plan: DFD-12223

See All 8 Photos > (photographs may reflect modified homes)
© copyright by designer
SQ FT
3,183
BEDS
3
BATHS
3
STORIES
2
CARS
2
HOUSE PLANS SALE 
START AT  $1,215.50
For questions and help, live chat, email or call us at 877-895-5299
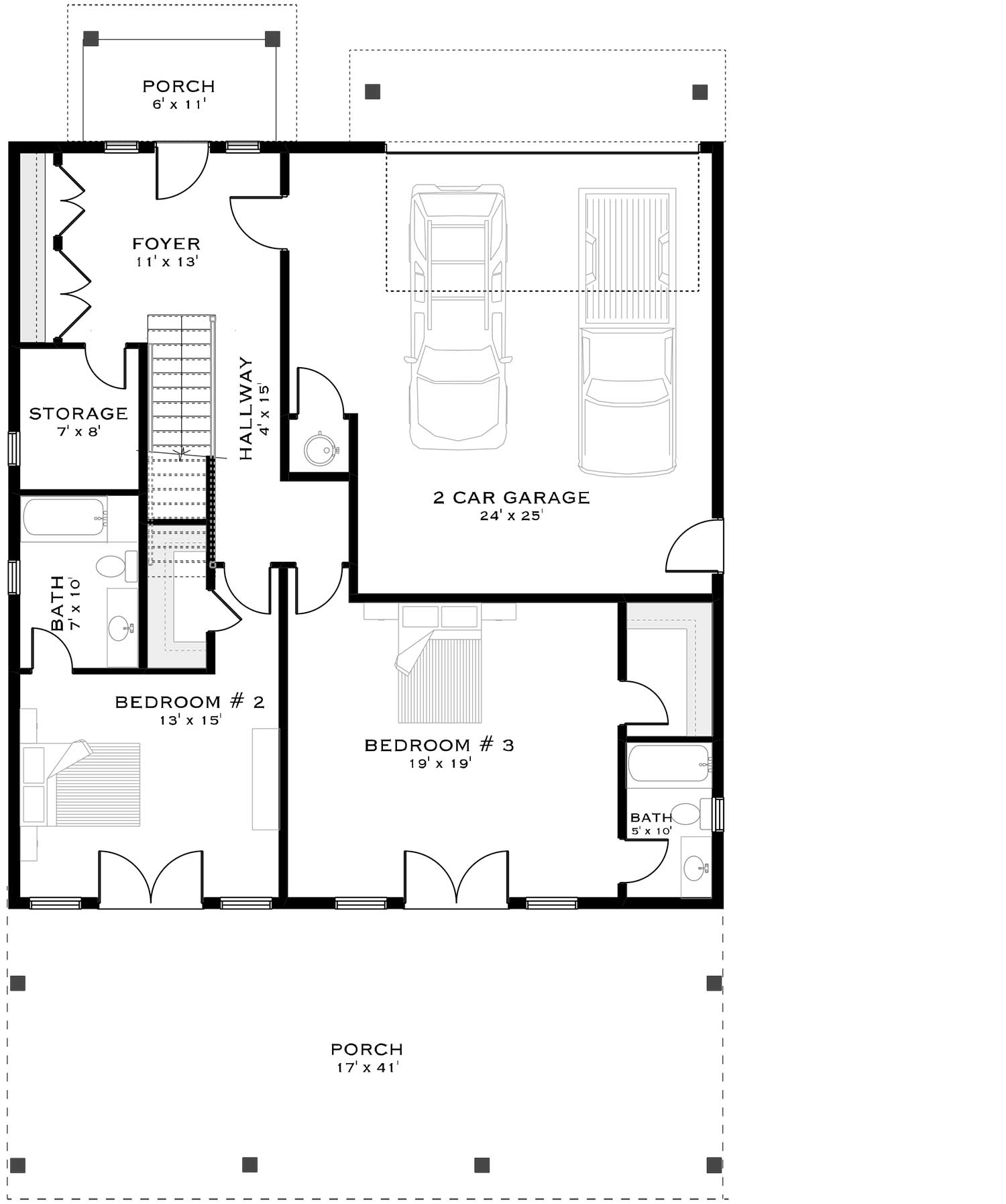
Floor Plans
Click to Zoom In on Floor Plan
 
About House Plan 12223:
Offering 3,183 square feet of heated space, this thoughtfully designed home includes 3 bedrooms and 3 baths with a unique inverted living concept. Vaulted ceilings define the great room and create an airy, open atmosphere that connects seamlessly to the kitchen and dining areas. The kitchen is designed for both function and style with an island, walk-in pantry, and easy flow for entertaining. Upstairs, the primary suite provides comfort and privacy with a walk-in closet, double vanity, and a separate tub and shower. Storage space is thoughtfully integrated throughout the home, along with a second-floor laundry for everyday ease. Covered front and rear porches and generous outdoor living areas complete this inviting and flexible home design.
House Plan Pricing
STEP 1 Select Your Package

PDF Single Build


Digital plans emailed to you in PDF format that allows for printing copies and sharing electronically with contractors, subs, decorators, and more. This package includes a license to build the home one time.

PDF Single Build $1,430
Most recommended package

CAD + PDF Single Build


This plan package is created in AutoCAD and delivered in .DWG format. CAD files are intended for use by design professionals, structural engineers, and builders to update plans for local building codes or to make revisions based on specific needs, lot requirements, and budget considerations. A complimentary PDF copy is included with this package for reference. CAD packages are delivered within 1 to 2 business days.
 
This package also comes with a copyright release for making revisions and printing unlimited copies.

For details on the specific CAD program used, please refer to the PLAN DETAILS section located above the floor plan on each plan page.

CAD + PDF Single Build $1,830
2D electronic editable computer files

PDF Unlimited Build


Digital plans with an unlimited build license emailed in PDF format, that allows for printing copies on a home printer or local print shop and sharing with contractors, subs, decorators and more 

PDF Unlimited Build $2,130
Digital plans including unlimited build license

CAD + PDF Unlimited Build


This plan package is created in AutoCAD and delivered in .DWG format. CAD files are intended for use by design professionals, structural engineers, and builders to update plans for local building codes or to make revisions based on specific needs, lot requirements, and budget considerations. A complimentary PDF copy is included with this package for reference. CAD packages are delivered within 1 to 2 business days.
 
This package also comes with a multi-use building license, granting permission to construct the home an unlimited number of times, along with a copyright release for making revisions and printing unlimited copies.
 
For details on the specific CAD program used, please refer to the PLAN DETAILS section located above the floor plan on each plan page.

CAD + PDF Unlimited Build $2,615
2D electronic editable computer files
STEP 2 Need To Reverse This Plan?
STEP 3 CHOOSE YOUR FOUNDATION
STEP 4 OPTIONAL ADD-ONS
Subtotal:
$1430
FREE SHIPPING

Note: F2
 
Plan Details
See All Details
Finished Square Footage
1,177 Sq. Ft.
Main Level:
2,006 Sq. Ft.
Upper Level:
3,183 Sq. Ft.
Total:
Room Details
3
Bedrooms:
3
Full Baths:
General House Information
2
Number of Stories:
41' 1"
Width:
65' 9"
Depth:
Single
Dwelling Number:
Unfinished Square Footage
633 Sq. Ft.
Garage:
66 Sq. Ft.
Front Porch:
697 Sq. Ft.
Rear Porch:
492 Sq. Ft.
Deck:
GARAGE
Front
Garage Location:
2
Garage Size:
Exterior Style
Contemporary
Mid-Century Modern
Modern
Collections
Builders
Kitchens
Primary Suites
Open Floor Plan
Split Bedroom
Vacation
Foundation
Slab
Framing Information
Stick
Roof Framing:
2x4 or 2x6
Exterior Wall Framing:
Roof Pitch
3/12
Primary:
Insulation (R)
22
Exterior Wall:
32
Ceiling:
32
Floor:
House And Ceiling Heights
10
First Floor Ceiling:
9
Second Floor Ceiling:
33' 3"
Maximum House Height:
Key Features
Attached
Covered Front Porch
Covered Rear Porch
Double Vanity Sink
Drive-under
Fireplace
Foyer
Front-entry
Great Room
Inverted Living
Kitchen Island
Laundry 2nd Fl
Primary Bdrm Upstairs
Open Floor Plan
Outdoor Living Space
Separate Tub and Shower
Split Bedrooms
Storage Space
Suited for view lot
Vaulted Ceilings
Vaulted Great Room/Living
Walk-in Closet
Walk-in Pantry

Our Guarantees

  • Only the highest quality plans
  • Int’l Residential Code Compliant
  • Full structural details on all plans
  • Best plan price guarantee
  • Free modification Estimates
  • Builder-ready construction drawings
  • Expert advice from leading designers
  •  PDFs NOW!™ plans in minutes
  • 100% satisfaction guarantee
  • Free Home Building Organizer