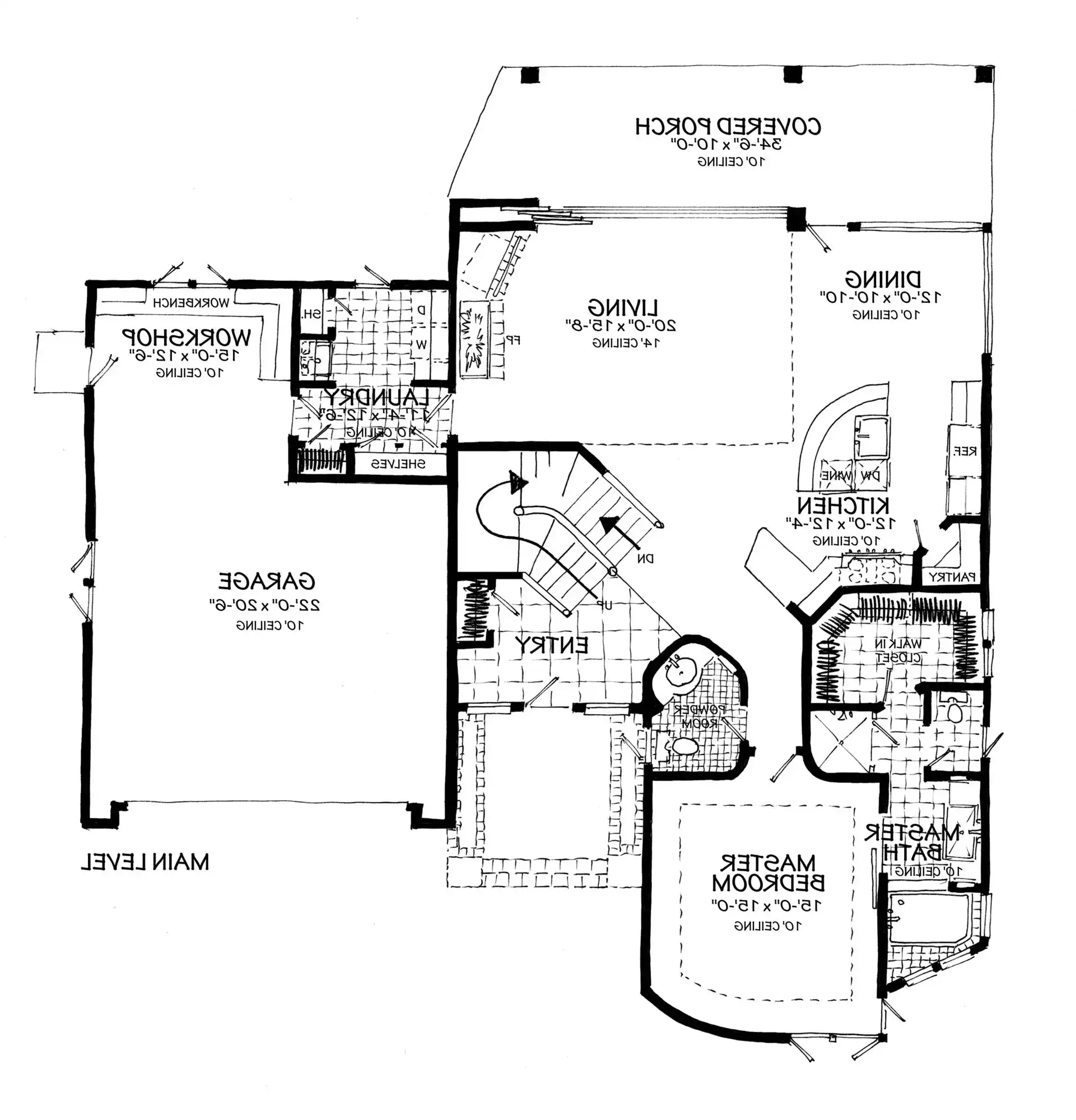
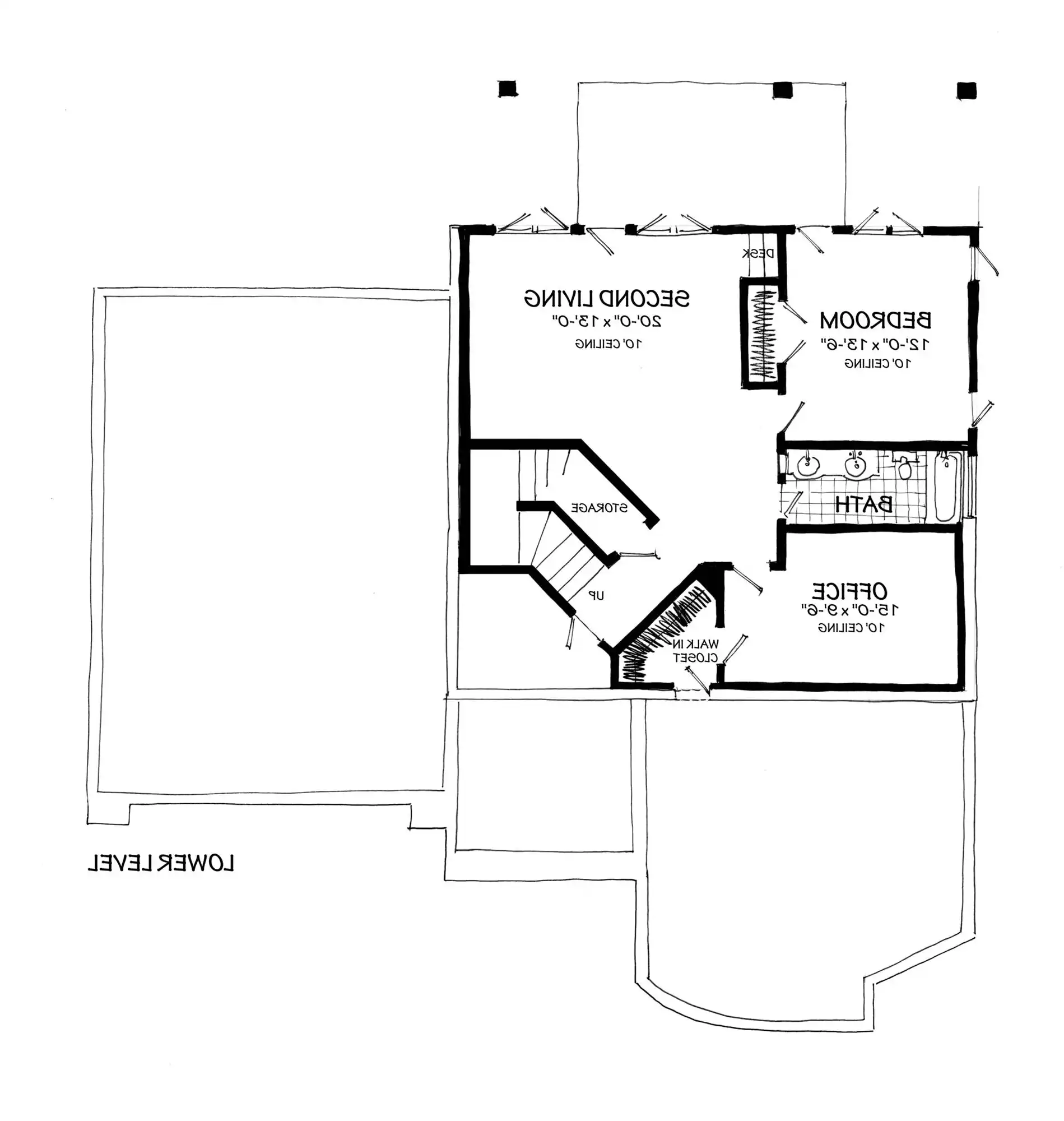
Designed with both functionality and comfort in mind, this home includes 2,343 square feet of heated space with 3 bedrooms and 3.5 baths. The open floor plan allows the main living areas to feel spacious and connected, ideal for gatherings or quiet evenings at home. The kitchen offers an island, peninsula eating bar, and walk-in pantry, making it well suited for cooking and casual dining. A cozy fireplace enhances the living area, while first-floor laundry and a mud room add everyday convenience. The main-floor primary suite features a walk-in closet and a private bath with a separate tub and shower. Additional bedrooms are thoughtfully separated for privacy, and a home office adds versatility to the layout. With a covered rear porch and an oversized front-entry garage that includes workshop space, this home blends comfort with practical design.