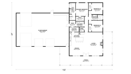
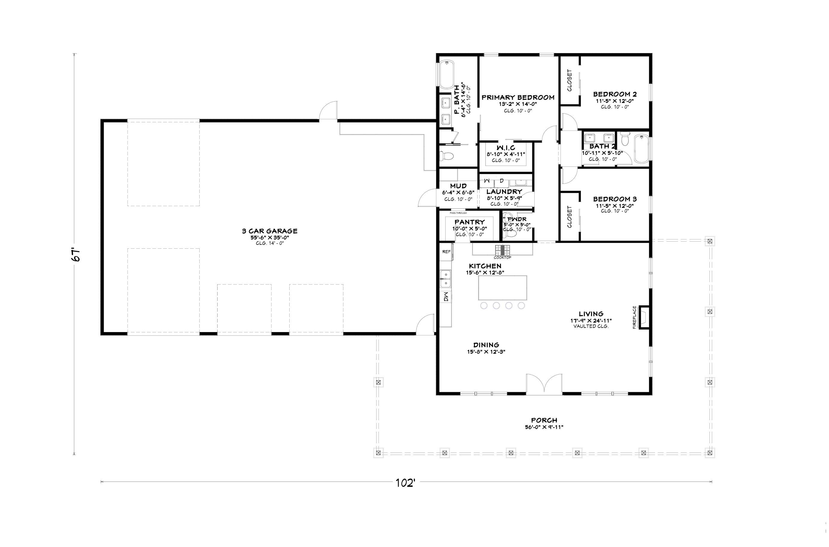
Designed for both everyday living and lifestyle flexibility, this 2030 square feet single story home plan includes 3 bedrooms and 2.5 baths arranged within a bright open layout. The vaulted ceiling in the great room enhances the sense of space, while a fireplace anchors the gathering area and connects naturally to the dining area and kitchen. The L-shaped kitchen is equipped with a central island, peninsula eating bar, and walk-in pantry to support cooking and entertaining with ease. The main level primary suite offers privacy, complete with a walk-in closet and dual vanities. Secondary bedrooms are thoughtfully positioned for family or guests. A mud room and laundry room on the first floor provide practical daily convenience. Outdoor living shines with a covered front entry and generous wraparound porch, while the attached oversized garage with RV option delivers outstanding storage and functionality.
Designed for both everyday living and lifestyle flexibility, this 2030 square feet single story home plan includes 3 bedrooms and 2.5 baths arranged within a bright open layout. The vaulted ceiling in the great room enhances the sense of space, while a fireplace anchors the gathering area and connects naturally to the dining area and kitchen. The L-shaped kitchen is equipped with a central island, peninsula eating bar, and walk-in pantry to support cooking and entertaining with ease. The main level primary suite offers privacy, complete with a walk-in closet and dual vanities. Secondary bedrooms are thoughtfully positioned for family or guests. A mud room and laundry room on the first floor provide practical daily convenience. Outdoor living shines with a covered front entry and generous wraparound porch, while the attached oversized garage with RV option delivers outstanding storage and functionality.