House Plan: DFD-12353

See All 15 Photos > (photographs may reflect modified homes)
© copyright by designer
SQ FT
1,611
BEDS
3
BATHS
2
STORIES
1
CARS
1
PLANS FROM $1,195
For questions and help, live chat, email or call us at 877-895-5299
Floor Plans
Click to Zoom In on Floor Plan
 
About House Plan 12353:
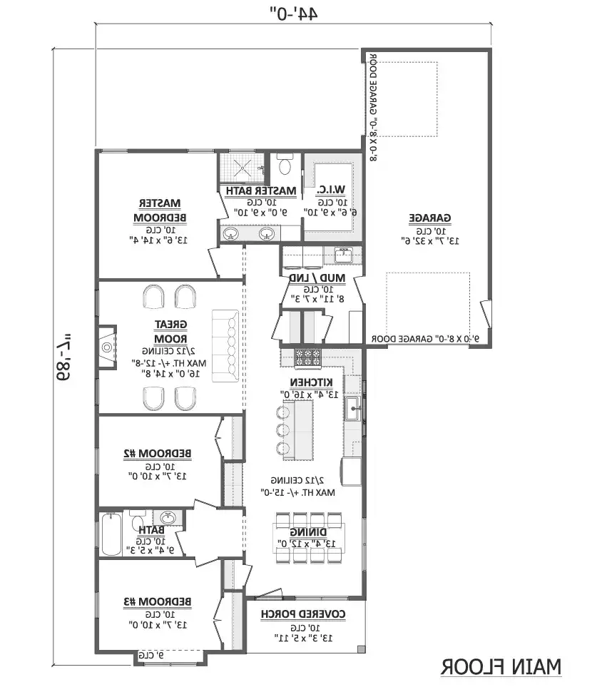
Offering 1,611 square feet of heated living space, this 3 bedroom, 2 bathroom home delivers comfort in a smart and inviting design. The great room with fireplace anchors the open layout and provides a cozy space to gather at the end of the day. The kitchen features an L-shaped design with a spacious island and peninsula eating bar, making it ideal for both cooking and conversation. A main floor primary suite includes a walk-in closet and double vanity sink to create a private retreat. Two additional bedrooms offer flexibility for guests, children, or a hobby space. Practical touches like a mud room and first-floor laundry add everyday ease. Finished with a covered front porch and attached garage, this home offers welcoming charm and functional living in a beautifully efficient footprint.
House Plan Pricing
STEP 1 Select Your Package

PDF Single Build


Digital plans emailed to you in PDF format that allows for printing copies and sharing electronically with contractors, subs, decorators, and more. This package includes a license to build the home one time.

PDF Single Build $1,195
Most recommended package

5 Printed Sets + PDF


Includes 5 physical printed blueprint sets, shipped free via UPS within the U.S. Printed sets ship within 1 business day and are delivered within 3 – 5 business days. A complimentary PDF plan set is also emailed within 1 business day for easy sharing and local printing. These plans may be used to construct one home.

5 Printed Sets + PDF $1,445
5 Printed Sets + PDF

CAD + PDF Single Build


This plan package is created in AutoCAD and delivered in .DWG format. CAD files are intended for use by design professionals, structural engineers, and builders to update plans for local building codes or to make revisions based on specific needs, lot requirements, and budget considerations. A complimentary PDF copy is included with this package for reference. CAD packages are delivered within 1 to 2 business days.
 
This package also comes with a copyright release for making revisions and printing unlimited copies.

For details on the specific CAD program used, please refer to the PLAN DETAILS section located above the floor plan on each plan page.

CAD + PDF Single Build $1,995
2D electronic editable computer files

CAD + PDF Unlimited Build


This plan package is created in AutoCAD and delivered in .DWG format. CAD files are intended for use by design professionals, structural engineers, and builders to update plans for local building codes or to make revisions based on specific needs, lot requirements, and budget considerations. A complimentary PDF copy is included with this package for reference. CAD packages are delivered within 1 to 2 business days.
 
This package also comes with a multi-use building license, granting permission to construct the home an unlimited number of times, along with a copyright release for making revisions and printing unlimited copies.
 
For details on the specific CAD program used, please refer to the PLAN DETAILS section located above the floor plan on each plan page.

CAD + PDF Unlimited Build $2,495
2D electronic editable computer files
STEP 2 Need To Reverse This Plan?
STEP 3 CHOOSE YOUR FOUNDATION
STEP 4 OPTIONAL ADD-ONS
Subtotal:
$1195
FREE SHIPPING
 
Plan Details
See All Details
Finished Square Footage
1,611 Sq. Ft.
Main Level:
1,611 Sq. Ft.
Total:
Room Details
3
Bedrooms:
2
Full Baths:
General House Information
1
Number of Stories:
44' 0"
Width:
68' 7"
Depth:
Single
Dwelling Number:
Unfinished Square Footage
470 Sq. Ft.
Garage:
80 Sq. Ft.
Front Porch:
GARAGE
Side
Garage Location:
1
Garage Size:
Exterior Style
Contemporary
Cottage
Ranch
Transitional
Collections
Architects Choice
Cabin
Florida
Open Floor Plan
Vacation
Foundation
Daylight Basement
Slab
Walkout Basement
Framing Information
Combination
Roof Framing:
2x4
Exterior Wall Framing:
Roof Pitch
2/12
Primary:
3/12
Secondary:
Insulation (R)
House And Ceiling Heights
10
First Floor Ceiling:
15' 1"
Maximum House Height:
Key Features
Attached
Country Kitchen
Covered Front Porch
Double Vanity Sink
Family Style
Fireplace
Front-entry
Great Room
Kitchen Island
Laundry 1st Fl
L-Shaped
Primary Bdrm Main Floor
Mud Room
Open Floor Plan
Peninsula / Eating Bar
Suited for corner lot
Walk-in Closet

Our Guarantees

  • Only the highest quality plans
  • Int’l Residential Code Compliant
  • Full structural details on all plans
  • Best plan price guarantee
  • Free modification Estimates
  • Builder-ready construction drawings
  • Expert advice from leading designers
  •  PDFs NOW!™ plans in minutes
  • 100% satisfaction guarantee
  • Free Home Building Organizer