House Plan: DFD-12369

See All 9 Photos > (photographs may reflect modified homes)
© copyright by designer
SQ FT
2,357
BEDS
4
BATHS
4
STORIES
2
CARS
4
PLANS FROM $1,500
For questions and help, live chat, email or call us at 877-895-5299
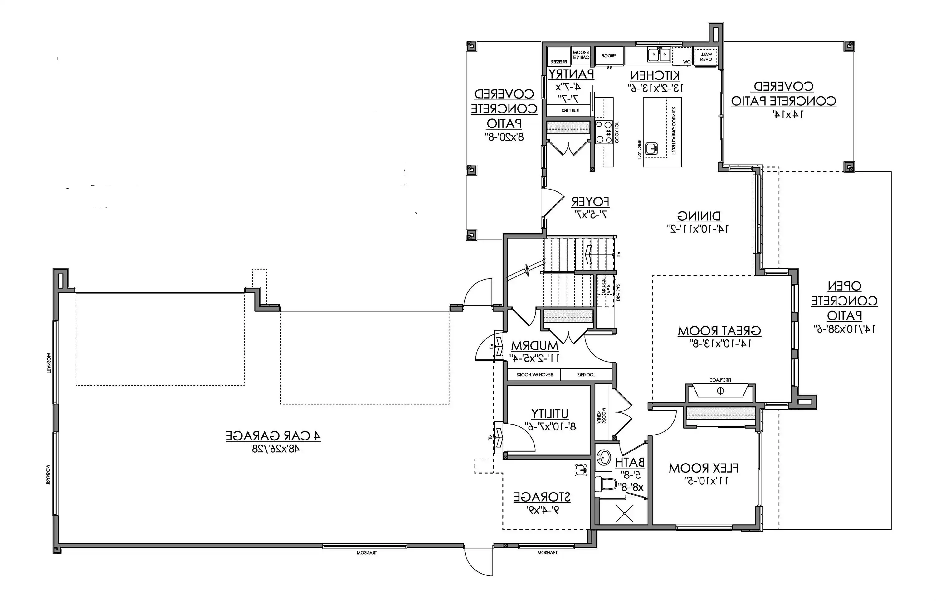
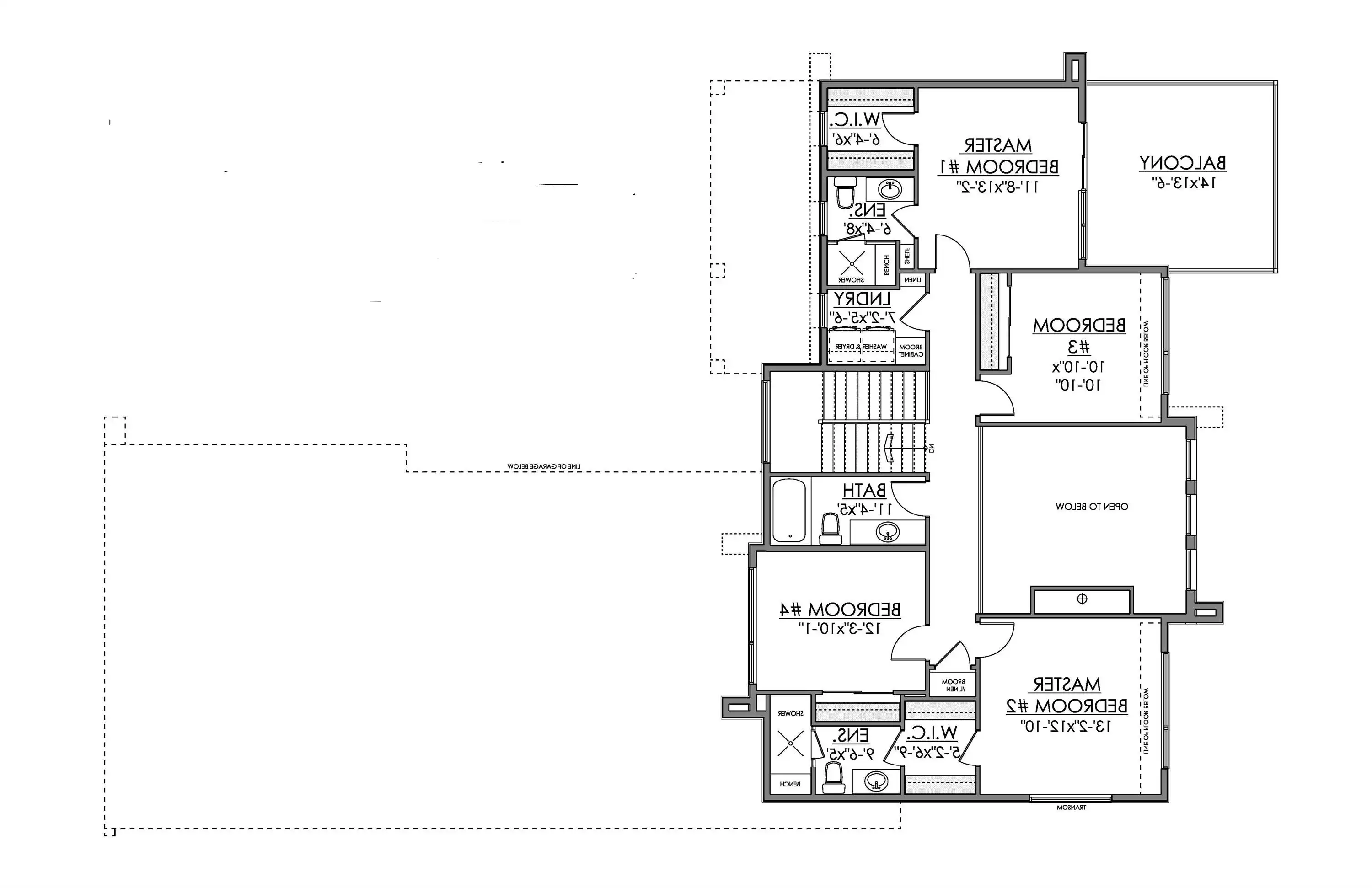
Floor Plans
Click to Zoom In on Floor Plan
 
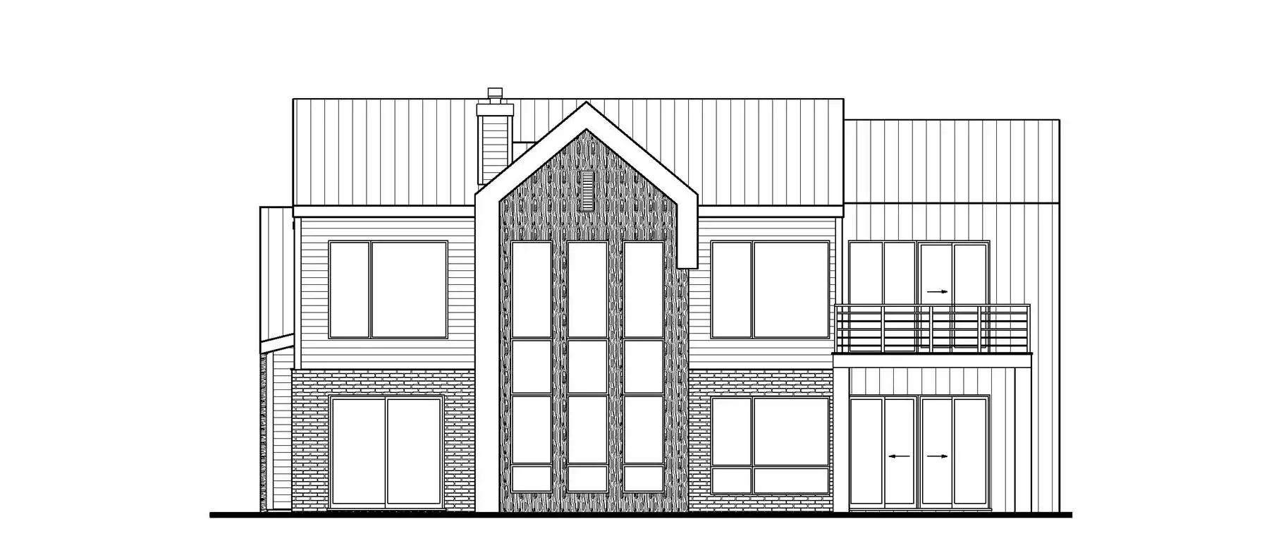
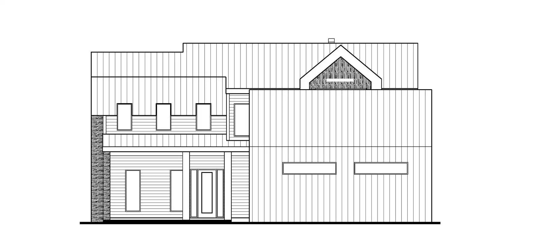
About House Plan 12369:
Offering 2,357 square feet of heated living space, this 5 bedroom, 4 bathroom home is designed for flexibility and connection. The main level features an open floor plan anchored by a welcoming great room with fireplace. The kitchen includes an island, peninsula eating bar, and walk-in pantry, flowing easily into the dining room for gatherings both large and small. Upstairs, a primary suite with walk-in closet provides privacy, while a second primary suite enhances comfort for guests or multigenerational living. A loft overlooking the living space adds a relaxed retreat, and a dedicated home office supports work-from-home needs. Second-floor laundry and abundant storage space keep daily life organized. Complete with covered porches and an attached courtyard-style 4-car garage, this home offers room to grow in all the right ways.
House Plan Pricing
STEP 1 Select Your Package

PDF Single Build


Digital plans emailed to you in PDF format that allows for printing copies and sharing electronically with contractors, subs, decorators, and more. This package includes a license to build the home one time.

PDF Single Build $1,500
Most recommended package

CAD + PDF Single Build


This plan package is created in AutoCAD and delivered in .DWG format. CAD files are intended for use by design professionals, structural engineers, and builders to update plans for local building codes or to make revisions based on specific needs, lot requirements, and budget considerations. A complimentary PDF copy is included with this package for reference. CAD packages are delivered within 1 to 2 business days.
 
This package also comes with a copyright release for making revisions and printing unlimited copies.

For details on the specific CAD program used, please refer to the PLAN DETAILS section located above the floor plan on each plan page.

CAD + PDF Single Build $2,200
2D electronic editable computer files

CAD + PDF Unlimited Build


This plan package is created in AutoCAD and delivered in .DWG format. CAD files are intended for use by design professionals, structural engineers, and builders to update plans for local building codes or to make revisions based on specific needs, lot requirements, and budget considerations. A complimentary PDF copy is included with this package for reference. CAD packages are delivered within 1 to 2 business days.
 
This package also comes with a multi-use building license, granting permission to construct the home an unlimited number of times, along with a copyright release for making revisions and printing unlimited copies.
 
For details on the specific CAD program used, please refer to the PLAN DETAILS section located above the floor plan on each plan page.

CAD + PDF Unlimited Build $2,700

States N/A: CADUNLIMITEDBUILD
2D electronic editable computer files
STEP 2 Need To Reverse This Plan?
STEP 3 CHOOSE YOUR FOUNDATION
STEP 4 OPTIONAL ADD-ONS
Subtotal:
$1500
FREE SHIPPING
 
Plan Details
See All Details
Finished Square Footage
1,219 Sq. Ft.
Main Level:
1,138 Sq. Ft.
Upper Level:
2,357 Sq. Ft.
Total:
Room Details
4
Bedrooms:
4
Full Baths:
General House Information
2
Number of Stories:
54' 6"
Width:
79' 6"
Depth:
Single
Dwelling Number:
None
Bonus Access:
Unfinished Square Footage
1344 Sq. Ft.
Garage:
710 Sq. Ft.
Porch:
166 Sq. Ft.
Front Porch:
544 Sq. Ft.
Rear Porch:
196 Sq. Ft.
Deck:
GARAGE
Front
Garage Location:
4
Garage Size:
Exterior Style
Contemporary
Transitional
Collections
Canada
Kitchens
Primary Suites
Mountain
Open Floor Plan
Foundation
Slab
Framing Information
Truss
Roof Framing:
2x6
Exterior Wall Framing:
Roof Pitch
6/12
Primary:
10/12
Secondary:
Insulation (R)
House And Ceiling Heights
10
First Floor Ceiling:
10
Second Floor Ceiling:
29' 3"
Maximum House Height:
Key Features
2 Primary Suites
Attached
Courtyard/Motorcourt Entry
Covered Front Porch
Covered Rear Porch
Dining Room
Family Style
Fireplace
Foyer
Great Room
Home Office
Kitchen Island
Laundry 2nd Fl
Loft / Balcony
L-Shaped
Primary Bdrm Upstairs
Mud Room
Open Floor Plan
Peninsula / Eating Bar
Side-entry
Storage Space
Suited for corner lot
Walk-in Closet
Walk-in Pantry

Our Guarantees

  • Only the highest quality plans
  • Int’l Residential Code Compliant
  • Full structural details on all plans
  • Best plan price guarantee
  • Free modification Estimates
  • Builder-ready construction drawings
  • Expert advice from leading designers
  •  PDFs NOW!™ plans in minutes
  • 100% satisfaction guarantee
  • Free Home Building Organizer