20% off ALL House Plans Sitewide
20% off ALL House Plans Sitewide

House Plan: DFD-1378

See All 7 Photos > (photographs may reflect modified homes)
© copyright by designer
SQ FT
3,375
BEDS
4
BATHS
4
STORIES
2
CARS
2
HOUSE PLANS SALE 
START AT  $1,720.00
For questions and help, live chat, email or call us at 877-895-5299
Floor Plans
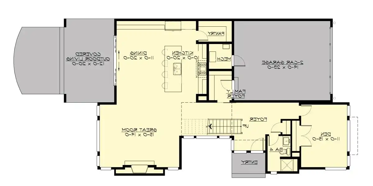
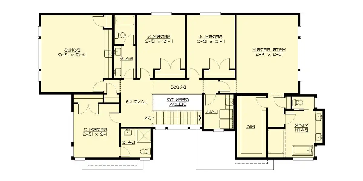
Click to Zoom In on Floor Plan
 
About House Plan 1378:
This amazing home is perfect for a large family with four bedrooms, and four full bathrooms! House Plan 1378 has 3,375 square feet of living space and features an open floor plan kitchen, dining, and great room – perfect for entertaining family and friends! Unwind and socialize with guests outside on one of the many relaxing outdoor living spaces. The kitchen is perfect for cooking and entertaining, with open views of the dining room as well as the great room. The many windows in this home provide natural lighting and a beautiful view of the backyard! There’s also a bonus room perfect for hosting game nights or family movie nights. The master bedroom is ideal for those looking to unwind and relax at home after a long day. The master bedroom features a large walk-in closet, as well as an en-suite bathroom with dual basins, a separate shower stall, and a soaking tub. This modern house plan is a perfect choice for a large family looking to entertain, relax and unwind at home after a long day.
House Plan Pricing
STEP 1 Select Your Package

PDF Single Build


Digital plans emailed to you in PDF format that allows for printing copies and sharing electronically with contractors, subs, decorators, and more. This package includes a license to build the home one time.

PDF Single Build $2,150
Most recommended package

CAD + PDF Unlimited Build


CAD files are a complete set of construction drawings delivered electronically. They can be used for any type of modification—including major design changes and engineering—and include a release granting permission to modify the plan. Most CAD plan orders are emailed the same or next business day.
 
This package also comes with a PDF set of plans and a multi-use building license, granting permission to construct the home an unlimited number of times, along with a copyright release for making modifications and printing unlimited copies.
 
CAD files are provided in .dwg format. For details on the specific CAD program used, please refer to the PLAN DETAILS section located above the floor plan on each plan’s page.

CAD + PDF Unlimited Build $3,500
2D electronic editable computer files
STEP 2 Need To Reverse This Plan?
STEP 3 CHOOSE YOUR FOUNDATION
STEP 4 OPTIONAL ADD-ONS
Subtotal:
$2150
FREE SHIPPING
IMPORTANT NOTE: Due to state regulations, this home is not available for purchase in the State of Washington. Contact us for more information.
 
Plan Details
See All Details
Finished Square Footage
1,365 Sq. Ft.
Main Level:
2,010 Sq. Ft.
Upper Level:
3,375 Sq. Ft.
Total:
Room Details
4
Bedrooms:
4
Full Baths:
General House Information
2
Number of Stories:
70' 0"
Width:
37' 0"
Depth:
Single
Dwelling Number:
2nd Floor
Bonus Access:
Unfinished Square Footage
538 Sq. Ft.
Garage:
GARAGE
Side
Garage Location:
2
Garage Size:
Exterior Style
Contemporary
Modern
Collections
Builders
Kitchens
Luxury
Primary Suites
Open Floor Plan
Outdoor Living
Foundation
Crawl Space
Framing Information
Truss
Roof Framing:
2x6
Exterior Wall Framing:
Roof Pitch
5:12
Primary:
3:12
Secondary:
Roof Load
25 PSF
Live:
15 PSF
Dead:
85 MPH
Wind:
Insulation (R)
House And Ceiling Heights
9
First Floor Ceiling:
8
Second Floor Ceiling:
27' 6"
Maximum House Height:
Key Features
Attached
Bonus Room
Covered Rear Porch
Dining Room
Double Vanity Sink
Family Room
Fireplace
Foyer
Great Room
Kitchen Island
Laundry 2nd Fl
L-Shaped
Primary Bdrm Upstairs
Open Floor Plan
Outdoor Living Space
Peninsula / Eating Bar
Separate Tub and Shower
Side-entry
Walk-in Closet
Walk-in Pantry

Our Guarantees

  • Only the highest quality plans
  • Int’l Residential Code Compliant
  • Full structural details on all plans
  • Best plan price guarantee
  • Free modification Estimates
  • Builder-ready construction drawings
  • Expert advice from leading designers
  •  PDFs NOW!™ plans in minutes
  • 100% satisfaction guarantee
  • Free Home Building Organizer