20% Off House Plans Sitewide Ends Sunday
20% Off House Plans Sitewide Ends Sunday

House Plan: DFD-1458

See All 7 Photos > (photographs may reflect modified homes)
© copyright by designer
SQ FT
6,720
BEDS
5
BATHS
4.5
STORIES
3
CARS
3
HOUSE PLANS SALE 
START AT  $2,688.00
For questions and help, live chat, email or call us at 877-895-5299
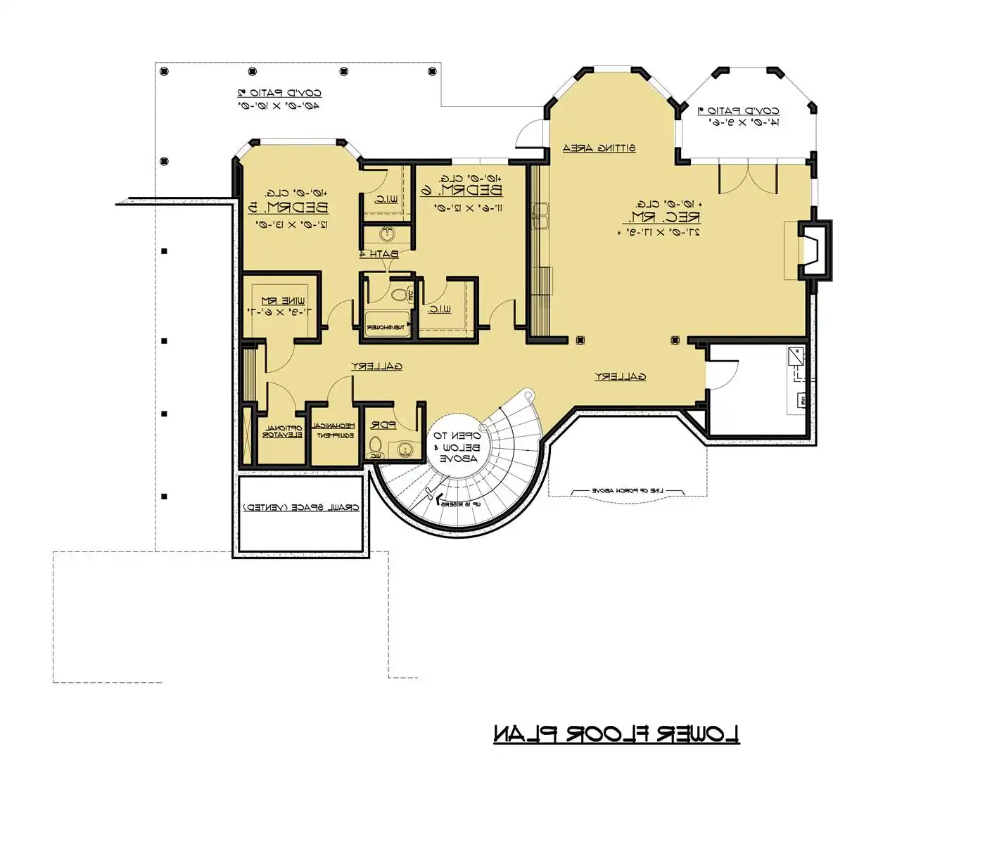
Floor Plans
Click to Zoom In on Floor Plan
 
About House Plan 1458:
Exceedingly regal and unmatched in its spaces, this 6,720 square foot plan has everything that you and your family could ever want. A 3-story, 5 bed 4.5 bath layout offers highlights such as walk-in closets in every bedroom, a fully flexible and functional basement, and one of the most stunning master suites that you have ever seen. Notice the private study on the third floor that is great for a bit of productivity, as well as the gorgeous island kitchen and nearby family room that are primed for entertaining. This home also offers a 3-car garage alongside a beautiful wrap around porch, ready for enjoyment and memories all year long.
House Plan Pricing
STEP 1 Select Your Package

PDF Single Build


Digital plans emailed to you in PDF format that allows for printing copies and sharing electronically with contractors, subs, decorators, and more. This package includes a license to build the home one time.

PDF Single Build $3,360
Most recommended package

5 Printed Sets


Five Printed Sets of Residential Construction Drawings are typically 24” x 36” documents and come with a license to construct a single residence shipped to a physical address. Keep in mind PDF Plan Packages are our most popular choice which allows you to print as many copies as you need and to electronically send files to your builder, subcontractors, etc.

5 Printed Sets $3,660
Five printed sets of house plans

8 Printed Sets


Eight Printed Sets of Construction Drawings, typically 24” x 36” documents, with a license to construct a single residence shipped to your physical address. PDF Plan Packages are our most popular choice which allows you to print as many copies as you need and to electronically send files to your builder, subcontractors, bank/mortgage reps, material stores, decorators and more.

8 Printed Sets $3,810
Eight printed sets of house plans

CAD + PDF Single Build


CAD files are a complete set of construction drawings delivered electronically. They can be used for any type of modification—including major design changes and engineering—and include a release granting permission to modify the plan. Most CAD plan orders are emailed the same or next business day.
 
This package also comes with a PDF set of plans and a copyright release for making modifications and printing unlimited copies.
 
CAD files are provided in .dwg format. For details on the specific CAD program used, please refer to the PLAN DETAILS section located above the floor plan on each plan’s page.

CAD + PDF Single Build $6,384
2D electronic editable computer files
STEP 2 Need To Reverse This Plan?
STEP 3 CHOOSE YOUR FOUNDATION
STEP 4 OPTIONAL ADD-ONS
Subtotal:
$3360
FREE SHIPPING
 
Plan Details
See All Details
Finished Square Footage
2,168 Sq. Ft.
Main Level:
2,568 Sq. Ft.
Upper Level:
1,984 Sq. Ft.
Lower Level:
6,720 Sq. Ft.
Total:
Room Details
5
Bedrooms:
4
Full Baths:
2
Half Baths:
General House Information
3
Number of Stories:
80'
Width:
76'
Depth:
Single
Dwelling Number:
Unfinished Square Footage
729 Sq. Ft.
Garage:
60 Sq. Ft.
Porch:
476 Sq. Ft.
Deck:
GARAGE
Front
Garage Location:
3
Garage Size:
Exterior Style
European
Victorian
Collections
Florida
Kitchens
Luxury
Primary Suites
Open Floor Plan
Outdoor Living
Foundation
Basement
Crawl Space
Framing Information
Truss
Roof Framing:
2x6
Exterior Wall Framing:
Roof Pitch
2/12
Primary:
Roof Load
25
Live:
Insulation (R)
House And Ceiling Heights
10
First Floor Ceiling:
9
Second Floor Ceiling:
39'
Maximum House Height:
Key Features
Attached
Basement
Bonus Room
Butler's Pantry
Courtyard/Motorcourt Entry
Covered Front Porch
Crawlspace
Deck
Dining Room
Double Vanity Sink
Foyer
Front-entry
Great Room
Kitchen Island
Laundry 1st Fl
Loft / Balcony
Primary Bdrm Upstairs
Nook / Breakfast Area
Peninsula / Eating Bar
Rear Porch
Rec Room
Separate Tub and Shower
Sitting Area
Walk-in Closet
Walk-in Pantry
Wine Cellar

Our Guarantees

  • Only the highest quality plans
  • Int’l Residential Code Compliant
  • Full structural details on all plans
  • Best plan price guarantee
  • Free modification Estimates
  • Builder-ready construction drawings
  • Expert advice from leading designers
  •  PDFs NOW!™ plans in minutes
  • 100% satisfaction guarantee
  • Free Home Building Organizer