20% Off House Plans Sitewide Ends Sunday
20% Off House Plans Sitewide Ends Sunday

House Plan: DFD-1463

See All 1 Photos > (photographs may reflect modified homes)
© copyright by designer
SQ FT
1,744
BEDS
3
BATHS
2.5
STORIES
1.5
CARS
2
HOUSE PLANS SALE 
START AT  $680.80
For questions and help, live chat, email or call us at 877-895-5299
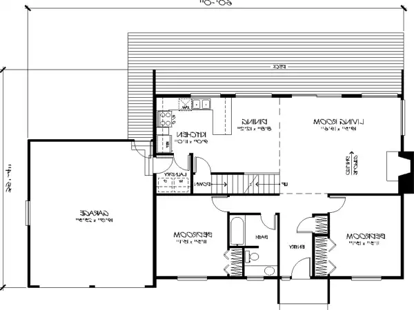
Floor Plans
Click to Zoom In on Floor Plan
 
House Plan 1463
House Plan Pricing
STEP 1 Select Your Package

PDF Bid Set


Home plans stamped "NOT FOR CONSTRUCTION" for cost estimating and bidding purposes only; a minimum 5 set plan package must be purchased within 90 days for a license to build plan set; a credit will be applied towards your house plan upgrade

PDF Bid Set $544
Immediate Delivery!
Digital set of plans for bidding purposes only

PDF Single Build


Digital plans emailed to you in PDF format that allows for printing copies and sharing electronically with contractors, subs, decorators, and more. This package includes a license to build the home one time.

PDF Single Build $851
Immediate Delivery!
Most recommended package
STEP 2 CHOOSE YOUR FOUNDATION
STEP 3 OPTIONAL ADD-ONS
Subtotal:
$851
FREE SHIPPING
 
Plan Details
See All Details
Finished Square Footage
1,200 Sq. Ft.
Main Level:
544 Sq. Ft.
Upper Level:
1,744 Sq. Ft.
Total:
Room Details
3
Bedrooms:
2
Full Baths:
1
Half Baths:
General House Information
1.5
Number of Stories:
60' 0"
Width:
42' 0"
Depth:
Single
Dwelling Number:
None
Bonus Access:
Unfinished Square Footage
GARAGE
Side
Garage Location:
2
Garage Size:
Exterior Style
Beach
Contemporary
Modern
Collections
Affordable
Empty Nester
First Home
Mountain
Old House Classics
Open Floor Plan
Outdoor Living
Vacation
Foundation
Basement
Crawl Space
Slab
Framing Information
Combination
Roof Framing:
2x6
Exterior Wall Framing:
Insulation (R)
Per IRC Climate Zones
Key Features
Attached
Basement
Crawlspace
Daylight Basement
Front-entry
Slab
Suited for sloping lot
Suited for view lot

Our Guarantees

  • Only the highest quality plans
  • Int’l Residential Code Compliant
  • Full structural details on all plans
  • Best plan price guarantee
  • Free modification Estimates
  • Builder-ready construction drawings
  • Expert advice from leading designers
  •  PDFs NOW!™ plans in minutes
  • 100% satisfaction guarantee
  • Free Home Building Organizer