20% off ALL House Plans Sitewide
20% off ALL House Plans Sitewide

House Plan: DFD-1495

See All 5 Photos > (photographs may reflect modified homes)
© copyright by designer
SQ FT
3,747
BEDS
4
BATHS
4.5
STORIES
2
CARS
3
HOUSE PLANS SALE 
START AT  $1,499.20
For questions and help, live chat, email or call us at 877-895-5299
Floor Plans
Click to Zoom In on Floor Plan
 
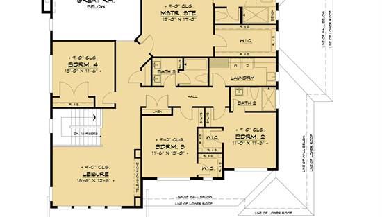
About House Plan 1495:
House Plan 1495 is a lovely four-bedroom modern home that offers 3,747 square feet of amazing living space. The main level includes a den off the foyer, open-concept living with an island kitchen and a two-story great room, a playroom, and a cozy sitting area that connects to a full bath and the sauna. There's also a three-car garage, of course, that enters through the mudroom by the kitchen. All the bedrooms are placed upstairs. The primary suite has a five-piece bath, there's also a smaller three-piece suite, and the final two bedrooms share a four-piece hall bath. You'll also love the common leisure room and the convenience of second-story laundry! 
House Plan Pricing
STEP 1 Select Your Package

PDF Single Build


Digital plans emailed to you in PDF format that allows for printing copies and sharing electronically with contractors, subs, decorators, and more. This package includes a license to build the home one time.

PDF Single Build $1,874
Most recommended package

5 Printed Sets


Five Printed Sets of Residential Construction Drawings are typically 24” x 36” documents and come with a license to construct a single residence shipped to a physical address. Keep in mind PDF Plan Packages are our most popular choice which allows you to print as many copies as you need and to electronically send files to your builder, subcontractors, etc.

5 Printed Sets $2,174
Five printed sets of house plans

8 Printed Sets


Eight Printed Sets of Construction Drawings, typically 24” x 36” documents, with a license to construct a single residence shipped to your physical address. PDF Plan Packages are our most popular choice which allows you to print as many copies as you need and to electronically send files to your builder, subcontractors, bank/mortgage reps, material stores, decorators and more.

8 Printed Sets $2,324
Eight printed sets of house plans

CAD + PDF Single Build


CAD files are a complete set of construction drawings delivered electronically. They can be used for any type of modification—including major design changes and engineering—and include a release granting permission to modify the plan. Most CAD plan orders are emailed the same or next business day.
 
This package also comes with a PDF set of plans and a copyright release for making modifications and printing unlimited copies.
 
CAD files are provided in .dwg format. For details on the specific CAD program used, please refer to the PLAN DETAILS section located above the floor plan on each plan’s page.

CAD + PDF Single Build $3,560
2D electronic editable computer files
STEP 2 Need To Reverse This Plan?
STEP 3 CHOOSE YOUR FOUNDATION
STEP 4 OPTIONAL ADD-ONS
Subtotal:
$1874
FREE SHIPPING
 
Plan Details
See All Details
Finished Square Footage
1,919 Sq. Ft.
Main Level:
1,828 Sq. Ft.
Upper Level:
3,747 Sq. Ft.
Total:
Room Details
4
Bedrooms:
4
Full Baths:
1
Half Baths:
General House Information
2
Number of Stories:
58' 0"
Width:
52' 6"
Depth:
Single
Dwelling Number:
Unfinished Square Footage
786 Sq. Ft.
Garage:
126 Sq. Ft.
Porch:
168 Sq. Ft.
Deck:
GARAGE
Front
Garage Location:
3
Garage Size:
Exterior Style
Contemporary
Mid-Century Modern
Modern
Collections
Luxury
Primary Suites
Open Floor Plan
Outdoor Living
Foundation
Crawl Space
Slab
Framing Information
Truss
Roof Framing:
2x6
Exterior Wall Framing:
Roof Pitch
4/12
Primary:
4/12
Secondary:
Insulation (R)
21
Exterior Wall:
49
Ceiling:
38
Floor:
House And Ceiling Heights
9
First Floor Ceiling:
9
Second Floor Ceiling:
28' 3"
Maximum House Height:
Key Features
Attached
Covered Front Porch
Covered Rear Porch
Double Vanity Sink
Family Room
Family Style
Fireplace
Foyer
Front-entry
Great Room
Home Office
Kitchen Island
Laundry 2nd Fl
Loft / Balcony
L-Shaped
Primary Bdrm Upstairs
Mud Room
Nook / Breakfast Area
Open Floor Plan
Rec Room
Separate Tub and Shower
Suited for view lot
Vaulted Ceilings
Vaulted Great Room/Living
Walk-in Closet
Walk-in Pantry

Our Guarantees

  • Only the highest quality plans
  • Int’l Residential Code Compliant
  • Full structural details on all plans
  • Best plan price guarantee
  • Free modification Estimates
  • Builder-ready construction drawings
  • Expert advice from leading designers
  •  PDFs NOW!™ plans in minutes
  • 100% satisfaction guarantee
  • Free Home Building Organizer

See terms opt out anytime