17% off ALL House Plans Sitewide
17% off ALL House Plans Sitewide

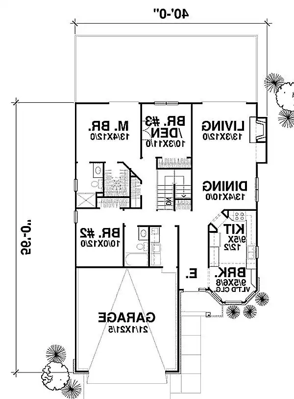
House Plan: DFD-1678

See All 1 Photos > (photographs may reflect modified homes)
© copyright by designer
SQ FT
1,341
BEDS
3
BATHS
2
STORIES
1
CARS
2
HOUSE PLANS SALE 
START AT  $638.27
For questions and help, live chat, email or call us at 877-895-5299
Floor Plans
Click to Zoom In on Floor Plan
 
House Plan 1678
House Plan Pricing
STEP 1 Select Your Package

PDF Bid Set


Home plans stamped "NOT FOR CONSTRUCTION" for cost estimating and bidding purposes only; a minimum 5 set plan package must be purchased within 90 days for a license to build plan set; a credit will be applied towards your house plan upgrade

PDF Bid Set $504
Digital set of plans for bidding purposes only

PDF Single Build


Digital plans emailed to you in PDF format that allows for printing copies and sharing electronically with contractors, subs, decorators, and more. This package includes a license to build the home one time.

PDF Single Build $769
Most recommended package

CAD + PDF Single Build


CAD files are a complete set of construction drawings delivered electronically. They can be used for any type of modification—including major design changes and engineering—and include a release granting permission to modify the plan. Most CAD plan orders are emailed the same or next business day.
 
This package also comes with a PDF set of plans and a copyright release for making modifications and printing unlimited copies.
 
CAD files are provided in .dwg format. For details on the specific CAD program used, please refer to the PLAN DETAILS section located above the floor plan on each plan’s page.

CAD + PDF Single Build $1,540
2D electronic editable computer files
STEP 2 CHOOSE YOUR FOUNDATION
STEP 3 OPTIONAL ADD-ONS
Subtotal:
$769
FREE SHIPPING
 
Plan Details
See All Details
Finished Square Footage
1,341 Sq. Ft.
Main Level:
1,341 Sq. Ft.
Total:
Room Details
3
Bedrooms:
2
Full Baths:
General House Information
1
Number of Stories:
40' 0"
Width:
56' 0"
Depth:
Single
Dwelling Number:
Unfinished Square Footage
GARAGE
Front
Garage Location:
2
Garage Size:
Exterior Style
Bungalow
Cottage
Traditional
Collections
Affordable
Empty Nester
First Home
Mountain
Old House Classics
Open Floor Plan
Outdoor Living
Vacation
Foundation
Basement
Framing Information
Combination
Roof Framing:
2x4
Exterior Wall Framing:
Insulation (R)
Per IRC Climate Zones
Key Features
Attached
Basement
Front-entry
Suited for sloping lot
Suited for view lot

Our Guarantees

  • Only the highest quality plans
  • Int’l Residential Code Compliant
  • Full structural details on all plans
  • Best plan price guarantee
  • Free modification Estimates
  • Builder-ready construction drawings
  • Expert advice from leading designers
  •  PDFs NOW!™ plans in minutes
  • 100% satisfaction guarantee
  • Free Home Building Organizer