15% off ALL House Plans Sitewide
15% off ALL House Plans Sitewide

House Plan: DFD-1883

See All 7 Photos > (photographs may reflect modified homes)
© copyright by designer
SQ FT
1,516
BEDS
3
BATHS
2
STORIES
1.5
CARS
0
HOUSE PLANS SALE 
START AT  $1,428.00
For questions and help, live chat, email or call us at 877-895-5299
Floor Plans
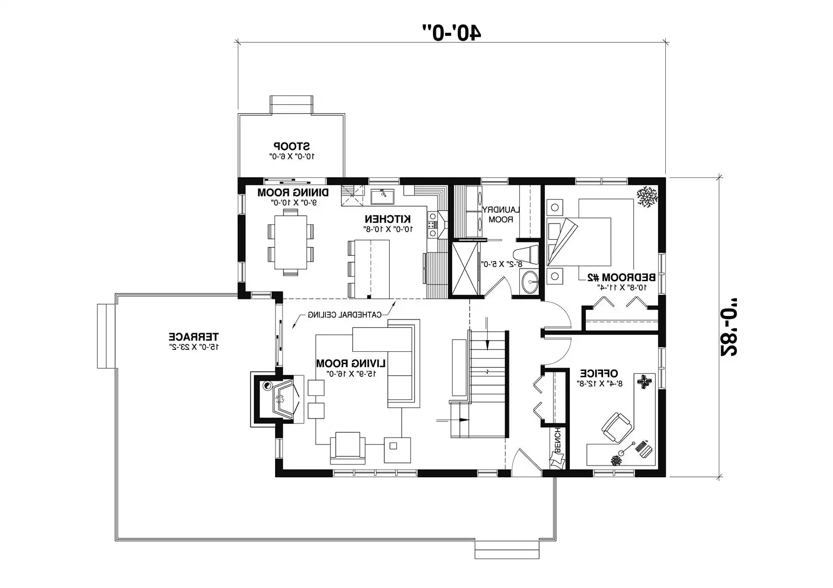
Click to Zoom In on Floor Plan
 
About House Plan 1883:
Welcome to 1,516 sf of a beautiful, modern cottage featuring a wraparound porch, large windows and beautiful stone fireplace.  This lovely 2 story plan is inviting and lovely and beckons you to come on in.  As you enter the home you are greeted with a comfortable foyer that leads to a large Living Room with sloped ceiling.  The Living Room is open to the L-shaped kitchen with small island and seating for two.  The Dining area is right next to the kitchen and is almost an extension of the kitchen.  The secondary bedrooms are lovely and located on the main level.  A shared bathroom with laundry facilities is located here.  The second floor contains the Primary Suite with walk in closet and comfortable bath.  The mezzanine is accessible from the primary suite.
House Plan Pricing
STEP 1 Select Your Package

PDF Single Build


Digital plans emailed to you in PDF format that allows for printing copies and sharing electronically with contractors, subs, decorators, and more. This package includes a license to build the home one time.

PDF Single Build $1,680
Most recommended package

3 Printed Sets + PDF


Includes 3 physical printed blueprint sets, shipped free via UPS within the U.S. Printed sets ship within 1 business day and are delivered within 3 – 5 business days. A complimentary PDF plan set is also emailed within 1 business day for easy sharing and local printing. These plans may be used to construct one home.

3 Printed Sets + PDF $1,820
3 Printed Sets + PDF

CAD + PDF Single Build


This plan package is created in AutoCAD and delivered in .DWG format. CAD files are intended for use by design professionals, structural engineers, and builders to update plans for local building codes or to make revisions based on specific needs, lot requirements, and budget considerations. A complimentary PDF copy is included with this package for reference. CAD packages are delivered within 1 to 2 business days.
 
This package also comes with a copyright release for making revisions and printing unlimited copies.

For details on the specific CAD program used, please refer to the PLAN DETAILS section located above the floor plan on each plan page.

CAD + PDF Single Build $2,680
2D electronic editable computer files
STEP 2 Need To Reverse This Plan?
STEP 3 CHOOSE YOUR FOUNDATION
STEP 4 OPTIONAL ADD-ONS
Subtotal:
$1680
FREE SHIPPING
Please allow 3-5 business days for delivery of this plan Please check our PDFs NOW collection for plans that can be downloaded and received immediately or live chat us to help you find a similar plan available now.
 
Plan Details
See All Details
Finished Square Footage
1,062 Sq. Ft.
Main Level:
455 Sq. Ft.
Upper Level:
1,516 Sq. Ft.
Total:
Room Details
3
Bedrooms:
2
Full Baths:
General House Information
1.5
Number of Stories:
40' 0"
Width:
28' 0"
Depth:
Single
Dwelling Number:
None
Bonus Access:
Unfinished Square Footage
GARAGE
0
Garage Size:
Exterior Style
Beach
Contemporary
Cottage
Lake
Collections
Affordable
Budget
Builders
Canada
First Home
Mountain
Old House Classics
Open Floor Plan
Outdoor Living
Vacation
Foundation
Crawlspace
Floating slab
Full Unfinished Basement (included)
Monolithic slab
Framing Information
Truss
Roof Framing:
2x6
Exterior Wall Framing:
Roof Pitch
7/12
Primary:
7/12
Secondary:
Roof Load
55
Live:
20
Dead:
Insulation (R)
20
Exterior Wall:
0
Interior Wall:
40
Ceiling:
28
Floor:
House And Ceiling Heights
8
First Floor Ceiling:
8
Second Floor Ceiling:
26' 10"
Maximum House Height:
Key Features
Basement
Crawlspace
Front Porch
Kitchen Island
Laundry 1st Fl
Primary Bdrm Upstairs
None
Open Floor Plan
Peninsula / Eating Bar
Sitting Area
Slab
Suited for sloping lot
Suited for view lot
Walk-in Closet

Our Guarantees

  • Only the highest quality plans
  • Int’l Residential Code Compliant
  • Full structural details on all plans
  • Best plan price guarantee
  • Free modification Estimates
  • Builder-ready construction drawings
  • Expert advice from leading designers
  •  PDFs NOW!™ plans in minutes
  • 100% satisfaction guarantee
  • Free Home Building Organizer