17% off ALL House Plans Sitewide
17% off ALL House Plans Sitewide

House Plan: DFD-2098

See All 5 Photos > (photographs may reflect modified homes)
© copyright by designer
SQ FT
1,488
BEDS
3
BATHS
2
STORIES
2
CARS
1
HOUSE PLANS SALE 
START AT  $2,075.00
For questions and help, live chat, email or call us at 877-895-5299
Floor Plans
Click to Zoom In on Floor Plan
 
About House Plan 2098:
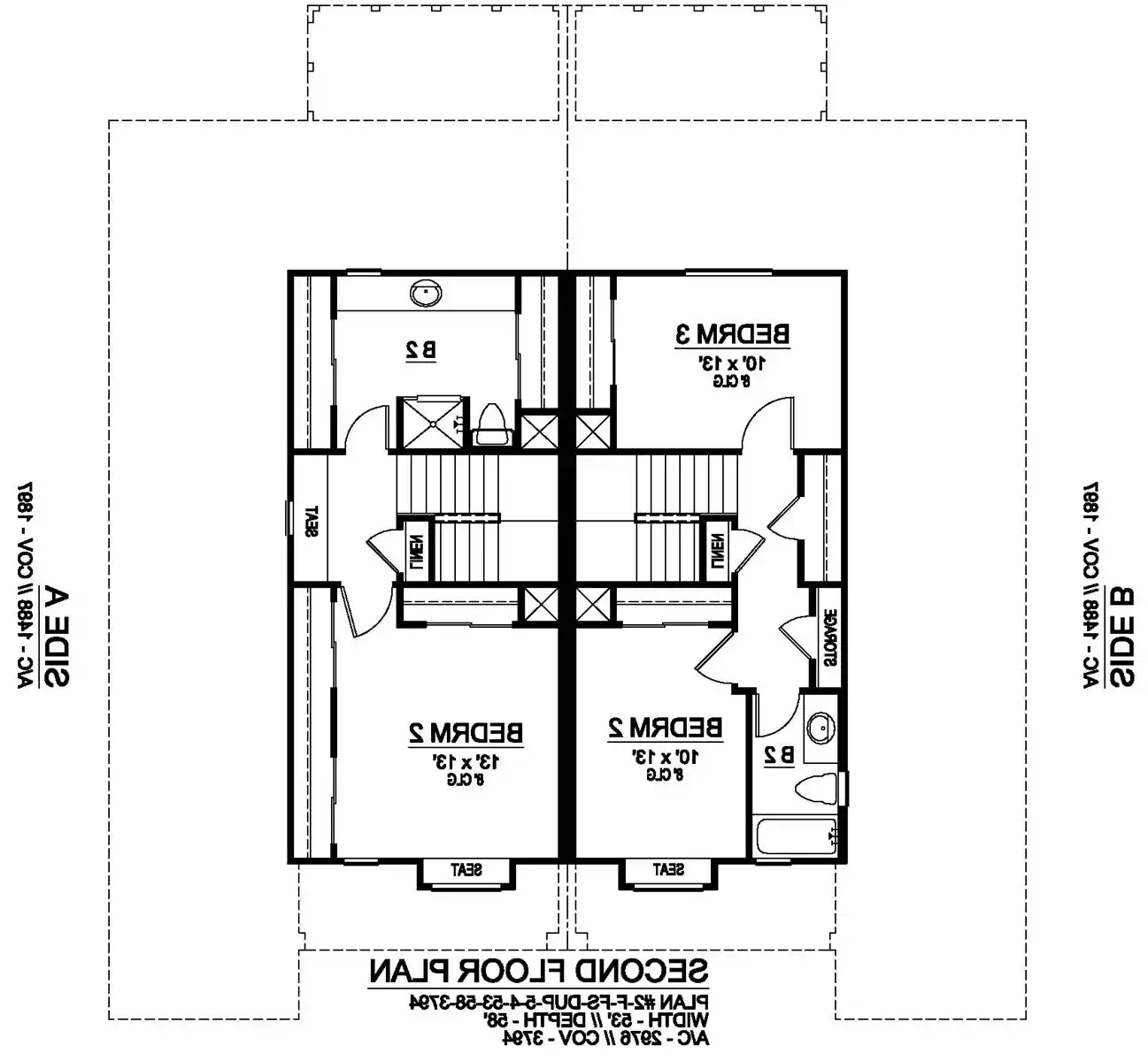
This multi-family ranch duplex has 1,488 sq. ft of living space with a one-car garage on each side. Entering from the porch immediately gives you access to the family room, which flows into the dining room respectfully. The kitchen offers ease in serving family and guest, with a breakfast bar offering both a great gathering spot and counter space for any chef to work with at any time. The master suite has a private master bath and screened-in patio, with access to the utility room, that acts as a walk through into the kitchen. Upstairs, the right side offers a large bedroom with window seat and full bath, while counterpart offers two bedrooms with walk-in closets and a full bath.

 

 
House Plan Pricing
STEP 1 Select Your Package

PDF Single Build


Digital plans emailed to you in PDF format that allows for printing copies and sharing electronically with contractors, subs, decorators, and more. This package includes a license to build the home one time.

PDF Single Build $2,500
Most recommended package

CAD + PDF Single Build


CAD files are a complete set of construction drawings delivered electronically. They can be used for any type of modification—including major design changes and engineering—and include a release granting permission to modify the plan. Most CAD plan orders are emailed the same or next business day.
 
This package also comes with a PDF set of plans and a copyright release for making modifications and printing unlimited copies.
 
CAD files are provided in .dwg format. For details on the specific CAD program used, please refer to the PLAN DETAILS section located above the floor plan on each plan’s page.

CAD + PDF Single Build $3,760
2D electronic editable computer files

5 Printed Sets


Five Printed Sets of Residential Construction Drawings are typically 24” x 36” documents and come with a license to construct a single residence shipped to a physical address. Keep in mind PDF Plan Packages are our most popular choice which allows you to print as many copies as you need and to electronically send files to your builder, subcontractors, etc.

5 Printed Sets $3,760
Five printed sets of house plans
STEP 2 Need To Reverse This Plan?
STEP 3 CHOOSE YOUR FOUNDATION
STEP 4 OPTIONAL ADD-ONS
Subtotal:
$2500
FREE SHIPPING
 
Plan Details
See All Details
Finished Square Footage
1,000 Sq. Ft.
Main Level:
488 Sq. Ft.
Upper Level:
1,488 Sq. Ft.
Total:
Room Details
3
Bedrooms:
2
Full Baths:
General House Information
2
Number of Stories:
53' 0"
Width:
58' 0"
Depth:
Duplex
Dwelling Number:
Unfinished Square Footage
210 Sq. Ft.
Garage:
GARAGE
Side
Garage Location:
1
Garage Size:
Exterior Style
European
Mediterranean
Traditional
Collections
Affordable
Builders
Open Floor Plan
Split Bedroom
Foundation
Slab
Framing Information
Stick
Roof Framing:
2x4
Exterior Wall Framing:
Roof Pitch
5
Primary:
4
Secondary:
Insulation (R)
0
Exterior Wall:
0
Interior Wall:
0
Ceiling:
0
Floor:
House And Ceiling Heights
9
First Floor Ceiling:
8
Second Floor Ceiling:
26' 0"
Maximum House Height:
Key Features
Attached
Covered Rear Porch
Dining Room
Family Room
Front Porch
Front-entry
Laundry 1st Fl
Primary Bdrm Main Floor
Open Floor Plan
Screened Porch/Sunroom
Slab
Walk-in Closet

Our Guarantees

  • Only the highest quality plans
  • Int’l Residential Code Compliant
  • Full structural details on all plans
  • Best plan price guarantee
  • Free modification Estimates
  • Builder-ready construction drawings
  • Expert advice from leading designers
  •  PDFs NOW!™ plans in minutes
  • 100% satisfaction guarantee
  • Free Home Building Organizer