20% off ALL House Plans Sitewide
20% off ALL House Plans Sitewide

House Plan: DFD-2341

See All 2 Photos > (photographs may reflect modified homes)
© copyright by architect
SQ FT
2,189
BEDS
3
BATHS
3
STORIES
2
CARS
2
HOUSE PLANS SALE 
START AT  $1,156.00
For questions and help, live chat, email or call us at 877-895-5299
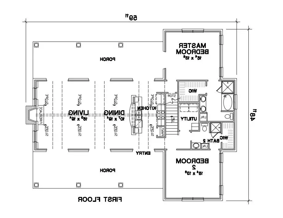
Floor Plans
Click to Zoom In on Floor Plan
 
About House Plan 2341:
House Plan 2341 delivers rustic country charm and smart design in a 2,189 sq. ft. layout. The main level features a primary suite with a luxurious bath and walk-in closet, along with a guest suite or in-law suite for flexibility. The great room showcases a soaring vaulted ceiling and fireplace, flowing into an open kitchen and dining area. Upstairs includes a third bedroom, loft, and rec room overlooking the living space below. Covered front and rear porches and a detached 2-car garage make this plan a perfect fit for families who love comfort and country style.
House Plan Pricing
STEP 1 Select Your Package

PDF Single Build


Digital plans emailed to you in PDF format that allows for printing copies and sharing electronically with contractors, subs, decorators, and more. This package includes a license to build the home one time.

PDF Single Build $1,445
Most recommended package

CAD + PDF Single Build


This plan package is created in AutoCAD and delivered in .DWG format. CAD files are intended for use by design professionals, structural engineers, and builders to update plans for local building codes or to make revisions based on specific needs, lot requirements, and budget considerations. A complimentary PDF copy is included with this package for reference. CAD packages are delivered within 1 to 2 business days.
 
This package also comes with a copyright release for making revisions and printing unlimited copies.

For details on the specific CAD program used, please refer to the PLAN DETAILS section located above the floor plan on each plan page.

CAD + PDF Single Build $2,445

States N/A: TX,NM,LA,AR
2D electronic editable computer files
STEP 2 CHOOSE YOUR FOUNDATION
STEP 3 OPTIONAL ADD-ONS
Subtotal:
$1445
FREE SHIPPING
IMPORTANT NOTE: Due to state regulations, the CAD version may not be sold to residents of AL, TN, TX, NM and LA. If residing in any of the aforementioned states, the PDF version does not come with a release to make plan modifications. Modifications can be provided by the original architect. Please contact us for more information.
 
Plan Details
See All Details
Finished Square Footage
1,588 Sq. Ft.
Main Level:
601 Sq. Ft.
Upper Level:
2,189 Sq. Ft.
Total:
Room Details
3
Bedrooms:
3
Full Baths:
General House Information
2
Number of Stories:
60' 0"
Width:
49' 0"
Depth:
Single
Dwelling Number:
Unfinished Square Footage
480 Sq. Ft.
Garage:
387 Sq. Ft.
Front Porch:
387 Sq. Ft.
Rear Porch:
GARAGE
None
Garage Location:
2
Garage Size:
Exterior Style
Cottage
Country
Farmhouse
Lake
Ranch
Transitional
Collections
Cabin
Mountain
Outdoor Living
Vacation
Foundation
Slab
Framing Information
Stick
Roof Framing:
2x4
Exterior Wall Framing:
Roof Pitch
12:12
Primary:
3:12
Dormer:
4:12
Porch:
Roof Load
20
Live:
Insulation (R)
Per IRC Climate Zones
House And Ceiling Heights
9
First Floor Ceiling:
8
Second Floor Ceiling:
24' 9"
Maximum House Height:
Key Features
2 Primary Suites
Covered Front Porch
Covered Rear Porch
Detached
Double Vanity Sink
Fireplace
Great Room
Guest Suite
Home Office
In-law Suite
Laundry 1st Fl
Loft / Balcony
Primary Bdrm Main Floor
Outdoor Living Space
Peninsula / Eating Bar
Rec Room
Separate Tub and Shower
Suited for view lot
Vaulted Ceilings
Vaulted Kitchen
Vaulted Primary
Walk-in Closet

Our Guarantees

  • Only the highest quality plans
  • Int’l Residential Code Compliant
  • Full structural details on all plans
  • Best plan price guarantee
  • Free modification Estimates
  • Builder-ready construction drawings
  • Expert advice from leading designers
  •  PDFs NOW!™ plans in minutes
  • 100% satisfaction guarantee
  • Free Home Building Organizer

See terms opt out anytime