20% Off House Plans Sitewide Ends Sunday
20% Off House Plans Sitewide Ends Sunday

House Plan: DFD-3227

See All 33 Photos > (photographs may reflect modified homes)
© copyright by designer
SQ FT
4,300
BEDS
4
BATHS
3.5
STORIES
2
CARS
4
HOUSE PLANS SALE 
START AT  $2,080.00
For questions and help, live chat, email or call us at 877-895-5299
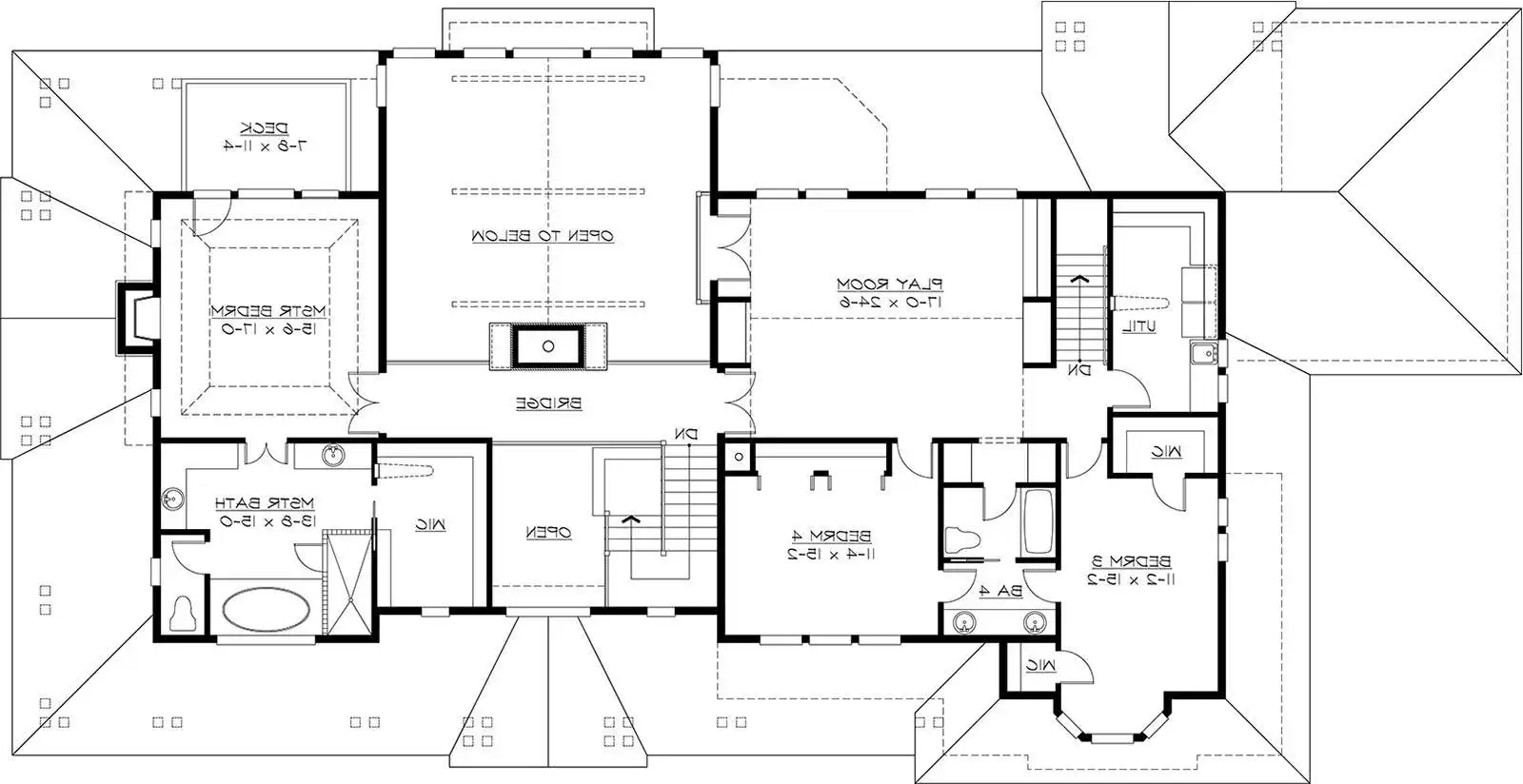
Floor Plans
Click to Zoom In on Floor Plan
 
About House Plan 3227:
Sweeping front, side and rear porches enhance this dramatic craftsman design, highlighted by truss-bracketed, shingled gables, shuttered window arrays, and white-trimmed grouped columns with rugged stone bases. The broad entry porch leads into a dynamic foyer space, spanned by a second-story bridge and anchored by a massive stone-clad fireplace. Combining the volume great room with the oversize nook and the grand chefs kitchen with its humongous island creates a truly spacious family living area. The main floor also includes a separate den and guest suite, along with split garages accessing through a mudroom with a private stair to the childrens wing upstairs, which has a gigantic vaulted playroom, two bedrooms with Jack-and-Jill bath, and a laundry. Across the foyer bridge lays the coffered master suite, with its romantic fireplace and private deck.
House Plan Pricing
STEP 1 Select Your Package

PDF Single Build


Digital plans emailed to you in PDF format that allows for printing copies and sharing electronically with contractors, subs, decorators, and more. This package includes a license to build the home one time.

PDF Single Build $2,600
Most recommended package

CAD + PDF Unlimited Build


CAD files are a complete set of construction drawings delivered electronically. They can be used for any type of modification—including major design changes and engineering—and include a release granting permission to modify the plan. Most CAD plan orders are emailed the same or next business day.
 
This package also comes with a PDF set of plans and a multi-use building license, granting permission to construct the home an unlimited number of times, along with a copyright release for making modifications and printing unlimited copies.
 
CAD files are provided in .dwg format. For details on the specific CAD program used, please refer to the PLAN DETAILS section located above the floor plan on each plan’s page.

CAD + PDF Unlimited Build $3,900
2D electronic editable computer files
STEP 2 Need To Reverse This Plan?
STEP 3 CHOOSE YOUR FOUNDATION
STEP 4 OPTIONAL ADD-ONS
Subtotal:
$2600
FREE SHIPPING
IMPORTANT NOTE: Due to state regulations, this home is not available for purchase in the State of Washington. Contact us for more information.

Note: This plan cannot be purchased for construction in Washington State.
 
Plan Details
See All Details
Finished Square Footage
2,360 Sq. Ft.
Main Level:
1,940 Sq. Ft.
Upper Level:
4,300 Sq. Ft.
Total:
Room Details
4
Bedrooms:
3
Full Baths:
1
Half Baths:
General House Information
2
Number of Stories:
106' 0"
Width:
53' 0"
Depth:
Single
Dwelling Number:
2nd Floor
Bonus Access:
Unfinished Square Footage
1120 Sq. Ft.
Garage:
GARAGE
Side
Garage Location:
4
Garage Size:
Exterior Style
Craftsman
Farmhouse
Collections
Kitchens
Luxury
Primary Suites
Mountain
Old House Classics
Open Floor Plan
Outdoor Living
Split Bedroom
Foundation
Crawl Space
Framing Information
Combination
Roof Framing:
2x6
Exterior Wall Framing:
Roof Pitch
8
Primary:
4
Secondary:
Roof Load
25
Live:
15
Dead:
85
Wind:
Insulation (R)
21
Exterior Wall:
0
Interior Wall:
38
Ceiling:
30
Floor:
House And Ceiling Heights
9
First Floor Ceiling:
8
Second Floor Ceiling:
30' 6"
Maximum House Height:
Key Features
2 Story Volume
Attached
Bonus Room
Covered Front Porch
Covered Rear Porch
Crawlspace
Deck
Double Vanity Sink
Fireplace
Foyer
Front Porch
Great Room
Guest Suite
Kitchen Island
Laundry 2nd Fl
Library/Media Rm
Loft / Balcony
Primary Bdrm Upstairs
Mud Room
Nook / Breakfast Area
Open Floor Plan
Rear Porch
Separate Tub and Shower
Side-entry
Storage Space
Suited for view lot
Tandem
Vaulted Ceilings
Walk-in Closet
Workshop
Wraparound Porch

Our Guarantees

  • Only the highest quality plans
  • Int’l Residential Code Compliant
  • Full structural details on all plans
  • Best plan price guarantee
  • Free modification Estimates
  • Builder-ready construction drawings
  • Expert advice from leading designers
  •  PDFs NOW!™ plans in minutes
  • 100% satisfaction guarantee
  • Free Home Building Organizer