House Plan: DFD-3331

See All 5 Photos > (photographs may reflect modified homes)
© copyright by designer
SQ FT
1,398
BEDS
3
BATHS
2
STORIES
1.5
CARS
2
PLANS FROM $1,510
For questions and help, live chat, email or call us at 877-895-5299
Floor Plans
Click to Zoom In on Floor Plan
 
About House Plan 3331:
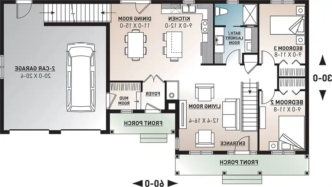
This spacious ranch style plan is not to be outdone by the many hidden features that it offers. A simple yet traditional front façade welcomes you towards the home, while the double garage and covered front porch provide enjoyable functionality to the space. Within the 1,398 square feet of this plan, you will find 3 bedrooms and 2 bathrooms, as well as an easily modifiable unfinished basement that can effectively double your living space. The flexibility of this home doesn’t stop there. Two front entrances allow for easy coming and going, with one door opening directly in to the large living room, and the other in to a foyer and coat closet space. An expansive open layout finds the kitchen and dining room together, with enough space for a large table and hosting big dinner parties. Two bedrooms are found past a shared full bathroom at the end of the hall. For smaller families or new couples who may not need all of the bedrooms, this is the perfect space to turn in to a nursery or an office, or even an in-home workout room. Much like the exterior of this home, the layout can be modified to fit your every need and to ensure a functional and enjoyable home for years to come.

 
House Plan Pricing
STEP 1 Select Your Package

PDF Single Build


Digital plans emailed to you in PDF format that allows for printing copies and sharing electronically with contractors, subs, decorators, and more. This package includes a license to build the home one time.

PDF Single Build $1,510
Most recommended package

3 Printed Sets + PDF


Includes 3 physical printed blueprint sets, shipped free via UPS within the U.S. Printed sets ship within 1 business day and are delivered within 3 – 5 business days. A complimentary PDF plan set is also emailed within 1 business day for easy sharing and local printing. These plans may be used to construct one home.

3 Printed Sets + PDF $1,650
3 Printed Sets + PDF

CAD + PDF Single Build


This plan package is created in AutoCAD and delivered in .DWG format. CAD files are intended for use by design professionals, structural engineers, and builders to update plans for local building codes or to make revisions based on specific needs, lot requirements, and budget considerations. A complimentary PDF copy is included with this package for reference. CAD packages are delivered within 1 to 2 business days.
 
This package also comes with a copyright release for making revisions and printing unlimited copies.

For details on the specific CAD program used, please refer to the PLAN DETAILS section located above the floor plan on each plan page.

CAD + PDF Single Build $2,510
2D electronic editable computer files
STEP 2 Need To Reverse This Plan?
STEP 3 CHOOSE YOUR FOUNDATION
STEP 4 OPTIONAL ADD-ONS
Subtotal:
$1510
FREE SHIPPING
Please allow 3-5 business days for delivery of this plan Please check our PDFs NOW collection for plans that can be downloaded and received immediately or live chat us to help you find a similar plan available now.
 
Plan Details
See All Details
Finished Square Footage
1,073 Sq. Ft.
Main Level:
325 Sq. Ft.
Upper Level:
1,398 Sq. Ft.
Total:
Room Details
3
Bedrooms:
2
Full Baths:
General House Information
1.5
Number of Stories:
60' 0"
Width:
30' 0"
Depth:
Single
Dwelling Number:
None
Bonus Access:
Unfinished Square Footage
540 Sq. Ft.
Garage:
GARAGE
Side
Garage Location:
2
Garage Size:
Exterior Style
Country
Farmhouse
Traditional
Collections
Affordable
Builders
Canada
Empty Nester
First Home
Mountain
Old House Classics
Outdoor Living
Vacation
Foundation
Crawlspace
Floating slab
Full Unfinished Basement (included)
Monolithic slab
Framing Information
Truss
Roof Framing:
2x6
Exterior Wall Framing:
Roof Pitch
8/12
Primary:
12/12
Secondary:
Roof Load
55
Live:
20
Dead:
Insulation (R)
20
Exterior Wall:
0
Interior Wall:
40
Ceiling:
0
Floor:
House And Ceiling Heights
8
First Floor Ceiling:
8
Second Floor Ceiling:
21' 10"
Maximum House Height:
Key Features
Arches
Attached
Basement
Country Kitchen
Covered Front Porch
Crawlspace
Daylight Basement
Dining Room
Family Room
Fireplace
Front Porch
Kitchen Island
Laundry 1st Fl
Primary Bdrm Upstairs
Oversized
Separate Tub and Shower
Slab
Storage Space
Suited for sloping lot
Tandem
Unfinished Space
Walk-in Closet

Our Guarantees

  • Only the highest quality plans
  • Int’l Residential Code Compliant
  • Full structural details on all plans
  • Best plan price guarantee
  • Free modification Estimates
  • Builder-ready construction drawings
  • Expert advice from leading designers
  •  PDFs NOW!™ plans in minutes
  • 100% satisfaction guarantee
  • Free Home Building Organizer

See terms opt out anytime