20% off ALL House Plans Sitewide

House Plan: DFD-3353

See All 12 Photos > (photographs may reflect modified homes)
© copyright by designer
SQ FT
3,076
BEDS
4
BATHS
2.5
STORIES
2
CARS
3
HOUSE PLANS SALE 
START AT  $1,560.00
For questions and help, live chat, email or call us at 877-895-5299
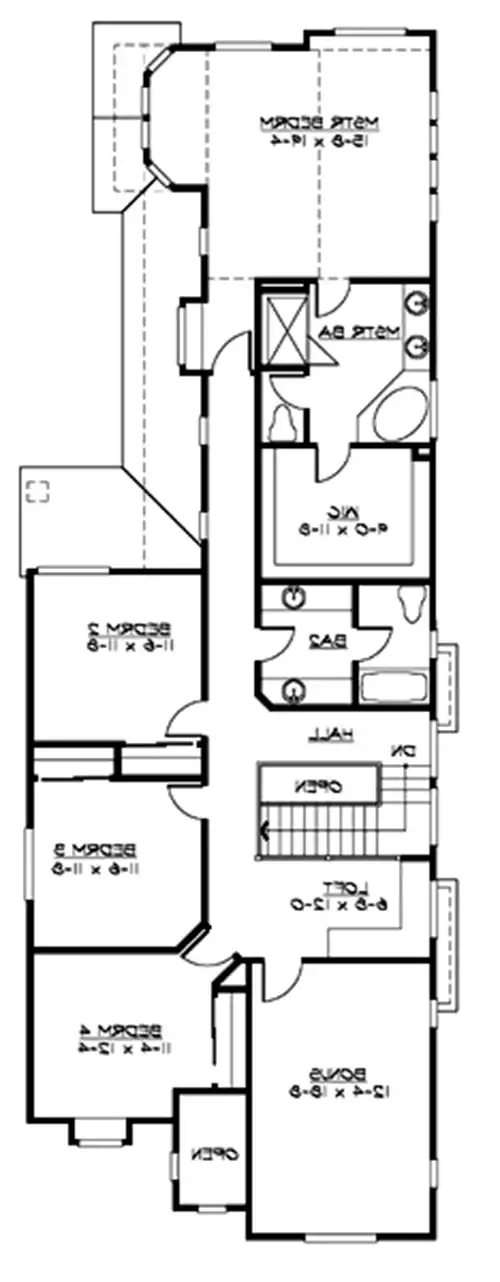
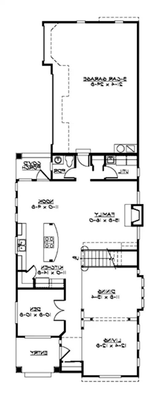
Floor Plans
Click to Zoom In on Floor Plan
 
House Plan 3353
House Plan Pricing
STEP 1 Select Your Package

PDF Single Build


Digital plans emailed to you in PDF format that allows for printing copies and sharing electronically with contractors, subs, decorators, and more. This package includes a license to build the home one time.

PDF Single Build $1,950
Most recommended package

CAD + PDF Unlimited Build


This plan package is created in AutoCAD and delivered in .DWG format. CAD files are intended for use by design professionals, structural engineers, and builders to update plans for local building codes or to make revisions based on specific needs, lot requirements, and budget considerations. A complimentary PDF copy is included with this package for reference. CAD packages are delivered within 1 to 2 business days.
 
This package also comes with a multi-use building license, granting permission to construct the home an unlimited number of times, along with a copyright release for making revisions and printing unlimited copies.
 
For details on the specific CAD program used, please refer to the PLAN DETAILS section located above the floor plan on each plan page.

CAD + PDF Unlimited Build $3,250
2D electronic editable computer files
STEP 2 Need To Reverse This Plan?
STEP 3 CHOOSE YOUR FOUNDATION
STEP 4 OPTIONAL ADD-ONS
Subtotal:
$1950
FREE SHIPPING
IMPORTANT NOTE: Due to state regulations, this home is not available for purchase in the State of Washington. Contact us for more information.

Note: This plan cannot be purchased for construction in Washington State.
 
Plan Details
See All Details
Finished Square Footage
1,300 Sq. Ft.
Main Level:
1,776 Sq. Ft.
Upper Level:
3,076 Sq. Ft.
Total:
Room Details
4
Bedrooms:
2
Full Baths:
1
Half Baths:
General House Information
2
Number of Stories:
28' 0"
Width:
81' 0"
Depth:
Single
Dwelling Number:
2nd Floor
Bonus Access:
Unfinished Square Footage
620 Sq. Ft.
Garage:
GARAGE
Rear
Garage Location:
3
Garage Size:
Exterior Style
Craftsman
Traditional
Collections
Luxury
Old House Classics
Split Bedroom
Foundation
Crawl Space
Framing Information
Truss
Roof Framing:
2x6
Exterior Wall Framing:
Roof Pitch
8
Primary:
5
Secondary:
Roof Load
25
Live:
15
Dead:
85
Wind:
Insulation (R)
21
Exterior Wall:
13
Interior Wall:
38
Ceiling:
30
Floor:
House And Ceiling Heights
9
First Floor Ceiling:
8
Second Floor Ceiling:
27' 6"
Maximum House Height:
Key Features
Attached
Bonus Room
Covered Front Porch
Crawlspace
Dining Room
Family Room
Fireplace
Formal LR
Home Office
Kitchen Island
Laundry 1st Fl
Loft / Balcony
Nook / Breakfast Area
Rear Porch
Rear-entry
Side-entry
Suited for narrow lot
Vaulted Ceilings
Walk-in Pantry

Our Guarantees

  • Only the highest quality plans
  • Int’l Residential Code Compliant
  • Full structural details on all plans
  • Best plan price guarantee
  • Free modification Estimates
  • Builder-ready construction drawings
  • Expert advice from leading designers
  •  PDFs NOW!™ plans in minutes
  • 100% satisfaction guarantee
  • Free Home Building Organizer