20% Off House Plans Sitewide Ends Sunday
20% Off House Plans Sitewide Ends Sunday

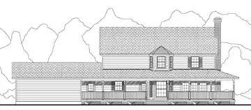
House Plan: DFD-3617

See All 3 Photos > (photographs may reflect modified homes)
© copyright by designer
SQ FT
2,582
BEDS
3
BATHS
3
STORIES
2
CARS
2
HOUSE PLANS SALE 
START AT  $1,128.00
For questions and help, live chat, email or call us at 877-895-5299
Floor Plans
Click to Zoom In on Floor Plan
 
About House Plan 3617:
Wrap-around porch provides plenty of space for relaxing or casual entertaining. The rear of the home provides a casual family gathering area by combining the kitchen, breakfast, and greatroom. All of the bedrooms are on the upper floor creating added privacy.
House Plan Pricing
STEP 1 Select Your Package

PDF Single Build


Digital plans emailed to you in PDF format that allows for printing copies and sharing electronically with contractors, subs, decorators, and more. This package includes a license to build the home one time.

PDF Single Build $1,410
Immediate Delivery!
Most recommended package

5 Printed Sets


Five Printed Sets of Residential Construction Drawings are typically 24” x 36” documents and come with a license to construct a single residence shipped to a physical address. Keep in mind PDF Plan Packages are our most popular choice which allows you to print as many copies as you need and to electronically send files to your builder, subcontractors, etc.

5 Printed Sets $1,760
Five printed sets of house plans

5 Printed Sets + PDF


Digital plan emailed to you in PDF format that allows for printing copies on a home printer or local print shop and sharing with contractors, subs, decorators, and more. PLUS five printed sets shipped and delivered 3-5 business days.

5 Printed Sets + PDF $1,935
Immediate Delivery!
Digital plans plus 5 printed sets

CAD + PDF Single Build


CAD files are a complete set of construction drawings delivered electronically. They can be used for any type of modification—including major design changes and engineering—and include a release granting permission to modify the plan. Most CAD plan orders are emailed the same or next business day.
 
This package also comes with a PDF set of plans and a copyright release for making modifications and printing unlimited copies.
 
CAD files are provided in .dwg format. For details on the specific CAD program used, please refer to the PLAN DETAILS section located above the floor plan on each plan’s page.

CAD + PDF Single Build $2,365
2D electronic editable computer files
STEP 2 Need To Reverse This Plan?
STEP 3 CHOOSE YOUR FOUNDATION
STEP 4 OPTIONAL ADD-ONS
Subtotal:
$1410
FREE SHIPPING
 
Plan Details
See All Details
Finished Square Footage
1,370 Sq. Ft.
Main Level:
1,212 Sq. Ft.
Upper Level:
2,582 Sq. Ft.
Total:
Room Details
3
Bedrooms:
3
Full Baths:
General House Information
2
Number of Stories:
74' 0"
Width:
44' 0"
Depth:
Single
Dwelling Number:
None
Bonus Access:
Unfinished Square Footage
720 Sq. Ft.
Garage:
1181 Sq. Ft.
Porch:
GARAGE
Side
Garage Location:
2
Garage Size:
Exterior Style
Country
Farmhouse
Southern
Collections
Mountain
Old House Classics
Open Floor Plan
Outdoor Living
PDFs Fast!
Vacation
Foundation
Basement
Crawl Space
Slab
Framing Information
Stick
Roof Framing:
2x4
Exterior Wall Framing:
Roof Pitch
8/12
Primary:
Roof Load
30
Live:
15
Dead:
Insulation (R)
Per IRC Climate Zones
House And Ceiling Heights
8
First Floor Ceiling:
8
Second Floor Ceiling:
27' 0"
Maximum House Height:
Facade
Siding
Key Features
Attached
Basement
Bonus Room
Crawlspace
Double Vanity Sink
Fireplace
Foyer
Great Room
Home Office
Kitchen Island
Laundry 1st Fl
Primary Bdrm Upstairs
Mud Room
Nook / Breakfast Area
Open Floor Plan
Peninsula / Eating Bar
Rec Room
Separate Tub and Shower
Side-entry
Slab
Storage Space
Suited for corner lot
Suited for view lot
Walk-in Closet
Wraparound Porch

Our Guarantees

  • Only the highest quality plans
  • Int’l Residential Code Compliant
  • Full structural details on all plans
  • Best plan price guarantee
  • Free modification Estimates
  • Builder-ready construction drawings
  • Expert advice from leading designers
  •  PDFs NOW!™ plans in minutes
  • 100% satisfaction guarantee
  • Free Home Building Organizer