17% off ALL House Plans Sitewide
17% off ALL House Plans Sitewide

House Plan: DFD-3789

See All 3 Photos > (photographs may reflect modified homes)
© copyright by designer
SQ FT
3,022
BEDS
4
BATHS
3.5
STORIES
2
CARS
2
HOUSE PLANS SALE 
START AT  $1,000.15
For questions and help, live chat, email or call us at 877-895-5299
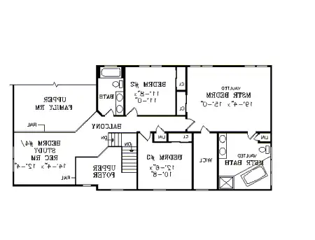
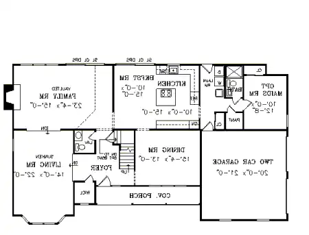
Floor Plans
Click to Zoom In on Floor Plan
 
About House Plan 3789:
Spacious, open and bright rooms that let the outdoors in give this two-story plenty of appeal.
A serene front porch welcomes guests inside to a stunning, two-story foyer with a balcony bridge above and a view into the vaulted family room straight ahead. To the right of the foyer is a sunken living room with a bay window
and a view to the family room, which features a fireplace and a cathedral ceiling. Upstairs there are four bedrooms, including a lavish master suite with a cathedral ceiling, a huge walk-in closet and a private bath with corner spa tub.
House Plan Pricing
STEP 1 Select Your Package

PDF Bid Set


Home plans stamped "NOT FOR CONSTRUCTION" for cost estimating and bidding purposes only; a minimum 5 set plan package must be purchased within 90 days for a license to build plan set; a credit will be applied towards your house plan upgrade

PDF Bid Set $955
Immediate Delivery!
Digital set of plans for bidding purposes only

PDF Single Build


Digital plans emailed to you in PDF format that allows for printing copies and sharing electronically with contractors, subs, decorators, and more. This package includes a license to build the home one time.

PDF Single Build $1,205
Immediate Delivery!
Most recommended package

5 Printed Sets


Five Printed Sets of Residential Construction Drawings are typically 24” x 36” documents and come with a license to construct a single residence shipped to a physical address. Keep in mind PDF Plan Packages are our most popular choice which allows you to print as many copies as you need and to electronically send files to your builder, subcontractors, etc.

5 Printed Sets $1,315
Five printed sets of house plans

8 Printed Sets


Eight Printed Sets of Construction Drawings, typically 24” x 36” documents, with a license to construct a single residence shipped to your physical address. PDF Plan Packages are our most popular choice which allows you to print as many copies as you need and to electronically send files to your builder, subcontractors, bank/mortgage reps, material stores, decorators and more.

8 Printed Sets $1,390
Eight printed sets of house plans
STEP 2 CHOOSE YOUR FOUNDATION
STEP 3 OPTIONAL ADD-ONS
Subtotal:
$1205
FREE SHIPPING
 
Plan Details
See All Details
Finished Square Footage
1,720 Sq. Ft.
Main Level:
1,302 Sq. Ft.
Upper Level:
3,022 Sq. Ft.
Total:
Room Details
4
Bedrooms:
3
Full Baths:
1
Half Baths:
General House Information
2
Number of Stories:
65' 0"
Width:
37' 0"
Depth:
Single
Dwelling Number:
Unfinished Square Footage
GARAGE
Side
Garage Location:
2
Garage Size:
Exterior Style
Colonial
Country
Farmhouse
Traditional
Collections
Exclusive
Luxury
Old House Classics
Foundation
Basement
Framing Information
Stick
Roof Framing:
2x4
Exterior Wall Framing:
Roof Load
30
Live:
10
Dead:
Insulation (R)
13
Exterior Wall:
0
Interior Wall:
30
Ceiling:
19
Floor:
House And Ceiling Heights
8'-1"
First Floor Ceiling:
8'-1"
Second Floor Ceiling:
29' 4"
Maximum House Height:
Facade
Owner's Choice
OwnersChoice
Key Features
Attached
Basement
Front Porch

Our Guarantees

  • Only the highest quality plans
  • Int’l Residential Code Compliant
  • Full structural details on all plans
  • Best plan price guarantee
  • Free modification Estimates
  • Builder-ready construction drawings
  • Expert advice from leading designers
  •  PDFs NOW!™ plans in minutes
  • 100% satisfaction guarantee
  • Free Home Building Organizer

See terms opt out anytime