20% Off House Plans Sitewide Ends Sunday
20% Off House Plans Sitewide Ends Sunday

House Plan: DFD-4103

See All 12 Photos > (photographs may reflect modified homes)
© copyright by designer
SQ FT
2,887
BEDS
4
BATHS
3
STORIES
1.5
CARS
2
HOUSE PLANS SALE 
START AT  $920.00
For questions and help, live chat, email or call us at 877-895-5299
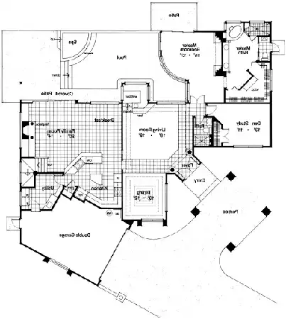
Floor Plans
Click to Zoom In on Floor Plan
 
House Plan 4103
House Plan Pricing
STEP 1 Select Your Package

PDF Bid Set


Home plans stamped "NOT FOR CONSTRUCTION" for cost estimating and bidding purposes only; a minimum 5 set plan package must be purchased within 90 days for a license to build plan set; a credit will be applied towards your house plan upgrade

PDF Bid Set $700
Immediate Delivery!
Digital set of plans for bidding purposes only

PDF Single Build


Digital plans emailed to you in PDF format that allows for printing copies and sharing electronically with contractors, subs, decorators, and more. This package includes a license to build the home one time.

PDF Single Build $1,150
Immediate Delivery!
Most recommended package

5 Printed Sets


Five Printed Sets of Residential Construction Drawings are typically 24” x 36” documents and come with a license to construct a single residence shipped to a physical address. Keep in mind PDF Plan Packages are our most popular choice which allows you to print as many copies as you need and to electronically send files to your builder, subcontractors, etc.

5 Printed Sets $1,350
Five printed sets of house plans

5 Printed Sets + PDF


Digital plan emailed to you in PDF format that allows for printing copies on a home printer or local print shop and sharing with contractors, subs, decorators, and more. PLUS five printed sets shipped and delivered 3-5 business days.

5 Printed Sets + PDF $1,500
Immediate Delivery!
Digital plans plus 5 printed sets

CAD + PDF Single Build


CAD files are a complete set of construction drawings delivered electronically. They can be used for any type of modification—including major design changes and engineering—and include a release granting permission to modify the plan. Most CAD plan orders are emailed the same or next business day.
 
This package also comes with a PDF set of plans and a copyright release for making modifications and printing unlimited copies.
 
CAD files are provided in .dwg format. For details on the specific CAD program used, please refer to the PLAN DETAILS section located above the floor plan on each plan’s page.

CAD + PDF Single Build $2,300
2D electronic editable computer files
STEP 2 CHOOSE YOUR FOUNDATION
STEP 3 OPTIONAL ADD-ONS
Subtotal:
$1150
FREE SHIPPING
 
Plan Details
See All Details
Finished Square Footage
2,212 Sq. Ft.
Main Level:
675 Sq. Ft.
Upper Level:
2,887 Sq. Ft.
Total:
Room Details
4
Bedrooms:
3
Full Baths:
General House Information
1.5
Number of Stories:
70' 0"
Width:
74' 1"
Depth:
Single
Dwelling Number:
None
Bonus Access:
Unfinished Square Footage
479 Sq. Ft.
Garage:
149 Sq. Ft.
Deck:
149 Sq. Ft.
Patio:
GARAGE
Front
Garage Location:
2
Garage Size:
Exterior Style
European
Mediterranean
Modern
Collections
Architects Choice
Florida
Kitchens
Primary Suites
Open Floor Plan
Outdoor Living
Pet Lovers
Foundation
*Slab (Standard)
Basement *Modification*
Crawl Space *Modification*
Framing Information
Truss
Roof Framing:
2x4
Exterior Wall Framing:
Roof Pitch
6/12
Primary:
Insulation (R)
11
Exterior Wall:
0
Interior Wall:
30
Ceiling:
0
Floor:
House And Ceiling Heights
10/12
First Floor Ceiling:
10
Second Floor Ceiling:
27' 6"
Maximum House Height:
Facade
Stucco
Key Features
Arches
Attached
Basement
Built in Media Center
Built-In Plant Shelves
Corner Lot
Covered Patio
Covered Rear Porch
Crawlspace
Deck
Decorative Interior Columns
Dining Room
Double Vanity Sink
Family Room
Fireplace
Formal Dining
Formal LR
Foyer
Front-entry
Great Room
Guest Suite
His and Hers Primary Closets
Home Office
Kitchen Island
Laundry Down
Library/Media Rm
Loft / Balcony
Primary Bath
Primary Bdrm Main Floor
Primary Bedroom
Mud Room
Nook / Breakfast Area
Observatory
Open Floor Plan
Peninsula / Eating Bar
Portico
Private Primary Patio
Rear Porch
Separate Tub and Shower
Sitting Area
Slab
Split Bedrooms
Suited for corner lot
Suited for view lot
Sundeck
Three Baths
Three Bedrooms
Two Story
Unique Pool / Spa
Walk-in Closet
Walk-in Pantry

Our Guarantees

  • Only the highest quality plans
  • Int’l Residential Code Compliant
  • Full structural details on all plans
  • Best plan price guarantee
  • Free modification Estimates
  • Builder-ready construction drawings
  • Expert advice from leading designers
  •  PDFs NOW!™ plans in minutes
  • 100% satisfaction guarantee
  • Free Home Building Organizer