15% off ALL House Plans Sitewide
15% off ALL House Plans Sitewide

House Plan: DFD-4202

See All 4 Photos > (photographs may reflect modified homes)
© copyright by designer
SQ FT
2,326
BEDS
3
BATHS
2.5
STORIES
2
CARS
2
HOUSE PLANS SALE 
START AT  $1,576.75
For questions and help, live chat, email or call us at 877-895-5299
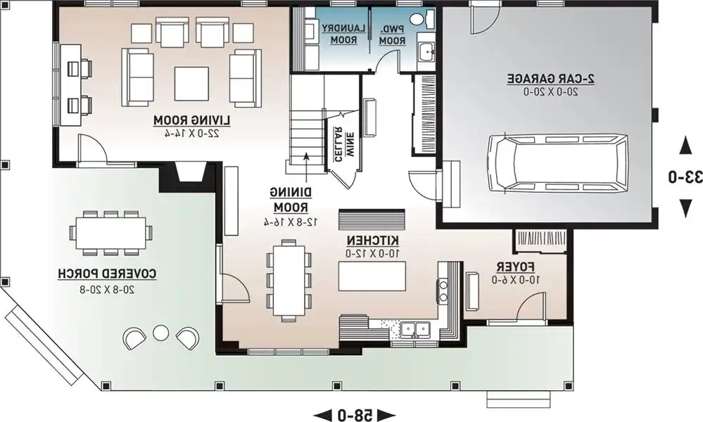
Floor Plans
Click to Zoom In on Floor Plan
 
About House Plan 4202:
Use of natural materials enhance this timeless, yet totally modern 2,326 sq. ft. three-bedroom with 2.5 baths. Main-floor layout includes living room with fireplace, dining area, kitchen, half-bath, laundry room and French door access to covered deck. Upstairs, the master suite enjoys French door access to the upper balcony, walk-in closet and five-fixture master bathroom. Two additional bedrooms share a bathroom, and a relaxed upstairs family room can become bedroom #4, if desired. Two-car garage stores more than cars! The plan includes a crawlspace foundation but alternate foundations are available if more living area is desired.
House Plan Pricing
STEP 1 Select Your Package

PDF Single Build


Digital plans emailed to you in PDF format that allows for printing copies and sharing electronically with contractors, subs, decorators, and more. This package includes a license to build the home one time.

PDF Single Build $1,855
Most recommended package

3 Printed Sets + PDF


Includes 3 physical printed blueprint sets, shipped free via UPS within the U.S. Printed sets ship within 1 business day and are delivered within 3 – 5 business days. A complimentary PDF plan set is also emailed within 1 business day for easy sharing and local printing. These plans may be used to construct one home.

3 Printed Sets + PDF $1,995
3 Printed Sets + PDF

CAD + PDF Single Build


This plan package is created in AutoCAD and delivered in .DWG format. CAD files are intended for use by design professionals, structural engineers, and builders to update plans for local building codes or to make revisions based on specific needs, lot requirements, and budget considerations. A complimentary PDF copy is included with this package for reference. CAD packages are delivered within 1 to 2 business days.
 
This package also comes with a copyright release for making revisions and printing unlimited copies.

For details on the specific CAD program used, please refer to the PLAN DETAILS section located above the floor plan on each plan page.

CAD + PDF Single Build $2,855
2D electronic editable computer files
STEP 2 Need To Reverse This Plan?
STEP 3 CHOOSE YOUR FOUNDATION
STEP 4 OPTIONAL ADD-ONS
Subtotal:
$1855
FREE SHIPPING
Please allow 3-5 business days for delivery of this plan Please check our PDFs NOW collection for plans that can be downloaded and received immediately or live chat us to help you find a similar plan available now.
 
Plan Details
See All Details
Finished Square Footage
1,095 Sq. Ft.
Main Level:
1,231 Sq. Ft.
Upper Level:
2,326 Sq. Ft.
Total:
Room Details
3
Bedrooms:
2
Full Baths:
1
Half Baths:
General House Information
2
Number of Stories:
58' 0"
Width:
33' 0"
Depth:
Single
Dwelling Number:
None
Bonus Access:
Unfinished Square Footage
427 Sq. Ft.
Garage:
GARAGE
Side
Garage Location:
2
Garage Size:
Exterior Style
Country
Craftsman
Southern
Collections
Builders
Canada
Kitchens
Primary Suites
Mountain
Old House Classics
Outdoor Living
Pet Lovers
Split Bedroom
Vacation
Foundation
Crawlspace (included)
Floating slab
Monolithic slab
Framing Information
Truss
Roof Framing:
2x6
Exterior Wall Framing:
Roof Pitch
12/12
Primary:
12/12
Gable:
4/12
Porch:
Roof Load
55
Live:
20
Dead:
Insulation (R)
20
Exterior Wall:
0
Interior Wall:
40
Ceiling:
0
Floor:
House And Ceiling Heights
9
First Floor Ceiling:
8
Second Floor Ceiling:
26' 2"
Maximum House Height:
Key Features
Attached
Covered Front Porch
Crawlspace
Dining Room
Double Vanity Sink
Family Room
Fireplace
Foyer
Front Porch
Kitchen Island
Laundry 2nd Fl
Loft / Balcony
Primary Bdrm Upstairs
Mud Room
Separate Tub and Shower
Side-entry
Sitting Area
Slab
Suited for corner lot
Vaulted Ceilings
Walk-in Closet
Wine Cellar

Our Guarantees

  • Only the highest quality plans
  • Int’l Residential Code Compliant
  • Full structural details on all plans
  • Best plan price guarantee
  • Free modification Estimates
  • Builder-ready construction drawings
  • Expert advice from leading designers
  •  PDFs NOW!™ plans in minutes
  • 100% satisfaction guarantee
  • Free Home Building Organizer