House Plan: DFD-4261

See All 3 Photos > (photographs may reflect modified homes)
© copyright by designer
SQ FT
1,346
BEDS
3
BATHS
1.5
STORIES
2
CARS
1
PLANS FROM $1,510
For questions and help, live chat, email or call us at 877-895-5299
Floor Plans
Click to Zoom In on Floor Plan
 
About House Plan 4261:
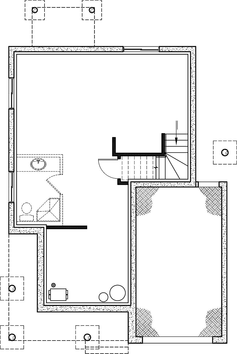
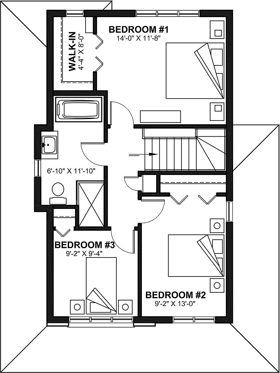
House Plan 4261 makes a wonderful choice for a family on a budget! This two-story transitional home offers a modest 1,346-square-foot layout with three bedrooms and one-and-a-half bathrooms in addition to a front-entry one-car garage. On the main floor, you'll find the powder room and laundry off the foyer while the island kitchen and great room fill out the back. Upstairs, the bedrooms are placed around a central four-piece hall bath for convenient access. 
House Plan Pricing
STEP 1 Select Your Package

PDF Single Build


Digital plans emailed to you in PDF format that allows for printing copies and sharing electronically with contractors, subs, decorators, and more. This package includes a license to build the home one time.

PDF Single Build $1,510
Most recommended package

3 Printed Sets + PDF


Includes 3 physical printed blueprint sets, shipped free via UPS within the U.S. Printed sets ship within 1 business day and are delivered within 3 – 5 business days. A complimentary PDF plan set is also emailed within 1 business day for easy sharing and local printing. These plans may be used to construct one home.

3 Printed Sets + PDF $1,650
3 Printed Sets + PDF

CAD + PDF Single Build


This plan package is created in AutoCAD and delivered in .DWG format. CAD files are intended for use by design professionals, structural engineers, and builders to update plans for local building codes or to make revisions based on specific needs, lot requirements, and budget considerations. A complimentary PDF copy is included with this package for reference. CAD packages are delivered within 1 to 2 business days.
 
This package also comes with a copyright release for making revisions and printing unlimited copies.

For details on the specific CAD program used, please refer to the PLAN DETAILS section located above the floor plan on each plan page.

CAD + PDF Single Build $2,510
2D electronic editable computer files
STEP 2 Need To Reverse This Plan?
STEP 3 CHOOSE YOUR FOUNDATION
STEP 4 OPTIONAL ADD-ONS
Subtotal:
$1510
FREE SHIPPING
Please allow 3-5 business days for delivery of this plan Please check our PDFs NOW collection for plans that can be downloaded and received immediately or live chat us to help you find a similar plan available now.
 
Plan Details
See All Details
Finished Square Footage
656 Sq. Ft.
Main Level:
690 Sq. Ft.
Upper Level:
656 Sq. Ft.
Lower Level:
1,346 Sq. Ft.
Total:
Room Details
3
Bedrooms:
1
Full Baths:
1
Half Baths:
General House Information
2
Number of Stories:
28' 0"
Width:
38' 0"
Depth:
Single
Dwelling Number:
None
Bonus Access:
Unfinished Square Footage
240 Sq. Ft.
Garage:
98 Sq. Ft.
Porch:
GARAGE
1
Garage Size:
Exterior Style
Cottage
Country
Transitional
Collections
Affordable
Canada
Mountain
Open Floor Plan
Foundation
Crawlspace
Floating slab
Full Unfinished Basement (included)
Monolithic slab
Framing Information
Truss
Roof Framing:
2x6
Exterior Wall Framing:
Roof Pitch
10/12
Primary:
Insulation (R)
House And Ceiling Heights
8
First Floor Ceiling:
8
Second Floor Ceiling:
29' 2"
Maximum House Height:
Key Features
Attached
Covered Front Porch
Family Style
Foyer
Front-entry
Great Room
Kitchen Island
Laundry 1st Fl
L-Shaped
Primary Bdrm Upstairs
Open Floor Plan
Rear Porch
Separate Tub and Shower
Suited for narrow lot
Walk-in Closet

Our Guarantees

  • Only the highest quality plans
  • Int’l Residential Code Compliant
  • Full structural details on all plans
  • Best plan price guarantee
  • Free modification Estimates
  • Builder-ready construction drawings
  • Expert advice from leading designers
  •  PDFs NOW!™ plans in minutes
  • 100% satisfaction guarantee
  • Free Home Building Organizer