15% off ALL House Plans Sitewide
15% off ALL House Plans Sitewide

House Plan: DFD-4318

See All 8 Photos > (photographs may reflect modified homes)
© copyright by designer
SQ FT
2,290
BEDS
3
BATHS
2.5
STORIES
1
CARS
2
HOUSE PLANS SALE 
START AT  $1,100.75
For questions and help, live chat, email or call us at 877-895-5299
Floor Plans
Click to Zoom In on Floor Plan
 
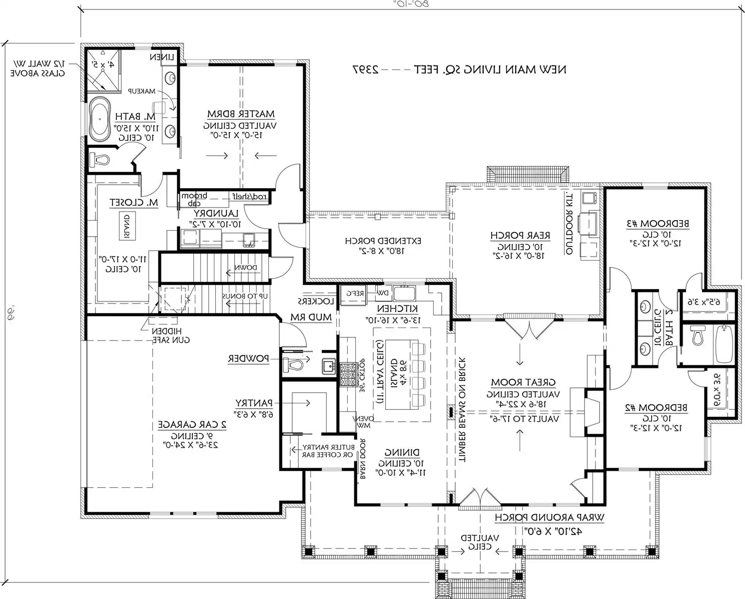
About House Plan 4318:
A gorgeous farmhouse design has been enhanced with modern trimmings, making this plan a functional and stylish option. Notice the amazing accessibility of the ranch-style layout and its 2,290 square feet. Plus, this home has an option to add a 4th bedroom thanks to a large bonus room and bath which sit above the 2-car garage. Other highlights of this home include its vaulted living room and impressive eat-in kitchen, as well as a nearby covered deck which features an amazing outdoor kitchen and entertainment area. Take a special look at the vaulted master suite, complete with a spa bath and soaking tub, along with an impressive walk-in closet. The laundry is close by, while the auxiliary bedrooms sit at the other end of the home, creating a bit of privacy and comfort for everyone to enjoy. 
House Plan Pricing
STEP 1 Select Your Package

PDF Single Build


Digital plans emailed to you in PDF format that allows for printing copies and sharing electronically with contractors, subs, decorators, and more. This package includes a license to build the home one time.

PDF Single Build $1,295
Most recommended package

5 Printed Sets + PDF


Includes 5 physical printed blueprint sets, shipped free via UPS within the U.S. Printed sets ship within 1 business day and are delivered within 3 – 5 business days. A complimentary PDF plan set is also emailed within 1 business day for easy sharing and local printing. These plans may be used to construct one home.

5 Printed Sets + PDF $1,595
5 Printed Sets + PDF

PDF Unlimited Build


Digital plans with an unlimited build license emailed in PDF format, that allows for printing copies on a home printer or local print shop and sharing with contractors, subs, decorators and more 

PDF Unlimited Build $1,995
Digital plans including unlimited build license

CAD + PDF Unlimited Build


This plan package is created in AutoCAD and delivered in .DWG format. CAD files are intended for use by design professionals, structural engineers, and builders to update plans for local building codes or to make revisions based on specific needs, lot requirements, and budget considerations. A complimentary PDF copy is included with this package for reference. CAD packages are delivered within 1 to 2 business days.
 
This package also comes with a multi-use building license, granting permission to construct the home an unlimited number of times, along with a copyright release for making revisions and printing unlimited copies.
 
For details on the specific CAD program used, please refer to the PLAN DETAILS section located above the floor plan on each plan page.

CAD + PDF Unlimited Build $2,795
2D electronic editable computer files
STEP 2 Need To Reverse This Plan?
STEP 3 CHOOSE YOUR FOUNDATION
STEP 4 OPTIONAL ADD-ONS
Subtotal:
$1295
FREE SHIPPING
 
Plan Details
See All Details
Finished Square Footage
2,290 Sq. Ft.
Main Level:
2,290 Sq. Ft.
Lower Level:
2,290 Sq. Ft.
Total:
Room Details
3
Bedrooms:
2
Full Baths:
1
Half Baths:
General House Information
1
Number of Stories:
80' 10"
Width:
62' 2"
Depth:
Single
Dwelling Number:
Unfinished Square Footage
632 Sq. Ft.
Garage:
782 Sq. Ft.
Porch:
339 Sq. Ft.
Bonus Room:
GARAGE
Front
Garage Location:
2
Garage Size:
Exterior Style
Country
Farmhouse
Modern Farmhouse
Ranch
Collections
Kitchens
Primary Suites
Open Floor Plan
Outdoor Living
PDFs Fast!
Split Bedroom
Tennessee
Foundation
Basement Foundation
Crawl Space
Slab
Framing Information
Stick
Roof Framing:
2x4
Exterior Wall Framing:
Roof Pitch
9:12
Primary:
Insulation (R)
House And Ceiling Heights
10
First Floor Ceiling:
9
Second Floor Ceiling:
26' 3"
Maximum House Height:
Key Features
Attached
Basement
Bonus Room
Butler's Pantry
Covered Rear Porch
Crawlspace
Dining Room
Double Vanity Sink
Fireplace
Foyer
Great Room
Kitchen Island
Laundry 1st Fl
L-Shaped
Primary Bdrm Main Floor
Mud Room
Open Floor Plan
Outdoor Kitchen
Outdoor Living Space
Peninsula / Eating Bar
Rear Porch
Separate Tub and Shower
Side-entry
Slab
Split Bedrooms
Vaulted Great Room/Living
Vaulted Primary
Walk-in Closet
Walk-in Pantry
Wraparound Porch

Our Guarantees

  • Only the highest quality plans
  • Int’l Residential Code Compliant
  • Full structural details on all plans
  • Best plan price guarantee
  • Free modification Estimates
  • Builder-ready construction drawings
  • Expert advice from leading designers
  •  PDFs NOW!™ plans in minutes
  • 100% satisfaction guarantee
  • Free Home Building Organizer

See terms opt out anytime