20% Off House Plans Sitewide Ends Tuesday
20% Off House Plans Sitewide Ends Tuesday

House Plan: DFD-4360

See All 2 Photos > (photographs may reflect modified homes)
© copyright by designer
SQ FT
2,221
BEDS
4
BATHS
3
STORIES
1
CARS
2
HOUSE PLANS SALE 
START AT  $840.00
For questions and help, live chat, email or call us at 877-895-5299
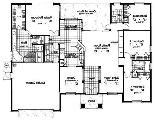
Floor Plans
Click to Zoom In on Floor Plan
 
House Plan 4360
House Plan Pricing
STEP 1 Select Your Package

PDF Bid Set


Home plans stamped "NOT FOR CONSTRUCTION" for cost estimating and bidding purposes only; a minimum 5 set plan package must be purchased within 90 days for a license to build plan set; a credit will be applied towards your house plan upgrade

PDF Bid Set $600
Digital set of plans for bidding purposes only

PDF Single Build


Digital plans emailed to you in PDF format that allows for printing copies and sharing electronically with contractors, subs, decorators, and more. This package includes a license to build the home one time.

PDF Single Build $1,050
Most recommended package

5 Printed Sets


Five Printed Sets of Residential Construction Drawings are typically 24” x 36” documents and come with a license to construct a single residence shipped to a physical address. Keep in mind PDF Plan Packages are our most popular choice which allows you to print as many copies as you need and to electronically send files to your builder, subcontractors, etc.

5 Printed Sets $1,250
Five printed sets of house plans

5 Printed Sets + PDF


Digital plan emailed to you in PDF format that allows for printing copies on a home printer or local print shop and sharing with contractors, subs, decorators, and more. PLUS five printed sets shipped and delivered 3-5 business days.

5 Printed Sets + PDF $1,400
Digital plans plus 5 printed sets

CAD + PDF Single Build


CAD files are a complete set of construction drawings delivered electronically. They can be used for any type of modification—including major design changes and engineering—and include a release granting permission to modify the plan. Most CAD plan orders are emailed the same or next business day.
 
This package also comes with a PDF set of plans and a copyright release for making modifications and printing unlimited copies.
 
CAD files are provided in .dwg format. For details on the specific CAD program used, please refer to the PLAN DETAILS section located above the floor plan on each plan’s page.

CAD + PDF Single Build $2,100
2D electronic editable computer files
STEP 2 CHOOSE YOUR FOUNDATION
STEP 3 OPTIONAL ADD-ONS
Subtotal:
$1050
FREE SHIPPING
 
Plan Details
See All Details
Finished Square Footage
2,221 Sq. Ft.
Main Level:
2,221 Sq. Ft.
Total:
Room Details
4
Bedrooms:
3
Full Baths:
General House Information
1
Number of Stories:
65' 0"
Width:
50' 0"
Depth:
Single
Dwelling Number:
None
Bonus Access:
Unfinished Square Footage
511 Sq. Ft.
Garage:
70 Sq. Ft.
Porch:
240 Sq. Ft.
Patio:
GARAGE
Front
Garage Location:
2
Garage Size:
Exterior Style
Beach
Contemporary
Mediterranean
Collections
Concrete
Florida
ICF
Foundation
*Slab (Standard)
Basement *Modification*
Crawl Space *Modification*
Framing Information
Truss
Roof Framing:
8" Block
Exterior Wall Framing:
Roof Pitch
6/12
Primary:
Insulation (R)
5
Exterior Wall:
0
Interior Wall:
30
Ceiling:
0
Floor:
House And Ceiling Heights
10
First Floor Ceiling:
21' 0"
Maximum House Height:
Facade
Stucco
Key Features
2 Car Garage / Front Load
2 Story Volume
3 Baths
4 Bedrooms
Attached
Basement
Bedrooms Volume Ceiling - 10 feet
Built in Media Center
Built in Vanity Primary Bath
Built-in Desk
Built-In Plant Shelves
Combination Kitchen / Family Room
Covered Patio Volume Ceiling
Crawlspace
Family Room
Family Room Volume Ceilling
Fireplace
Formal Dining Room - Volume Ceiling - 12 feet
Formal Living Room - Volume Ceiling 11 feet
Foyer - 11 feet
Front-entry
His and Hers Primary Closets
Impressive Columned Entry
Kitchen - Nook Volume Ceilings
Library/Media Rm
Linen Closets
No Porch
Nook / Breakfast Area
Slab
Split Bedrooms
Vaulted Ceilings
Walk-in Closet

Our Guarantees

  • Only the highest quality plans
  • Int’l Residential Code Compliant
  • Full structural details on all plans
  • Best plan price guarantee
  • Free modification Estimates
  • Builder-ready construction drawings
  • Expert advice from leading designers
  •  PDFs NOW!™ plans in minutes
  • 100% satisfaction guarantee
  • Free Home Building Organizer

See terms opt out anytime