20% off ALL House Plans Sitewide
20% off ALL House Plans Sitewide

House Plan: DFD-4551

See All 3 Photos > (photographs may reflect modified homes)
© copyright by designer
SQ FT
901
BEDS
2
BATHS
1
STORIES
1.5
CARS
1
HOUSE PLANS SALE 
START AT  $1,020.00
For questions and help, live chat, email or call us at 877-895-5299
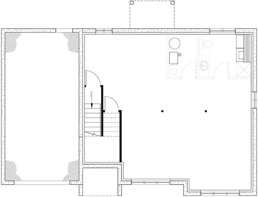
Floor Plans
Click to Zoom In on Floor Plan
 
About House Plan 4551:
This charming two-story bungalow is actually a raised one-story with a daylight basement. Note that the welcoming foyer directs your friends up or down. Share memories and laughs in the good-sized living room before making your way to a delicious dinner in the dining room. The family chef will love the layout of the modern kitchen. Sliding glass doors open to a future deck, for stargazing and more conversation. A separate tub and shower enhance the full bath, which serves both bedrooms.
House Plan Pricing
STEP 1 Select Your Package

PDF Single Build


Digital plans emailed to you in PDF format that allows for printing copies and sharing electronically with contractors, subs, decorators, and more. This package includes a license to build the home one time.

PDF Single Build $1,275
Most recommended package

3 Printed Sets + PDF


Includes 3 physical printed blueprint sets, shipped free via UPS within the U.S. Printed sets ship within 1 business day and are delivered within 3 – 5 business days. A complimentary PDF plan set is also emailed within 1 business day for easy sharing and local printing. These plans may be used to construct one home.

3 Printed Sets + PDF $1,415
3 Printed Sets + PDF

CAD + PDF Single Build


This plan package is created in AutoCAD and delivered in .DWG format. CAD files are intended for use by design professionals, structural engineers, and builders to update plans for local building codes or to make revisions based on specific needs, lot requirements, and budget considerations. A complimentary PDF copy is included with this package for reference. CAD packages are delivered within 1 to 2 business days.
 
This package also comes with a copyright release for making revisions and printing unlimited copies.

For details on the specific CAD program used, please refer to the PLAN DETAILS section located above the floor plan on each plan page.

CAD + PDF Single Build $2,275
2D electronic editable computer files
STEP 2 Need To Reverse This Plan?
STEP 3 CHOOSE YOUR FOUNDATION
STEP 4 OPTIONAL ADD-ONS
Subtotal:
$1275
FREE SHIPPING
Please allow 3-5 business days for delivery of this plan Please check our PDFs NOW collection for plans that can be downloaded and received immediately or live chat us to help you find a similar plan available now.
 
Plan Details
See All Details
Finished Square Footage
901 Sq. Ft.
Main Level:
901 Sq. Ft.
Total:
Room Details
2
Bedrooms:
1
Full Baths:
General House Information
1.5
Number of Stories:
46' 0"
Width:
30' 0"
Depth:
Single
Dwelling Number:
Unfinished Square Footage
394 Sq. Ft.
Garage:
GARAGE
Side
Garage Location:
1
Garage Size:
Exterior Style
Bungalow
Farmhouse
Traditional
Collections
Affordable
Budget
Canada
Empty Nester
First Home
Old House Classics
Open Floor Plan
Split Level
Foundation
Crawlspace
Full Unfinished Basement (included)
Monolithic slab
Framing Information
Truss
Roof Framing:
2x6
Exterior Wall Framing:
Roof Pitch
6/12
Primary:
12/12
Secondary:
Roof Load
55
Live:
20
Dead:
Insulation (R)
20
Exterior Wall:
0
Interior Wall:
40
Ceiling:
0
Floor:
House And Ceiling Heights
8
First Floor Ceiling:
20' 4"
Maximum House Height:
Key Features
Attached
Basement
Country Kitchen
Covered Front Porch
Crawlspace
Daylight Basement
Deck
Dining Room
Formal LR
Foyer
Front Porch
Front-entry
Kitchen Island
Laundry 1st Fl
Primary Bdrm Main Floor
Nook / Breakfast Area
Nursery Room
Open Floor Plan
Separate Tub and Shower
Slab
Split Bedrooms
Suited for corner lot

Our Guarantees

  • Only the highest quality plans
  • Int’l Residential Code Compliant
  • Full structural details on all plans
  • Best plan price guarantee
  • Free modification Estimates
  • Builder-ready construction drawings
  • Expert advice from leading designers
  •  PDFs NOW!™ plans in minutes
  • 100% satisfaction guarantee
  • Free Home Building Organizer