15% off ALL House Plans Sitewide
15% off ALL House Plans Sitewide

House Plan: DFD-4682

See All 3 Photos > (photographs may reflect modified homes)
© copyright by designer
SQ FT
1,288
BEDS
3
BATHS
1.5
STORIES
2
CARS
0
HOUSE PLANS SALE 
START AT  $1,283.50
For questions and help, live chat, email or call us at 877-895-5299
Floor Plans
Click to Zoom In on Floor Plan
 
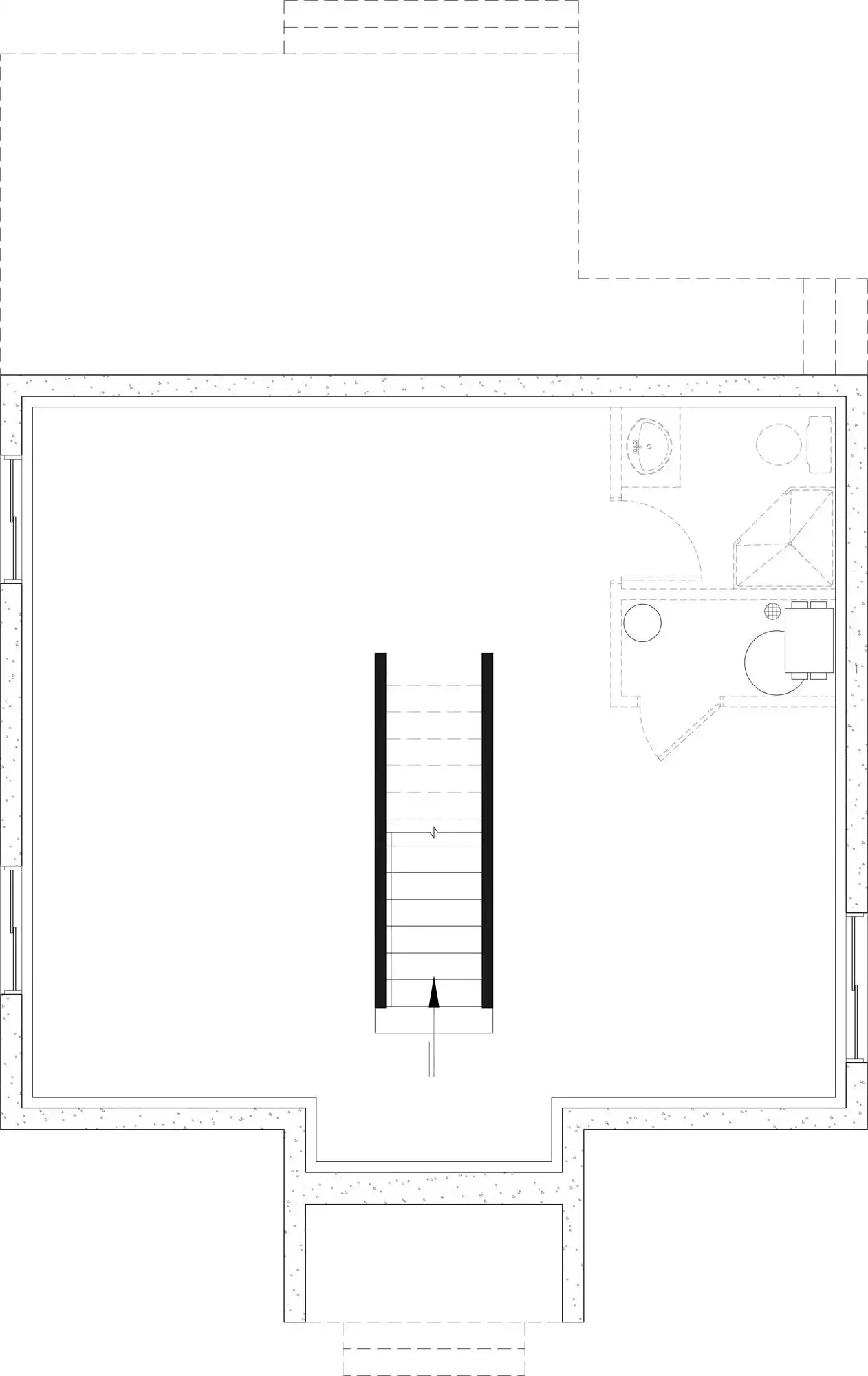
About House Plan 4682:
Two pairs of columns support the entry canopy of this sublimely symmetrical traditional home. The sidelighted entry branches left to the living room or right to the dining room. The kitchen enjoys a modern breakfast peninsula and efficient prep zone. Tucked discreetly in the corner, discover a combined half-bath and laundry room. A functional pinwheel configuration at the top of the stairs minimizes wasted space. The bedrooms and bath are surprisingly roomy in a house with such a modest footprint. Because of the simplicity of detail, this house plan would be very economical to build, allowing you to spend a bit more on quality interior finishes. And don't forget, you also have a basement to be finished as desired.
House Plan Pricing
STEP 1 Select Your Package

PDF Single Build


Digital plans emailed to you in PDF format that allows for printing copies and sharing electronically with contractors, subs, decorators, and more. This package includes a license to build the home one time.

PDF Single Build $1,510
Most recommended package

3 Printed Sets + PDF


Includes 3 physical printed blueprint sets, shipped free via UPS within the U.S. Printed sets ship within 1 business day and are delivered within 3 – 5 business days. A complimentary PDF plan set is also emailed within 1 business day for easy sharing and local printing. These plans may be used to construct one home.

3 Printed Sets + PDF $1,650
3 Printed Sets + PDF

CAD + PDF Single Build


This plan package is created in AutoCAD and delivered in .DWG format. CAD files are intended for use by design professionals, structural engineers, and builders to update plans for local building codes or to make revisions based on specific needs, lot requirements, and budget considerations. A complimentary PDF copy is included with this package for reference. CAD packages are delivered within 1 to 2 business days.
 
This package also comes with a copyright release for making revisions and printing unlimited copies.

For details on the specific CAD program used, please refer to the PLAN DETAILS section located above the floor plan on each plan page.

CAD + PDF Single Build $2,510
2D electronic editable computer files
STEP 2 Need To Reverse This Plan?
STEP 3 CHOOSE YOUR FOUNDATION
STEP 4 OPTIONAL ADD-ONS
Subtotal:
$1510
FREE SHIPPING
Please allow 3-5 business days for delivery of this plan Please check our PDFs NOW collection for plans that can be downloaded and received immediately or live chat us to help you find a similar plan available now.

Note: Please allow for 6 business days for plan delivery
 
Plan Details
See All Details
Finished Square Footage
653 Sq. Ft.
Main Level:
635 Sq. Ft.
Upper Level:
1,288 Sq. Ft.
Total:
Room Details
3
Bedrooms:
1
Full Baths:
1
Half Baths:
General House Information
2
Number of Stories:
27' 0"
Width:
25' 6"
Depth:
Single
Dwelling Number:
None
Bonus Access:
Unfinished Square Footage
GARAGE
None
Garage Location:
0
Garage Size:
Exterior Style
French Country
Lake
Traditional
Collections
Affordable
Builders
Canada
First Home
Mountain
Old House Classics
Rectangular
Foundation
Crawlspace
Floating slab
Full Unfinished Basement (included)
Monolithic slab
Framing Information
Truss
Roof Framing:
2x6
Exterior Wall Framing:
Roof Pitch
8/12
Primary:
8/12
Porch:
Roof Load
55
Live:
20
Dead:
Insulation (R)
20
Exterior Wall:
0
Interior Wall:
40
Ceiling:
0
Floor:
House And Ceiling Heights
8
First Floor Ceiling:
8
Second Floor Ceiling:
27' 2"
Maximum House Height:
Key Features
Basement
Country Kitchen
Covered Front Porch
Crawlspace
Daylight Basement
Dining Room
Double Vanity Sink
Formal LR
Foyer
Front Porch
His and Hers Primary Closets
Home Office
Kitchen Island
Laundry 1st Fl
Primary Bdrm Upstairs
None
Peninsula / Eating Bar
Rear Porch
Separate Tub and Shower
Sitting Area
Slab
Storage Space
Suited for narrow lot
Unfinished Space
Walk-in Closet

Our Guarantees

  • Only the highest quality plans
  • Int’l Residential Code Compliant
  • Full structural details on all plans
  • Best plan price guarantee
  • Free modification Estimates
  • Builder-ready construction drawings
  • Expert advice from leading designers
  •  PDFs NOW!™ plans in minutes
  • 100% satisfaction guarantee
  • Free Home Building Organizer