20% off ALL House Plans Sitewide
20% off ALL House Plans Sitewide

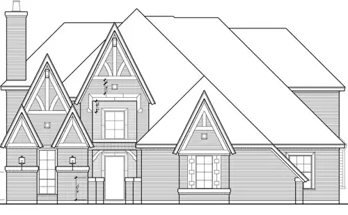
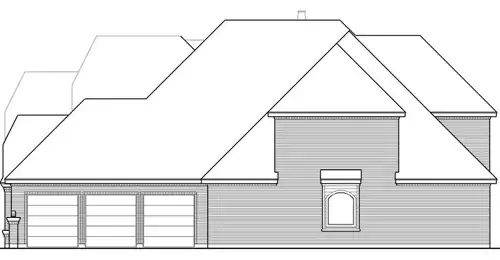
House Plan: DFD-4820

See All 6 Photos > (photographs may reflect modified homes)
© copyright by designer
SQ FT
3,968
BEDS
3
BATHS
3
STORIES
2
CARS
3
HOUSE PLANS SALE 
START AT  $1,032.00
For questions and help, live chat, email or call us at 877-895-5299
Floor Plans
Click to Zoom In on Floor Plan
 
About House Plan 4820:
This two-story house plan will impress you with its extra features. Double doors introduce a peaceful study. A corner fireplace warms the family room. A good-sized island enhances the kitchen. Upstairs, spend some time with friends watching a movie in the media room. Then bring out the snacks for a spirited card game. To see the same floor plans with different exteriors, try the Austin Valley and the Austin Grove.
House Plan Pricing
STEP 1 Select Your Package

PDF Single Build


Digital plans emailed to you in PDF format that allows for printing copies and sharing electronically with contractors, subs, decorators, and more. This package includes a license to build the home one time.

PDF Single Build $1,290
Most recommended package

CAD + PDF Single Build


CAD files are a complete set of construction drawings delivered electronically. They can be used for any type of modification—including major design changes and engineering—and include a release granting permission to modify the plan. Most CAD plan orders are emailed the same or next business day.
 
This package also comes with a PDF set of plans and a copyright release for making modifications and printing unlimited copies.
 
CAD files are provided in .dwg format. For details on the specific CAD program used, please refer to the PLAN DETAILS section located above the floor plan on each plan’s page.

CAD + PDF Single Build $1,920
2D electronic editable computer files

5 Printed Sets


Five Printed Sets of Residential Construction Drawings are typically 24” x 36” documents and come with a license to construct a single residence shipped to a physical address. Keep in mind PDF Plan Packages are our most popular choice which allows you to print as many copies as you need and to electronically send files to your builder, subcontractors, etc.

5 Printed Sets $1,920
Five printed sets of house plans
STEP 2 Need To Reverse This Plan?
STEP 3 CHOOSE YOUR FOUNDATION
STEP 4 OPTIONAL ADD-ONS
Subtotal:
$1290
FREE SHIPPING
 
Plan Details
See All Details
Finished Square Footage
3,037 Sq. Ft.
Main Level:
931 Sq. Ft.
Upper Level:
3,968 Sq. Ft.
Total:
Room Details
3
Bedrooms:
3
Full Baths:
General House Information
2
Number of Stories:
60' 0"
Width:
75' 0"
Depth:
Single
Dwelling Number:
Unfinished Square Footage
684 Sq. Ft.
Garage:
55 Sq. Ft.
Porch:
200 Sq. Ft.
Patio:
GARAGE
Side
Garage Location:
3
Garage Size:
Exterior Style
Traditional
Collections
Luxury
Old House Classics
Open Floor Plan
Outdoor Living
Foundation
Crawlspace
Slab
Framing Information
Stick
Roof Framing:
2x4 or 2x6
Exterior Wall Framing:
Insulation (R)
0
Exterior Wall:
0
Interior Wall:
0
Ceiling:
0
Floor:
House And Ceiling Heights
11
First Floor Ceiling:
9
Second Floor Ceiling:
35' 0"
Maximum House Height:
Key Features
2 Story Volume
Courtyard
Covered Front Porch
Covered Rear Porch
Dining Room
Double Vanity Sink
Family Room
Fireplace
Formal LR
Foyer
Front Porch
Home Office
Laundry 1st Fl
Library/Media Rm
Primary Bdrm Main Floor
Nook / Breakfast Area
Open Floor Plan
Rear Porch
Separate Tub and Shower
Slab
Split Bedrooms
Vaulted Ceilings
Walk-in Closet

Our Guarantees

  • Only the highest quality plans
  • Int’l Residential Code Compliant
  • Full structural details on all plans
  • Best plan price guarantee
  • Free modification Estimates
  • Builder-ready construction drawings
  • Expert advice from leading designers
  •  PDFs NOW!™ plans in minutes
  • 100% satisfaction guarantee
  • Free Home Building Organizer