22% off ALL House Plans Sitewide
22% off ALL House Plans Sitewide

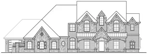
House Plan: DFD-4847

See All 5 Photos > (photographs may reflect modified homes)
© copyright by designer
SQ FT
3,888
BEDS
5
BATHS
6
STORIES
2
CARS
2
HOUSE PLANS SALE 
START AT  $1,006.20
For questions and help, live chat, email or call us at 877-895-5299
Floor Plans
Click to Zoom In on Floor Plan
 
About House Plan 4847:
This gorgeous three-bedroom home will attract compliments from passersby. Inside, the study with adjacent bath would make a great home office, since you can see clients arriving. The spacious family room is perfect for any gathering, and the corner fireplace adds ambience. The master suite is a restful haven after a long day at work; soak away your cares in the garden tub. The optional second story may be finished later, or not at all. It contains two additional bedrooms, two baths and a fun game room.
House Plan Pricing
STEP 1 Select Your Package

PDF Single Build


Digital plans emailed to you in PDF format that allows for printing copies and sharing electronically with contractors, subs, decorators, and more. This package includes a license to build the home one time.

PDF Single Build $1,290
Most recommended package

CAD + PDF Single Build


CAD files are a complete set of construction drawings delivered electronically. They can be used for any type of modification—including major design changes and engineering—and include a release granting permission to modify the plan. Most CAD plan orders are emailed the same or next business day.
 
This package also comes with a PDF set of plans and a copyright release for making modifications and printing unlimited copies.
 
CAD files are provided in .dwg format. For details on the specific CAD program used, please refer to the PLAN DETAILS section located above the floor plan on each plan’s page.

CAD + PDF Single Build $1,920
2D electronic editable computer files

5 Printed Sets


Five Printed Sets of Residential Construction Drawings are typically 24” x 36” documents and come with a license to construct a single residence shipped to a physical address. Keep in mind PDF Plan Packages are our most popular choice which allows you to print as many copies as you need and to electronically send files to your builder, subcontractors, etc.

5 Printed Sets $1,920
Five printed sets of house plans
STEP 2 Need To Reverse This Plan?
STEP 3 CHOOSE YOUR FOUNDATION
STEP 4 OPTIONAL ADD-ONS
Subtotal:
$1290
FREE SHIPPING
 
Plan Details
See All Details
Finished Square Footage
2,903 Sq. Ft.
Main Level:
985 Sq. Ft.
Upper Level:
3,888 Sq. Ft.
Total:
Room Details
5
Bedrooms:
6
Full Baths:
General House Information
2
Number of Stories:
89' 0"
Width:
61' 0"
Depth:
Single
Dwelling Number:
Unfinished Square Footage
963 Sq. Ft.
Garage:
218 Sq. Ft.
Porch:
250 Sq. Ft.
Patio:
GARAGE
Front
Garage Location:
2
Garage Size:
Exterior Style
Colonial
Craftsman
Traditional
Collections
Old House Classics
Open Floor Plan
Outdoor Living
Foundation
Crawlspace
Slab
Framing Information
Stick
Roof Framing:
2x4
Exterior Wall Framing:
Insulation (R)
0
Exterior Wall:
0
Interior Wall:
0
Ceiling:
0
Floor:
House And Ceiling Heights
10
First Floor Ceiling:
9
Second Floor Ceiling:
35' 0"
Maximum House Height:
Key Features
Attached
Bonus Room
Country Kitchen
Covered Front Porch
Covered Rear Porch
Dining Room
Double Vanity Sink
Family Room
Fireplace
Foyer
Front Porch
Front-entry
Home Office
Kitchen Island
Laundry 1st Fl
Primary Bdrm Main Floor
Nook / Breakfast Area
Open Floor Plan
Rear Porch
Separate Tub and Shower
Side-entry
Slab

Our Guarantees

  • Only the highest quality plans
  • Int’l Residential Code Compliant
  • Full structural details on all plans
  • Best plan price guarantee
  • Free modification Estimates
  • Builder-ready construction drawings
  • Expert advice from leading designers
  •  PDFs NOW!™ plans in minutes
  • 100% satisfaction guarantee
  • Free Home Building Organizer