20% Off House Plans Sitewide Ends Sunday
20% Off House Plans Sitewide Ends Sunday

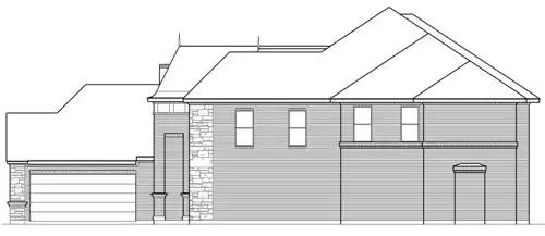
House Plan: DFD-5167

See All 5 Photos > (photographs may reflect modified homes)
© copyright by designer
SQ FT
4,549
BEDS
4
BATHS
4.5
STORIES
2
CARS
3
HOUSE PLANS SALE 
START AT  $1,360.00
For questions and help, live chat, email or call us at 877-895-5299
Floor Plans
Click to Zoom In on Floor Plan
 
About House Plan 5167:
This luxury house plan offers varied ceiling treatments and plenty of large decorative pillars throughout that define room perimeters. Two garages, a one-car and a two-car sit at the front of this house plan. Off the entry is the elegant dining with direct access to the butlery and pantry for ease in serving. The family gathering area is made up of the family room with built-ins, warming fireplace, trey ceiling, bar, patio access and large bank of windows to allow the sun to stream through. The breakfast and kitchen area are separated only by the free-standing island. A warming fireplace in the breakfast area will warm the kitchen as well. The large master suite boasts a trey ceiling, lavish master bath with his and hers vanities, separate shower, center garden tub, and large wardrobe. A quiet study with built-ins is tucked away at the front of this house plan. Upstairs, three family bedrooms with walk-in closets and two full baths share space with the media, game, bonus rooms, and balcony, completing this luxury house plan.
House Plan Pricing
STEP 1 Select Your Package

PDF Single Build


Digital plans emailed to you in PDF format that allows for printing copies and sharing electronically with contractors, subs, decorators, and more. This package includes a license to build the home one time.

PDF Single Build $1,700
Most recommended package

5 Printed Sets


Five Printed Sets of Residential Construction Drawings are typically 24” x 36” documents and come with a license to construct a single residence shipped to a physical address. Keep in mind PDF Plan Packages are our most popular choice which allows you to print as many copies as you need and to electronically send files to your builder, subcontractors, etc.

5 Printed Sets $2,560
Five printed sets of house plans

CAD + PDF Single Build


CAD files are a complete set of construction drawings delivered electronically. They can be used for any type of modification—including major design changes and engineering—and include a release granting permission to modify the plan. Most CAD plan orders are emailed the same or next business day.
 
This package also comes with a PDF set of plans and a copyright release for making modifications and printing unlimited copies.
 
CAD files are provided in .dwg format. For details on the specific CAD program used, please refer to the PLAN DETAILS section located above the floor plan on each plan’s page.

CAD + PDF Single Build $2,560
2D electronic editable computer files
STEP 2 Need To Reverse This Plan?
STEP 3 CHOOSE YOUR FOUNDATION
STEP 4 OPTIONAL ADD-ONS
Subtotal:
$1700
FREE SHIPPING
 
Plan Details
See All Details
Finished Square Footage
2,768 Sq. Ft.
Main Level:
1,781 Sq. Ft.
Upper Level:
4,549 Sq. Ft.
Total:
Room Details
4
Bedrooms:
4
Full Baths:
2
Half Baths:
General House Information
2
Number of Stories:
63' 0"
Width:
88' 0"
Depth:
Single
Dwelling Number:
Unfinished Square Footage
851 Sq. Ft.
Garage:
37 Sq. Ft.
Porch:
190 Sq. Ft.
Deck:
366 Sq. Ft.
Patio:
384 Sq. Ft.
Bonus Room:
GARAGE
Side
Garage Location:
3
Garage Size:
Exterior Style
Traditional
Collections
Luxury
Old House Classics
Open Floor Plan
Foundation
Crawlspace
Slab
Framing Information
Stick
Roof Framing:
2x4
Exterior Wall Framing:
Roof Pitch
12
Primary:
24
Secondary:
Insulation (R)
0
Exterior Wall:
0
Interior Wall:
0
Ceiling:
0
Floor:
House And Ceiling Heights
11
First Floor Ceiling:
9
Second Floor Ceiling:
37' 0"
Maximum House Height:
Key Features
2 Story Volume
Arches
Attached
Bonus Room
Country Kitchen
Covered Front Porch
Covered Rear Porch
Dining Room
Double Vanity Sink
Family Room
Fireplace
Formal LR
Foyer
Front Porch
Home Office
Kitchen Island
Laundry 1st Fl
Library/Media Rm
Primary Bdrm Main Floor
Nook / Breakfast Area
Open Floor Plan
Rear Porch
Separate Tub and Shower
Side-entry
Slab
Storage Space

Our Guarantees

  • Only the highest quality plans
  • Int’l Residential Code Compliant
  • Full structural details on all plans
  • Best plan price guarantee
  • Free modification Estimates
  • Builder-ready construction drawings
  • Expert advice from leading designers
  •  PDFs NOW!™ plans in minutes
  • 100% satisfaction guarantee
  • Free Home Building Organizer