20% Off House Plans Sitewide Ends Tuesday
20% Off House Plans Sitewide Ends Tuesday

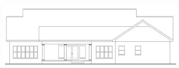
House Plan: DFD-5745

See All 2 Photos > (photographs may reflect modified homes)
© copyright by designer
SQ FT
2,726
BEDS
4
BATHS
3.5
STORIES
1
CARS
2
HOUSE PLANS SALE 
START AT  $920.00
For questions and help, live chat, email or call us at 877-895-5299
Floor Plans
Click to Zoom In on Floor Plan
 
About House Plan 5745:
A wide front porch hugs the front of this traditional home. Arches accent the exterior, dining room and sunroom. The great room fireplace is wrapped by cabinets for storage, french doors lead onto the rear porch. This plan has plenty of extras like a computer room, large laundry, walk-in pantry and guest bedroom.
House Plan Pricing
STEP 1 Select Your Package

PDF Single Build


Digital plans emailed to you in PDF format that allows for printing copies and sharing electronically with contractors, subs, decorators, and more. This package includes a license to build the home one time.

PDF Single Build $1,150
Most recommended package

5 Printed Sets


Five Printed Sets of Residential Construction Drawings are typically 24” x 36” documents and come with a license to construct a single residence shipped to a physical address. Keep in mind PDF Plan Packages are our most popular choice which allows you to print as many copies as you need and to electronically send files to your builder, subcontractors, etc.

5 Printed Sets $1,280
Five printed sets of house plans
STEP 2 Need To Reverse This Plan?
STEP 3 CHOOSE YOUR FOUNDATION
STEP 4 OPTIONAL ADD-ONS
Subtotal:
$1150
FREE SHIPPING
 
Plan Details
See All Details
Finished Square Footage
2,726 Sq. Ft.
Main Level:
2,726 Sq. Ft.
Total:
Room Details
4
Bedrooms:
3
Full Baths:
1
Half Baths:
General House Information
1
Number of Stories:
78' 0"
Width:
67' 0"
Depth:
Single
Dwelling Number:
None
Bonus Access:
Unfinished Square Footage
504 Sq. Ft.
Garage:
94 Sq. Ft.
Storage:
685 Sq. Ft.
Porch:
GARAGE
Side
Garage Location:
2
Garage Size:
Exterior Style
Country
Southern
Traditional
Collections
Affordable
Old House Classics
Open Floor Plan
Split Bedroom
Foundation
Basement
Crawl Space
Slab
Framing Information
Truss
Roof Framing:
2x4
Exterior Wall Framing:
Roof Pitch
8
Primary:
Roof Load
30
Live:
10
Dead:
Insulation (R)
13
Exterior Wall:
0
Interior Wall:
30
Ceiling:
0
Floor:
House And Ceiling Heights
9
First Floor Ceiling:
25' 0"
Maximum House Height:
Key Features
Arched openings
Arches
Attached
Basement
Covered Front Porch
Covered Porch
Covered Rear Porch
Crawlspace
Dining Room
Double Vanity Sink
Family Room
Fireplace
Formal Dining Room
Foyer
French Doors
Front Porch
Great Room
Guest Suite
His and Hers Primary Closets
Home Office
Jack and Jill Bath
Large Laundry Room
Laundry 1st Fl
Primary Bdrm Main Floor
Primary Suite
Nook / Breakfast Area
Office or extra bedroom
Open Floor Plan
Peninsula / Eating Bar
Raised Snack Bar
Rear Porch
Screened Porch/Sunroom
Side-entry
Slab
Split Bedrooms
Split Floor plan layout
Stairs to attic or future space
Storage Space
Suited for corner lot
Suited for view lot
Unfinished Space
Walk-in Closet
Walk-in Pantry

Our Guarantees

  • Only the highest quality plans
  • Int’l Residential Code Compliant
  • Full structural details on all plans
  • Best plan price guarantee
  • Free modification Estimates
  • Builder-ready construction drawings
  • Expert advice from leading designers
  •  PDFs NOW!™ plans in minutes
  • 100% satisfaction guarantee
  • Free Home Building Organizer