20% Off House Plans Sitewide Ends Sunday
20% Off House Plans Sitewide Ends Sunday

House Plan: DFD-6464

See All 5 Photos > (photographs may reflect modified homes)
© copyright by designer
SQ FT
3,828
BEDS
3
BATHS
3.5
STORIES
2
CARS
2
HOUSE PLANS SALE 
START AT  $1,032.00
For questions and help, live chat, email or call us at 877-895-5299
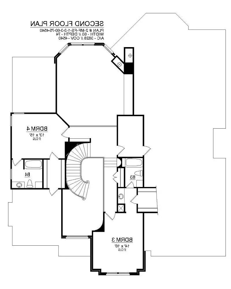
Floor Plans
Click to Zoom In on Floor Plan
 
About House Plan 6464:
This traditional French country style house plan is a wonderful option for the homeowner who likes the finer things that life has to offer. Curb appeal gains a new definition with this home. Flawless white brick adorns the exterior, while 2 beautiful wooden garage doors provide the cottage look. A sloping covered entryway opens to a sweeping grand staircase in this 3,828 square foot, 3 bedroom and 3.5 bathroom home. Just beyond the foyer is a bar area which opens to the family room and kitchen, taking entertaining guests to a new level. A patio off of the family room provides flexible space for large parties or nice evenings. The first floor is capped off by the amazing master suite and its large walk-in shower and walk-in wardrobe with plenty of space. A study is next to the master, providing an additional sense of privacy from the rest of the home. The final two bedrooms and bathrooms can be found on the second floor, as well as a lot of storage space, allowing your family the room to grow without outgrowing your home.

 
House Plan Pricing
STEP 1 Select Your Package

PDF Single Build


Digital plans emailed to you in PDF format that allows for printing copies and sharing electronically with contractors, subs, decorators, and more. This package includes a license to build the home one time.

PDF Single Build $1,290
Most recommended package

5 Printed Sets


Five Printed Sets of Residential Construction Drawings are typically 24” x 36” documents and come with a license to construct a single residence shipped to a physical address. Keep in mind PDF Plan Packages are our most popular choice which allows you to print as many copies as you need and to electronically send files to your builder, subcontractors, etc.

5 Printed Sets $1,920
Five printed sets of house plans

CAD + PDF Single Build


CAD files are a complete set of construction drawings delivered electronically. They can be used for any type of modification—including major design changes and engineering—and include a release granting permission to modify the plan. Most CAD plan orders are emailed the same or next business day.
 
This package also comes with a PDF set of plans and a copyright release for making modifications and printing unlimited copies.
 
CAD files are provided in .dwg format. For details on the specific CAD program used, please refer to the PLAN DETAILS section located above the floor plan on each plan’s page.

CAD + PDF Single Build $1,920
2D electronic editable computer files
STEP 2 Need To Reverse This Plan?
STEP 3 CHOOSE YOUR FOUNDATION
STEP 4 OPTIONAL ADD-ONS
Subtotal:
$1290
FREE SHIPPING
 
Plan Details
See All Details
Finished Square Footage
2,961 Sq. Ft.
Main Level:
857 Sq. Ft.
Upper Level:
3,828 Sq. Ft.
Total:
Room Details
3
Bedrooms:
3
Full Baths:
1
Half Baths:
General House Information
2
Number of Stories:
60' 0"
Width:
74' 0"
Depth:
Single
Dwelling Number:
Unfinished Square Footage
560 Sq. Ft.
Garage:
GARAGE
Front
Garage Location:
2
Garage Size:
Exterior Style
Cottage
Country
French Country
Traditional
Collections
Luxury
Foundation
Slab
Framing Information
Stick
Roof Framing:
2x4
Exterior Wall Framing:
Insulation (R)
0
Exterior Wall:
0
Interior Wall:
0
Ceiling:
0
Floor:
House And Ceiling Heights
10
First Floor Ceiling:
9
Second Floor Ceiling:
38' 0"
Maximum House Height:
Key Features
Attached
Dining Room
Double Vanity Sink
Family Room
Fireplace
Foyer
Front-entry
Home Office
Kitchen Island
Laundry 1st Fl
Primary Bdrm Main Floor
Nook / Breakfast Area
Separate Tub and Shower
Slab
Walk-in Closet

Our Guarantees

  • Only the highest quality plans
  • Int’l Residential Code Compliant
  • Full structural details on all plans
  • Best plan price guarantee
  • Free modification Estimates
  • Builder-ready construction drawings
  • Expert advice from leading designers
  •  PDFs NOW!™ plans in minutes
  • 100% satisfaction guarantee
  • Free Home Building Organizer