15% off ALL House Plans Sitewide
15% off ALL House Plans Sitewide

House Plan: DFD-6519

See All 12 Photos > (photographs may reflect modified homes)
© copyright by designer
SQ FT
2,178
BEDS
3
BATHS
2.5
STORIES
2
CARS
2
HOUSE PLANS SALE 
START AT  $1,406.75
For questions and help, live chat, email or call us at 877-895-5299
Floor Plans
Click to Zoom In on Floor Plan
 
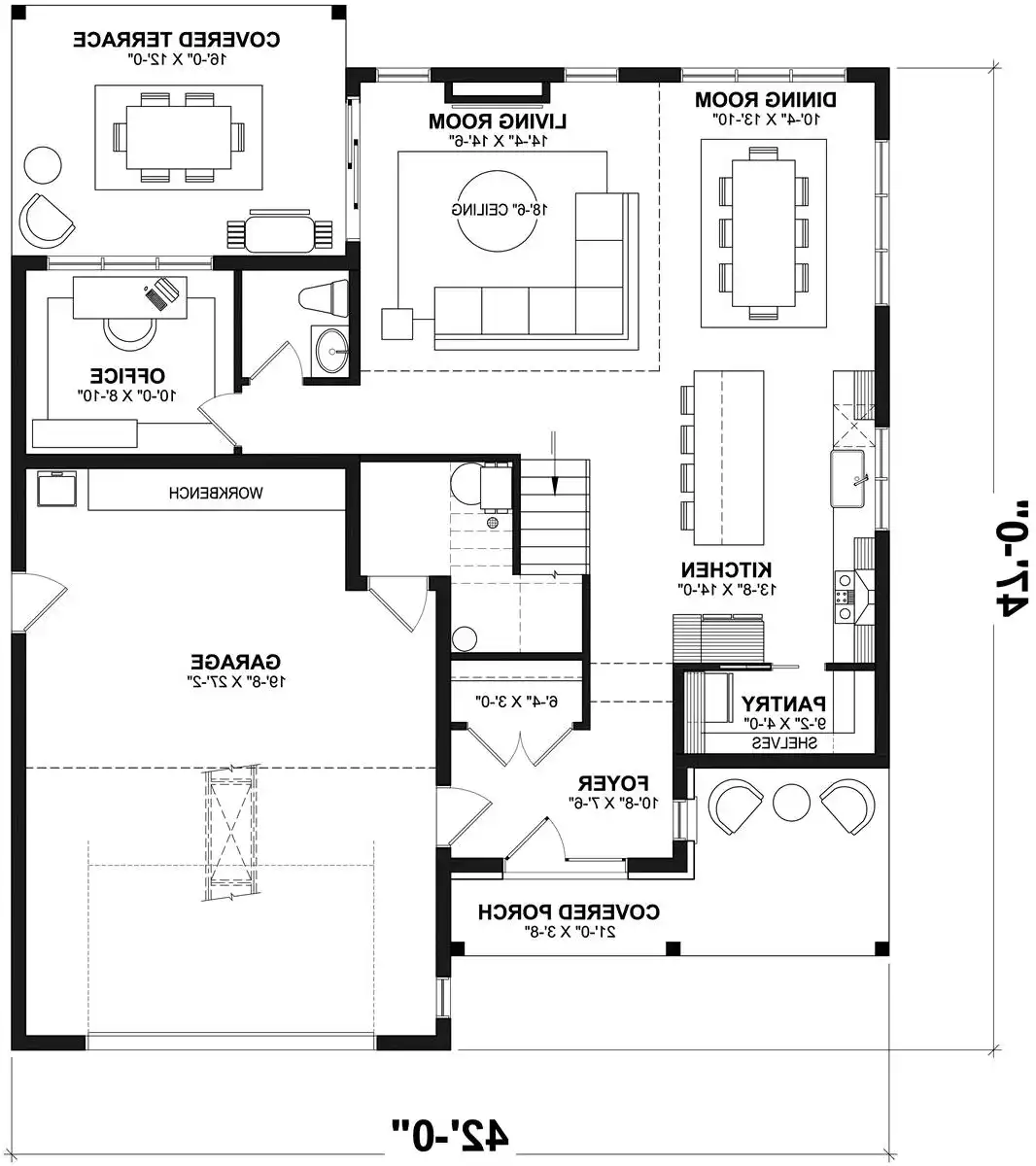
About House Plan 6519:
This 2 story 2,178 sq.ft. Modern Farmhouse is a classic layout for families with younger children with all of its bedrooms being on the upper level. The 3 bedroom 2.5 bath design is all about family togetherness and fellowship on its main level. The 18’6” ceiling brings an airiness to the second story level. The cook of the home will love the window over the sink as well as the walk-in pantry. The bbq enthusiast of the family will revel in the outdoor covered terrace.

Up the stairs you’ll find the sleeping quarters. The two secondary bedrooms share a hallway bathroom that is off of the small den, perfect for early morning cartoons or after school video gaming. The master bedroom has the right side of the 2nd level and its ensuite bathroom has a tub and a shower. The laundry of the home is cleverly accessed through the master closet as well as the flex den space.
House Plan Pricing
STEP 1 Select Your Package

PDF Single Build


Digital plans emailed to you in PDF format that allows for printing copies and sharing electronically with contractors, subs, decorators, and more. This package includes a license to build the home one time.

PDF Single Build $1,655
Most recommended package

3 Printed Sets + PDF


Includes 3 physical printed blueprint sets, shipped free via UPS within the U.S. Printed sets ship within 1 business day and are delivered within 3 – 5 business days. A complimentary PDF plan set is also emailed within 1 business day for easy sharing and local printing. These plans may be used to construct one home.

3 Printed Sets + PDF $1,880
3 Printed Sets + PDF

CAD + PDF Single Build


This plan package is created in AutoCAD and delivered in .DWG format. CAD files are intended for use by design professionals, structural engineers, and builders to update plans for local building codes or to make revisions based on specific needs, lot requirements, and budget considerations. A complimentary PDF copy is included with this package for reference. CAD packages are delivered within 1 to 2 business days.
 
This package also comes with a copyright release for making revisions and printing unlimited copies.

For details on the specific CAD program used, please refer to the PLAN DETAILS section located above the floor plan on each plan page.

CAD + PDF Single Build $2,740
2D electronic editable computer files
STEP 2 Need To Reverse This Plan?
STEP 3 CHOOSE YOUR FOUNDATION
STEP 4 OPTIONAL ADD-ONS
Subtotal:
$1655
FREE SHIPPING
Please allow 3-5 business days for delivery of this plan Please check our PDFs NOW collection for plans that can be downloaded and received immediately or live chat us to help you find a similar plan available now.
 
Plan Details
See All Details
Finished Square Footage
1,063 Sq. Ft.
Main Level:
1,115 Sq. Ft.
Upper Level:
2,178 Sq. Ft.
Total:
Room Details
3
Bedrooms:
2
Full Baths:
1
Half Baths:
General House Information
2
Number of Stories:
42' 0"
Width:
47' 0"
Depth:
Single
Dwelling Number:
None
Bonus Access:
Unfinished Square Footage
573 Sq. Ft.
Garage:
GARAGE
Front
Garage Location:
2
Garage Size:
Exterior Style
Country
Farmhouse
Modern Farmhouse
Traditional
Collections
Canada
Open Floor Plan
Foundation
Basement Foundation PDF
Crawlspace
Floating slab (included)
Monolithic slab
Framing Information
Truss
Roof Framing:
2x6
Exterior Wall Framing:
Roof Pitch
10:12
Primary:
Roof Load
55 psf
Live:
20 psf
Dead:
Insulation (R)
20
Exterior Wall:
40
Ceiling:
House And Ceiling Heights
9
First Floor Ceiling:
8
Second Floor Ceiling:
30' 3"
Maximum House Height:
Key Features
Attached
Covered Front Porch
Covered Rear Porch
Dining Room
Fireplace
Formal LR
Foyer
Front-entry
Home Office
Kitchen Island
Laundry 2nd Fl
Primary Bdrm Upstairs
Separate Tub and Shower
Split Bedrooms
Storage Space
Suited for corner lot
Suited for narrow lot
Vaulted Great Room/Living
Walk-in Closet
Walk-in Pantry

Our Guarantees

  • Only the highest quality plans
  • Int’l Residential Code Compliant
  • Full structural details on all plans
  • Best plan price guarantee
  • Free modification Estimates
  • Builder-ready construction drawings
  • Expert advice from leading designers
  •  PDFs NOW!™ plans in minutes
  • 100% satisfaction guarantee
  • Free Home Building Organizer

See terms opt out anytime