25% Off House Plans Sitewide Ends 12/01
25% Off House Plans Sitewide Ends 12/01

House Plan: DFD-6521

See All 17 Photos > (photographs may reflect modified homes)
© copyright by designer
SQ FT
3,649
BEDS
5
BATHS
3.5
STORIES
2
CARS
2
HOUSE PLANS SALE 
START AT  $1,770.00
For questions and help, live chat, email or call us at 877-895-5299
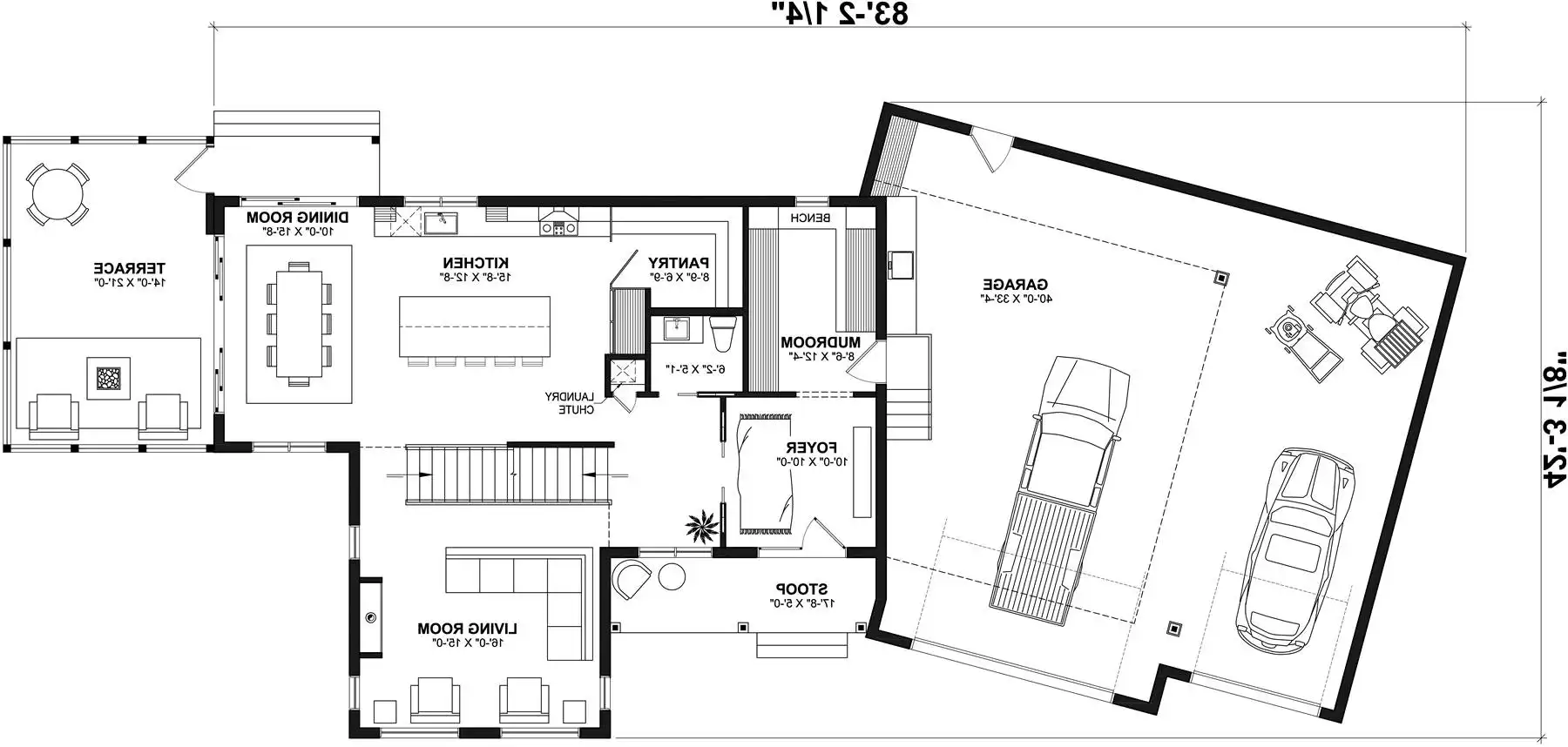
Floor Plans
Click to Zoom In on Floor Plan
 
About House Plan 6521:
This 3 level Modern Farmhouse has it all plus some!

If you live in a cold climate and have kids in and out throughout the seasons, this 3 level Modern Farmhouse plan can grow with you accordingly.

There is a vestibule entrance to close off cold weather chill. The adjacent mudroom is accessible by the 3 car angled garage, as well, keeping messes to a minimum.

Immediately into the home you’ll find the powder room as well as a super handy laundry chute that goes directly into the home’s laundry room on the lower level.

The kitchen has a large pantry and ample countertop space. There is a window over the kitchen sink and the dining room has three sets of sliding glass doors. The great room has a two story ceiling and a  fireplace, a perfect spot for family movie night.

Upstairs are  4 bedrooms, including the master suite. The kids share a hallway bathroom, and there is another handy laundry chute designed for ease.

The basement level can be used for a 5th bedroom, an office as well as a secondary living area. The family’s laundry room is on this level as well as a full bathroom.
House Plan Pricing
STEP 1 Select Your Package

PDF Single Build


Digital plans emailed to you in PDF format that allows for printing copies and sharing electronically with contractors, subs, decorators, and more. This package includes a license to build the home one time.

PDF Single Build $2,360
Most recommended package

3 sets + PDF


Please allow 3-5 days for delivery
3 sets + PDF $2,500
3 sets + PDF

CAD + PDF Single Build


CAD files are a complete set of construction drawings delivered electronically. They can be used for any type of modification—including major design changes and engineering—and include a release granting permission to modify the plan. Most CAD plan orders are emailed the same or next business day.
 
This package also comes with a PDF set of plans and a copyright release for making modifications and printing unlimited copies.
 
CAD files are provided in .dwg format. For details on the specific CAD program used, please refer to the PLAN DETAILS section located above the floor plan on each plan’s page.

CAD + PDF Single Build $3,360
2D electronic editable computer files
STEP 2 Need To Reverse This Plan?
STEP 3 CHOOSE YOUR FOUNDATION
STEP 4 OPTIONAL ADD-ONS
Subtotal:
$2360
FREE SHIPPING
Please allow 3-5 business days for delivery of this plan Please check our PDFs NOW collection for plans that can be downloaded and received immediately or live chat us to help you find a similar plan available now.
 
Plan Details
See All Details
Finished Square Footage
1,217 Sq. Ft.
Main Level:
1,215 Sq. Ft.
Upper Level:
1,217 Sq. Ft.
Lower Level:
3,649 Sq. Ft.
Total:
Room Details
5
Bedrooms:
3
Full Baths:
1
Half Baths:
General House Information
2
Number of Stories:
83' 2"
Width:
42' 3"
Depth:
Single
Dwelling Number:
None
Bonus Access:
Unfinished Square Footage
1200 Sq. Ft.
Garage:
GARAGE
Side
Garage Location:
2
Garage Size:
Exterior Style
Country
Farmhouse
Modern Farmhouse
Transitional
Collections
Canada
Kitchens
Primary Suites
Open Floor Plan
Outdoor Living
Foundation
Crawlspace
Finished basement (included)
Framing Information
Truss
Roof Framing:
2x6
Exterior Wall Framing:
Roof Pitch
10/12
Primary:
Roof Load
55 psf
Live:
20 psd
Dead:
Insulation (R)
House And Ceiling Heights
9
First Floor Ceiling:
8
Second Floor Ceiling:
33' 2"
Maximum House Height:
Key Features
Covered Front Porch
Covered Rear Porch
Dining Room
Double Vanity Sink
Family Room
Fireplace
Formal LR
Foyer
Front-entry
Guest Suite
Home Office
Kitchen Island
Laundry 2nd Fl
Primary Bdrm Upstairs
Mud Room
Open Floor Plan
Outdoor Living Space
Oversized
Screened Porch/Sunroom
Separate Tub and Shower
Suited for sloping lot
Suited for view lot
Vaulted Great Room/Living
Walk-in Closet
Walk-in Pantry

Our Guarantees

  • Only the highest quality plans
  • Int’l Residential Code Compliant
  • Full structural details on all plans
  • Best plan price guarantee
  • Free modification Estimates
  • Builder-ready construction drawings
  • Expert advice from leading designers
  •  PDFs NOW!™ plans in minutes
  • 100% satisfaction guarantee
  • Free Home Building Organizer