House Plan: DFD-6658

See All 6 Photos > (photographs may reflect modified homes)
© copyright by designer
SQ FT
4,755
BEDS
5
BATHS
4.5
STORIES
2
CARS
2
PLANS FROM $2,378
For questions and help, live chat, email or call us at 877-895-5299
Floor Plans
Click to Zoom In on Floor Plan
 
About House Plan 6658:
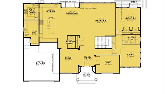
House Plan 6670 showcases contemporary style with a layout that balances openness, privacy, and everyday comfort. The exterior stands out with a raised seam metal roof, while double entry doors lead into a welcoming foyer flanked by a home office and formal dining room. The rear facing great room is warm and inviting, anchored by a fireplace with built ins and large windows that bring in natural light and backyard views. An oversized opening leads into the kitchen, maintaining an open feel while clearly defining each living area. The kitchen includes a T shaped island with seating for casual dining and a nearby pantry that offers plenty of storage. A main floor guest suite provides convenience and flexibility, ideal for hosting overnight visitors. Upstairs, the remaining bedrooms are thoughtfully arranged alongside a dedicated laundry room. The primary suite is generously sized and features a luxurious bathroom with a freestanding tub and an expansive walk in closet. With 4,505 square feet of living space, this two story design is well suited for modern family living.
House Plan Pricing
STEP 1 Select Your Package

PDF Single Build


Digital plans emailed to you in PDF format that allows for printing copies and sharing electronically with contractors, subs, decorators, and more. This package includes a license to build the home one time.

PDF Single Build $2,378
Most recommended package

5 Printed Sets + PDF


Includes 5 physical printed blueprint sets, shipped free via UPS within the U.S. Printed sets ship within 1 business day and are delivered within 3 – 5 business days. A complimentary PDF plan set is also emailed within 1 business day for easy sharing and local printing. These plans may be used to construct one home.

5 Printed Sets + PDF $2,678
5 Printed Sets + PDF

8 Printed Sets


Includes 8 physical printed blueprint sets, shipped free via UPS within the U.S. Printed sets ship within 1 business day and are delivered within 3 – 5 business days. These plans may be used to construct one home.

8 Printed Sets $2,828
Eight printed sets of house plans

CAD + PDF Single Build


This plan package is created in AutoCAD and delivered in .DWG format. CAD files are intended for use by design professionals, structural engineers, and builders to update plans for local building codes or to make revisions based on specific needs, lot requirements, and budget considerations. A complimentary PDF copy is included with this package for reference. CAD packages are delivered within 1 to 2 business days.
 
This package also comes with a copyright release for making revisions and printing unlimited copies.

For details on the specific CAD program used, please refer to the PLAN DETAILS section located above the floor plan on each plan page.

CAD + PDF Single Build $4,517
2D electronic editable computer files
STEP 2 Need To Reverse This Plan?
STEP 3 CHOOSE YOUR FOUNDATION
STEP 4 OPTIONAL ADD-ONS
Subtotal:
$2378
FREE SHIPPING
 
Plan Details
See All Details
Finished Square Footage
2,689 Sq. Ft.
Main Level:
2,066 Sq. Ft.
Upper Level:
4,755 Sq. Ft.
Total:
Room Details
5
Bedrooms:
4
Full Baths:
1
Half Baths:
General House Information
2
Number of Stories:
74' 0"
Width:
49' 0"
Depth:
Single
Dwelling Number:
Unfinished Square Footage
550 Sq. Ft.
Garage:
89 Sq. Ft.
Porch:
404 Sq. Ft.
Deck:
GARAGE
Front
Garage Location:
2
Garage Size:
Exterior Style
European
French Country
Transitional
Collections
Canada
In-Law Suite
Primary Suites
Open Floor Plan
Outdoor Living
Pet Lovers
Foundation
Crawl Space
Slab
Framing Information
2x6
Exterior Wall Framing:
Roof Pitch
8:12
Primary:
14:12
Secondary:
Insulation (R)
21
Exterior Wall:
49
Ceiling:
38
Floor:
House And Ceiling Heights
10
First Floor Ceiling:
9
Second Floor Ceiling:
34' 9"
Maximum House Height:
Key Features
Attached
Bonus Room
Butler's Pantry
Covered Front Porch
Covered Rear Porch
Deck
Dining Room
Double Vanity Sink
Foyer
Front-entry
Great Room
Guest Suite
His and Hers Primary Closets
Home Office
Kitchen Island
Laundry 2nd Fl
Loft / Balcony
Primary Bdrm Upstairs
Mud Room
Open Floor Plan
Outdoor Kitchen
Screened Porch/Sunroom
Separate Tub and Shower
Split Bedrooms
U-Shaped
Vaulted Primary
Walk-in Closet
Walk-in Pantry

Our Guarantees

  • Only the highest quality plans
  • Int’l Residential Code Compliant
  • Full structural details on all plans
  • Best plan price guarantee
  • Free modification Estimates
  • Builder-ready construction drawings
  • Expert advice from leading designers
  •  PDFs NOW!™ plans in minutes
  • 100% satisfaction guarantee
  • Free Home Building Organizer