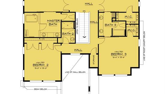
House Plan 6664 delivers 3,542 square feet of smartly organized living space designed for modern family life. The main floor welcomes you with a foyer and a den positioned to the left, creating a quiet workspace away from the main living areas. An open great room flows seamlessly into the dining area and U-shaped kitchen, where a central island and walk-in pantry support both everyday meals and entertaining. Step outside to the rear covered patio to extend your living space outdoors. The second floor hosts all four bedrooms, including a primary suite with a private ensuite, two bedrooms joined by a Jack and Jill bathroom, and a fourth bedroom with its own ensuite, offering comfort and privacy for everyone. A two car garage rounds out this versatile two story design.
House Plan 6664 delivers 3,542 square feet of smartly organized living space designed for modern family life. The main floor welcomes you with a foyer and a den positioned to the left, creating a quiet workspace away from the main living areas. An open great room flows seamlessly into the dining area and U-shaped kitchen, where a central island and walk-in pantry support both everyday meals and entertaining. Step outside to the rear covered patio to extend your living space outdoors. The second floor hosts all four bedrooms, including a primary suite with a private ensuite, two bedrooms joined by a Jack and Jill bathroom, and a fourth bedroom with its own ensuite, offering comfort and privacy for everyone. A two car garage rounds out this versatile two story design.