20% Off House Plans Sitewide Ends Sunday
20% Off House Plans Sitewide Ends Sunday

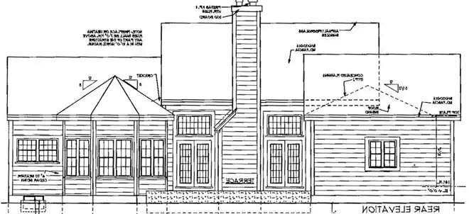
House Plan: DFD-6993

See All 3 Photos > (photographs may reflect modified homes)
© copyright by designer
SQ FT
2,252
BEDS
3
BATHS
2.5
STORIES
1.5
CARS
2
HOUSE PLANS SALE 
START AT  $540.00
For questions and help, live chat, email or call us at 877-895-5299
Floor Plans
Click to Zoom In on Floor Plan
 
House Plan 6993
House Plan Pricing
STEP 1 Select Your Package

4 Printed Sets


Four printed sets of construction drawings shipped and received in 3-5 business days

4 Printed Sets $675
Four printed sets of house plans

8 Printed Sets


Eight Printed Sets of Construction Drawings, typically 24” x 36” documents, with a license to construct a single residence shipped to your physical address. PDF Plan Packages are our most popular choice which allows you to print as many copies as you need and to electronically send files to your builder, subcontractors, bank/mortgage reps, material stores, decorators and more.

8 Printed Sets $775
Eight printed sets of house plans

PDF Single Build


Digital plans emailed to you in PDF format that allows for printing copies and sharing electronically with contractors, subs, decorators, and more. This package includes a license to build the home one time.

PDF Single Build $879
Immediate Delivery!
Most recommended package
STEP 2 CHOOSE YOUR FOUNDATION
STEP 3 OPTIONAL ADD-ONS
Subtotal:
$675
FREE SHIPPING
 
Plan Details
See All Details
Finished Square Footage
1,728 Sq. Ft.
Main Level:
524 Sq. Ft.
Upper Level:
1,728 Sq. Ft.
Lower Level:
2,252 Sq. Ft.
Total:
Room Details
3
Bedrooms:
2
Full Baths:
1
Half Baths:
General House Information
1.5
Number of Stories:
64' 4"
Width:
64' 0"
Depth:
Single
Dwelling Number:
Unfinished Square Footage
468 Sq. Ft.
Garage:
GARAGE
Side
Garage Location:
2
Garage Size:
Exterior Style
Cottage
Farmhouse
Southern
Traditional
Collections
Old House Classics
Vacation
Foundation
Basement
Crawlspace
Slab
Framing Information
Stick
Roof Framing:
2x4 or 2x6
Exterior Wall Framing:
Roof Pitch
5 12/12
Primary:
8/12
Secondary:
12/12
Dormer:
Roof Load
30
Live:
15
Dead:
90
Wind:
Insulation (R)
19
Exterior Wall:
0
Interior Wall:
38
Ceiling:
19
Floor:
House And Ceiling Heights
9
First Floor Ceiling:
8'
Second Floor Ceiling:
26' 0"
Maximum House Height:
Key Features
Attached
Basement
Crawlspace
Slab
Wraparound Porch

Our Guarantees

  • Only the highest quality plans
  • Int’l Residential Code Compliant
  • Full structural details on all plans
  • Best plan price guarantee
  • Free modification Estimates
  • Builder-ready construction drawings
  • Expert advice from leading designers
  •  PDFs NOW!™ plans in minutes
  • 100% satisfaction guarantee
  • Free Home Building Organizer