House Plan: DFD-7480

See All 5 Photos > (photographs may reflect modified homes)
© copyright by designer
SQ FT
1,344
BEDS
2
BATHS
1
STORIES
1
CARS
1
PLANS FROM $1,510
For questions and help, live chat, email or call us at 877-895-5299
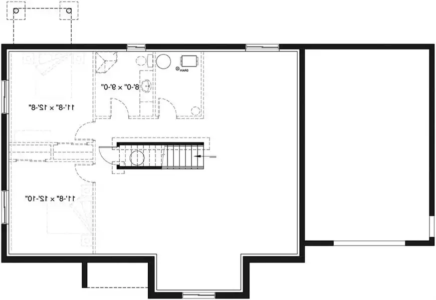
Floor Plans
Click to Zoom In on Floor Plan
 
About House Plan 7480:
2-bedroom bungalow with garage, mud room, laundry room on main and open floor plan
House Plan Pricing
STEP 1 Select Your Package

PDF Single Build


Digital plans emailed to you in PDF format that allows for printing copies and sharing electronically with contractors, subs, decorators, and more. This package includes a license to build the home one time.

PDF Single Build $1,510
Most recommended package

3 Printed Sets + PDF


Includes 3 physical printed blueprint sets, shipped free via UPS within the Continental U.S. Printed sets ship within 1 business day and are delivered within 3 – 5 business days. A complimentary PDF plan set is also emailed within 1 business day for easy sharing and local printing. These plans may be used to construct one home.

3 Printed Sets + PDF $1,650
3 Printed Sets + PDF

CAD + PDF Single Build


This plan package is created in AutoCAD and delivered in .DWG format. CAD files are intended for use by design professionals, structural engineers, and builders to update plans for local building codes or to make revisions based on specific needs, lot requirements, and budget considerations. A complimentary PDF copy is included with this package for reference. CAD packages are delivered within 1 to 2 business days.
 
This package also comes with a copyright release for making revisions and printing unlimited copies.

For details on the specific CAD program used, please refer to the PLAN DETAILS section located above the floor plan on each plan page.

CAD + PDF Single Build $2,510
2D electronic editable computer files
STEP 2 Need To Reverse This Plan?
STEP 3 CHOOSE YOUR FOUNDATION
STEP 4 OPTIONAL ADD-ONS
Subtotal:
$1510
FREE SHIPPING
Please allow 3-5 business days for delivery of this plan Please check our PDFs NOW collection for plans that can be downloaded and received immediately or live chat us to help you find a similar plan available now.
 
Plan Details
See All Details
Finished Square Footage
1,344 Sq. Ft.
Main Level:
1,344 Sq. Ft.
Lower Level:
1,344 Sq. Ft.
Total:
Room Details
2
Bedrooms:
1
Full Baths:
General House Information
1
Number of Stories:
58' 0"
Width:
35' 4"
Depth:
Apartment
Dwelling Number:
None
Bonus Access:
Unfinished Square Footage
504 Sq. Ft.
Garage:
GARAGE
Front
Garage Location:
1
Garage Size:
Exterior Style
Craftsman
Lake
Ranch
Collections
Affordable
Canada
First Home
Kitchens
Mountain
Open Floor Plan
Outdoor Living
Split Bedroom
Foundation
Crawlspace
Floating slab
Full Unfinished Basement (included)
Monolithic slab
Framing Information
Truss
Roof Framing:
2x6
Exterior Wall Framing:
Roof Pitch
8/12
Primary:
10/12
Gable:
Roof Load
55
Live:
20
Dead:
Insulation (R)
25
Exterior Wall:
0
Interior Wall:
40
Ceiling:
0
Floor:
House And Ceiling Heights
8
First Floor Ceiling:
21' 0"
Maximum House Height:
Key Features
Arches
Attached
Basement
Country Kitchen
Covered Front Porch
Crawlspace
Daylight Basement
Deck
Dining Room
Double Vanity Sink
Formal LR
Foyer
His and Hers Primary Closets
Kitchen Island
Laundry 1st Fl
Primary Bdrm Main Floor
Mud Room
Nursery Room
Open Floor Plan
Separate Tub and Shower
Sitting Area
Slab
Split Bedrooms
Unfinished Space
Vaulted Ceilings
Walk-in Closet

Our Guarantees

  • Only the highest quality plans
  • Int’l Residential Code Compliant
  • Full structural details on all plans
  • Best plan price guarantee
  • Free modification Estimates
  • Builder-ready construction drawings
  • Expert advice from leading designers
  •  PDFs NOW!™ plans in minutes
  • 100% satisfaction guarantee
  • Free Home Building Organizer

See terms opt out anytime